Last updated: May 8, 2025
--1728627394567-img.webp&w=1280&q=50)

Land Parcel
Towers
Floors
Config
Carpet Area
RERA NO.
Possession Status
Target Possession
RERA Possession
Litigation
Trinity Vasai West Project Overview
Trinity Bless Residency will be constructed on 1.20 acres of land parcel, 1 tower with G+1P+20 floors having 2 BHK, 3 BHK premium residences.
Trinity Bless Residency location
Project is located Nr Nazareth convent School, Vasai West, Mumbai with -
DMart - 900m
Vasai Road Railway Station - 2.9km
Vartak College - 3.2km
Trinity Bless Residency Vasai West Project Amenities
First is Internal amenities -
Vitrified tiles, Granite Kitchen, Earthquake resistane, SS Sink, CCTV, Video door phone & many more
Trinity Developers Vasai West External Amenities
Project has 15+ luxurious amenities with likes of -
Gymnasium
Indoor Games
Kids Play Area
Senior Citizen Corner
Roof Top Fit Out & Many More
Trinity Developers Bless Residency Vasai West Parking -
Project has two type of car parking facility.
1) Ground
2) Podium
Trinity Bless Residency Possession -
Rera Possession - March 2028
Target Possession - December 2026
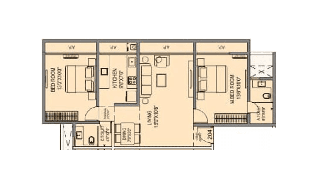
Carpet Area & Floor Plan
Trinity Bless Residency Vasai West project has 2BHK, 3BHK premium residences with -
2BHK - (716 to 803) sqft
3BHK - 910 sqft
Trinity Bless Residency floor plan
Tower floor plans will have 10 flats 4 lift & 2 staircases on each floor
Maintenance -
Trinity Bless Residency Mumbai Project maintenance varies with the configuration and the carpet area which are as follows-
2BHK - Rs (2900 - 3200) per month
3BHK - Rs 3600 per month
Bless Residency Vasai West price & its details can be found in the price section & Trinity Trinity Bless Residency Vasai West brochure can be downloaded from the link mentioned below. Project has been praised by the home buyers & Trinity Developers Vasai West review is 4 out of 5 from over all the clients who have visited the site.
Nr Nazareth convent School, Vasai West, Mumbai

Pros
Cons
Video Door Phone
Vitrified Tiles
Granite Kitchen Platform
Stainless Steel Sink
Branded Fittings
Modular Kitchen
Kids Play Area
Jogging Track
Multi Purpose Court
Senior Citizen Area
Yoga Zone
Meditation Zone
Indoor games
party lawn
Gymnasium


| Carpet Area | All Inc. Price (Inc. of Taxes & Charges) | Min Downpayment (Inc. Taxes) | Parking | Unit Plan |
|---|---|---|---|---|
716 sqft | 90.26 Lacs All In | 14.00 Lacs | 5 Lacs | ![]() |
757 sqft | 95.40 Lacs All In | 14.00 Lacs | 5 Lacs | ![]() |
775 sqft | 97.66 Lacs All In | 15.00 Lacs | 5 Lacs | ![]() |

Is there any litigation against this proposed project:
NoTrinity Developers

1 CityLocations
Ahmedabad






535 - 753 sqft
Dattani Estate Developers
Developer

522 - 970 sqft
Dattani Estate Developers
Developer






433 - 625 sqft
Shantee Group
Developer

418 - 517 sqft
KKG Group
Developer

634 - 2075 sqft
PAM Infrastructures
Developer
Housiey Legal: Free Real Estate Legal Consultation
Get Expert Advice on RERA, Builder Refunds, Area Mismatch, Stuck Projects & More - at No Cost!