






Land Parcel
Towers
Floors
Config
Carpet Area
RERA NO.
Possession Status
Target Possession
RERA Possession
Litigation
Today Global Panvel Project Overview
Today Global Saubhagyam Project will be constructed on 5 acres of land parcel, 8 towers with G+18 floors having 1 BHK, 2 BHK premium residences .
Today Global Saubhagyam location
Project is located Near Palaspe Phata, Panvel, Navi Mumbai -
Mumbai - Goa National Hwy - 700m
DMart - 3.5km
Somatne Railway Station - 4.8km
Today Global Saubhagyam Panvel Project Amenities
First is Internal amenities -
Vitrified Flooring, Granite Platform, SS Sink & many more
Today Global Developers Panvel External Amenities
Project has 20+ amenities with likes of -
Club House
Swimming pool
Multipurpose Play Court
Kids Play Area
Yoga Zone & Many More
Today Global Developers Saubhagyam Panvel Parking -
Project has one type of car parking facility -
1) Podium
Today Global Saubhagyam Possession -
Rera Possession - December 2028
Target Possession - July 2026
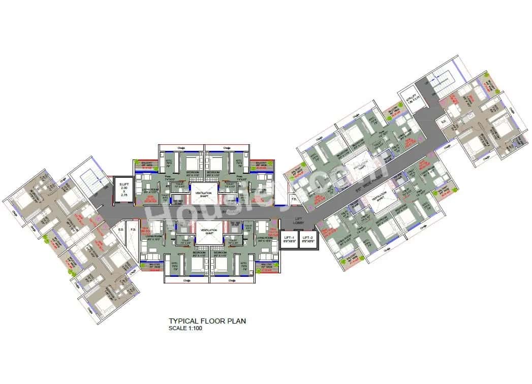
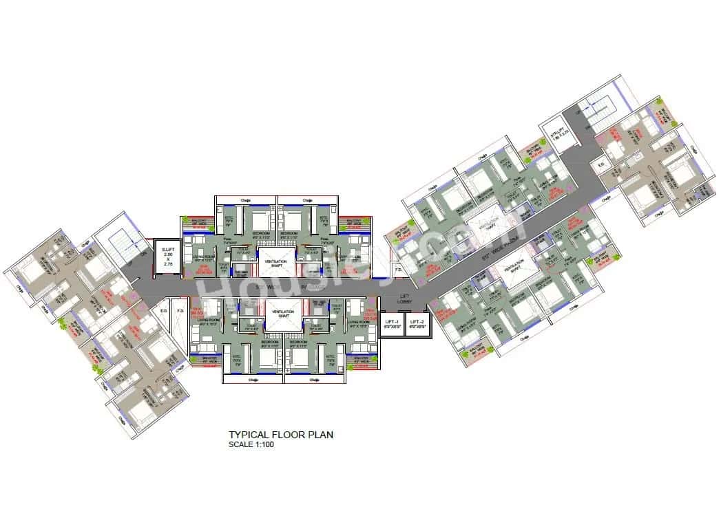
Carpet Area & Floor Plan
Saubhagyam project has 1BHK, 2BHK premium residences with -
1BHK - (384 - 436) sqft
2BHK - (580 to 630) sqft
Today Global Saubhagyam floor plan
Tower floor plan will have 12 flats 5 lifts & 2 staircases on each floor
Maintenance -
Today Global Saubhagyam Navi Mumbai Project maintenance varies with the configuration and the carpet area which are as follows-
1BHK - Rs (1500 - 1700) per month
2BHK - Rs (2300 - 2500) per month
Saubhagyam Panvel project sample flat is ready to view at the site.
Saubhagyam Prices & its details can be found in the price section & Today Global Saubhagyam Panvel brochure can be downloaded from the link mentioned below. Project has been praised by the home buyers & Today Global Developers Panvel review is 4 out of 5 from over all the clients who have visited the site.
Near Palaspe Phata, Panvel, Navi Mumbai

Pros
Cons
Vitrified Tiles
Granite Kitchen Platform
Stainless Steel Sink
Fire Fighting
Swimming Pool
Club House
Kids Play Area
Jogging Track
Multi Purpose Court
Kids Pool
Library
Yoga Zone
Meditation Zone
Business Center
Landscaped Garden
Gymnasium





| Carpet Area | All Inc. Price (Inc. of Taxes & Charges) | Min Downpayment (Inc. Taxes) | Parking | Unit Plan |
|---|---|---|---|---|
410 sqft | 43.00 Lacs All In | 6.00 Lacs | 3.5 Lacs | ![]() |
426 sqftSold Out | ![]() | - | - | ![]() |
436 sqftSold Out | ![]() | - | - | ![]() |
384 sqftSold Out | ![]() | - | - | ![]() |

Is there any litigation against this proposed project:
NoToday Global Saubhagyam Proforma Sale Agreement
Today Global Saubhagyam Proforma Allotment Letter
Today Global Saubhagyam Layout Plan
Note: You can download more detailed documents by following this link
Today Global Developers

1 CityLocations
Mumbai suburban



320 - 537 sqft
Konnark Developers
Developer
403 - 1000 sqft
Arihant Superstructures
Developer







492 - 1900 sqft
Hiranandani Communities
Developer

705 - 980 sqft
Reliable Kaamdhenu Lifespaces
Developer

2400 - 3150 sqft
Arihant Superstructures
Developer


Housiey Legal: Free Real Estate Legal Consultation
Get Expert Advice on RERA, Builder Refunds, Area Mismatch, Stuck Projects & More - at No Cost!