Last updated: Jan 3, 2025











Land Parcel
Towers
Floors
Config
Carpet Area
RERA NO.
Possession Status
Target Possession
RERA Possession
Litigation
Tejraj Bhawani Peth Project Overview
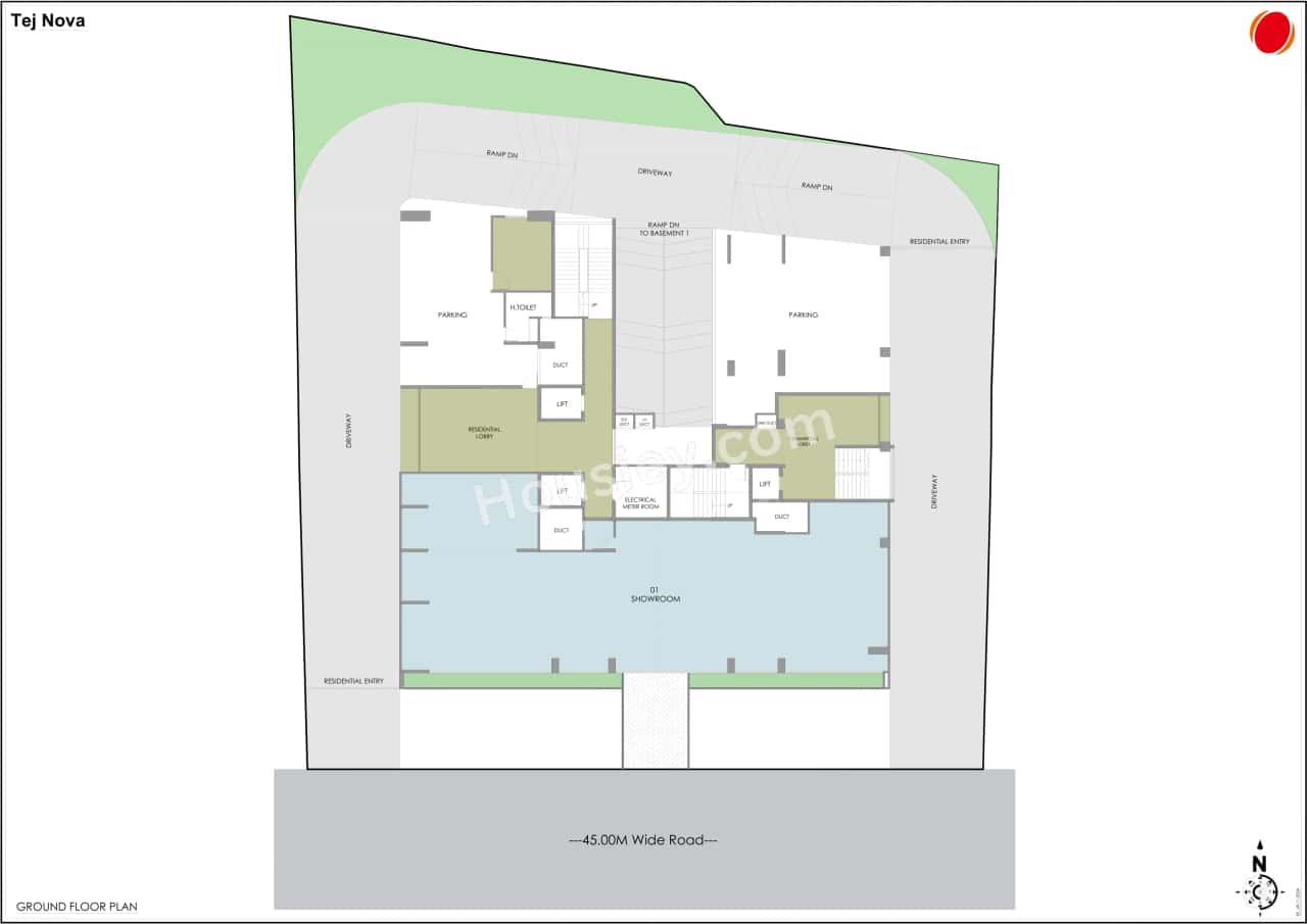
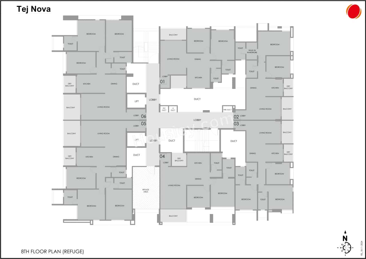
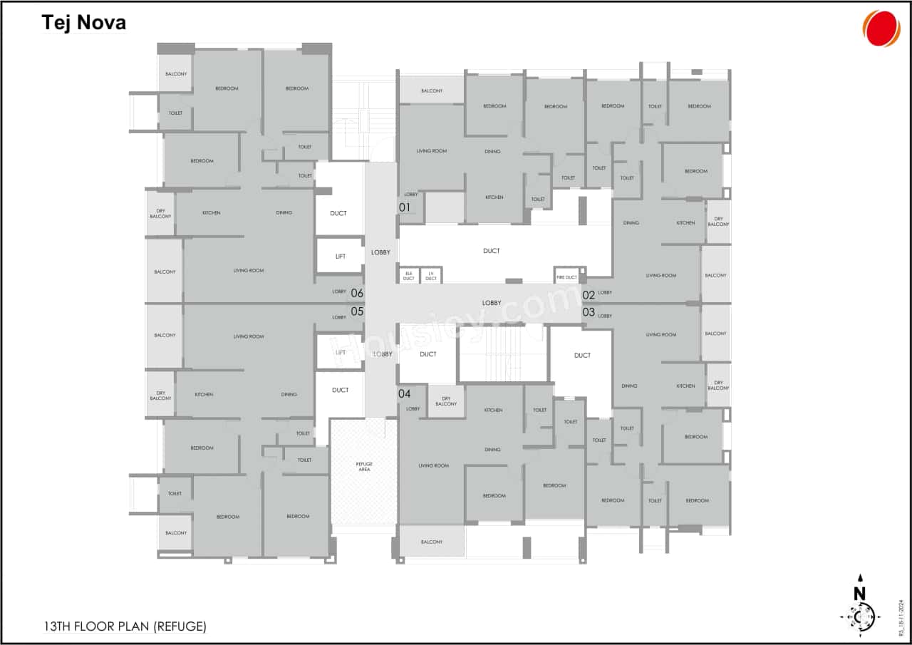
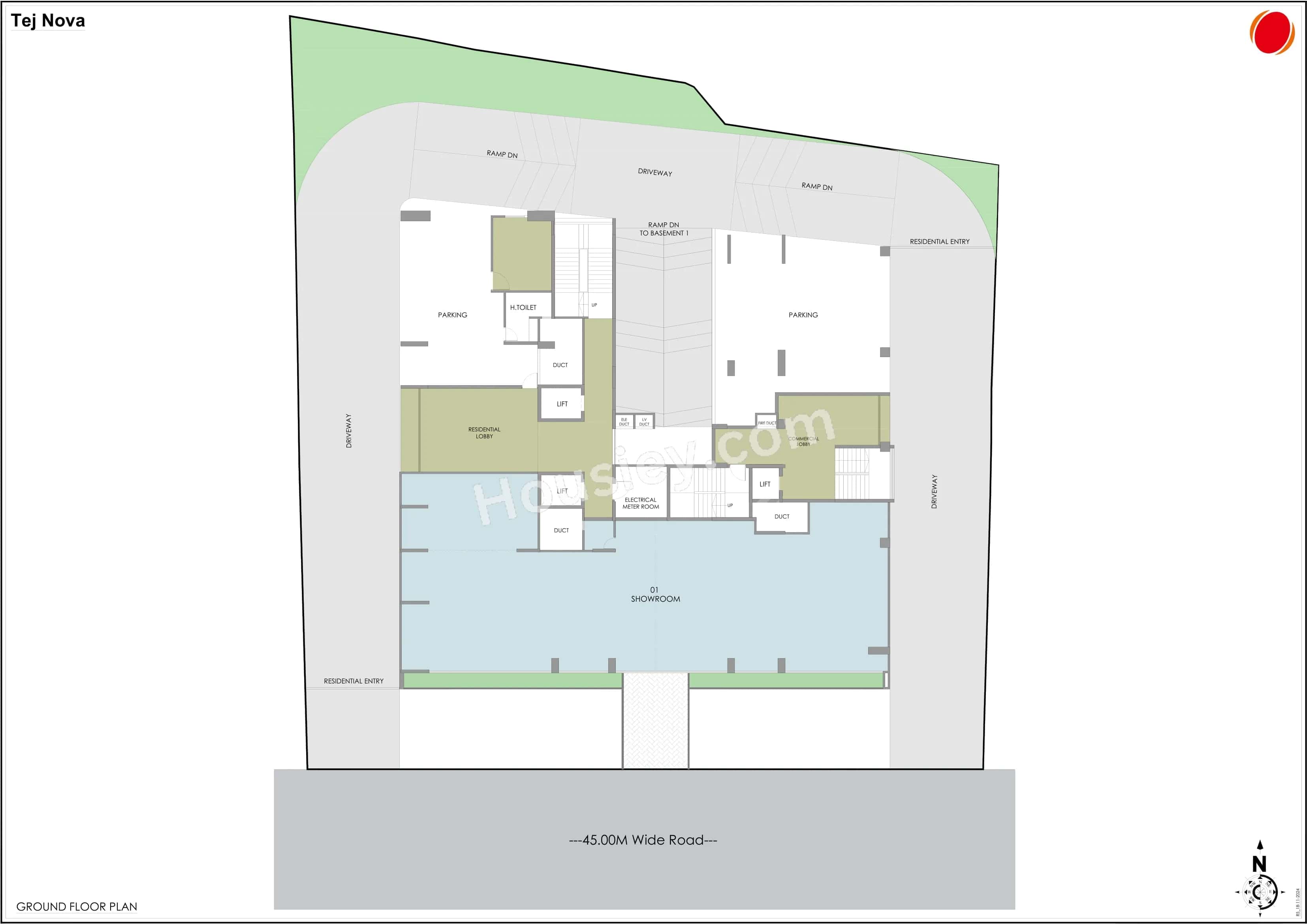
Tej Nova will be constructed on 0.45 acres of land parcel, 1 tower with 2B+G+14 floors having 3BHK premium residences .
Tej Nova location
Project is located Near Shankar Sheth Rd, Shanti Nagar Society, Bhawani Peth, Pune. with -
Kumar Pacific mall - 200m
SD Bhawani Peth Chowk - 1.6km
Swargate Bus Station - 1.5km
Tej Nova Bhawani Peth Project Amenities
First is Internal amenities -
Digital lock, Vitrified Tiles, Granite Kitchen Platform, Anti-Skid Ceramic Tiles, Earthquake-resistant RCC structure, SS Sink, MS Grills, SS Glass Railing, Power Backup For Common Areas, Gypsum Finish Internal Walls, Provision For Mosquito Mesh & many more
Tejraj Group Bhawani Peth External Amenities
Project has 10+ Amenities with likes of -
Yoga / Meditation Area
Children's Play Area
Senior Citizen Seating Area
Multipurpose Hall
Indoor Games & Many More.
Tejraj Group Bhawani Peth Bhawani Peth Parking -
Project has Two types of car parking facility -
1) Mechanical / Stack car parking
Tej Nova Bhawani Peth Possession -
Rera Possession - December 2027
Target Possession - December 2027
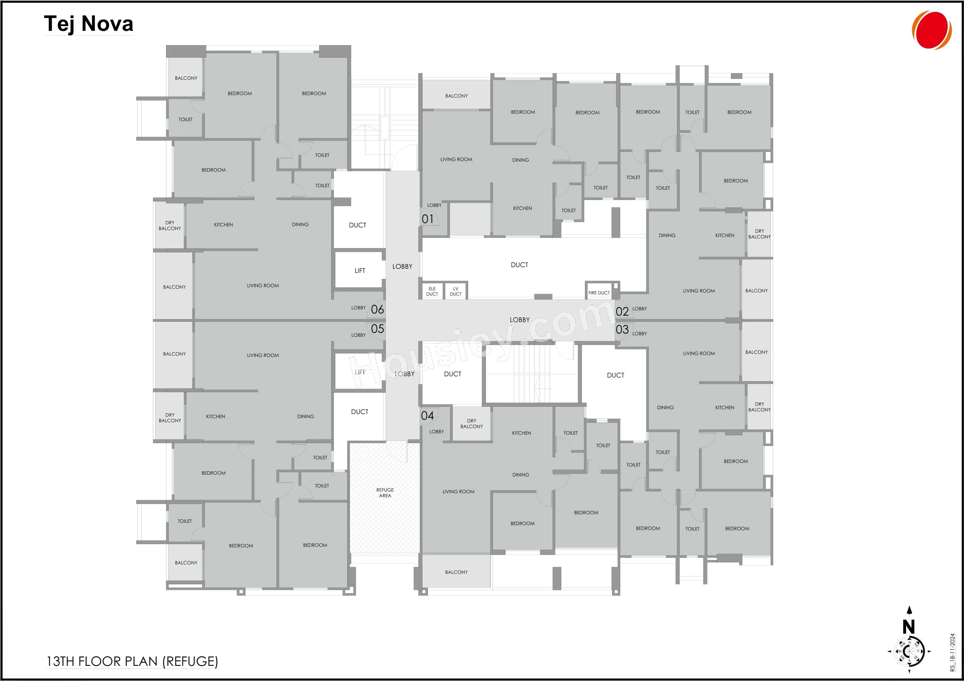
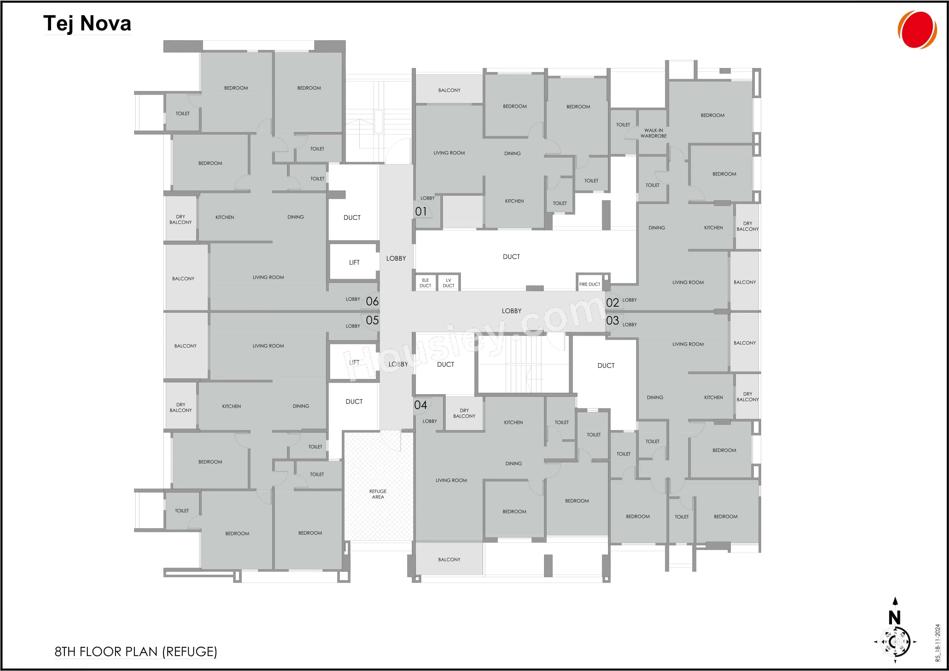
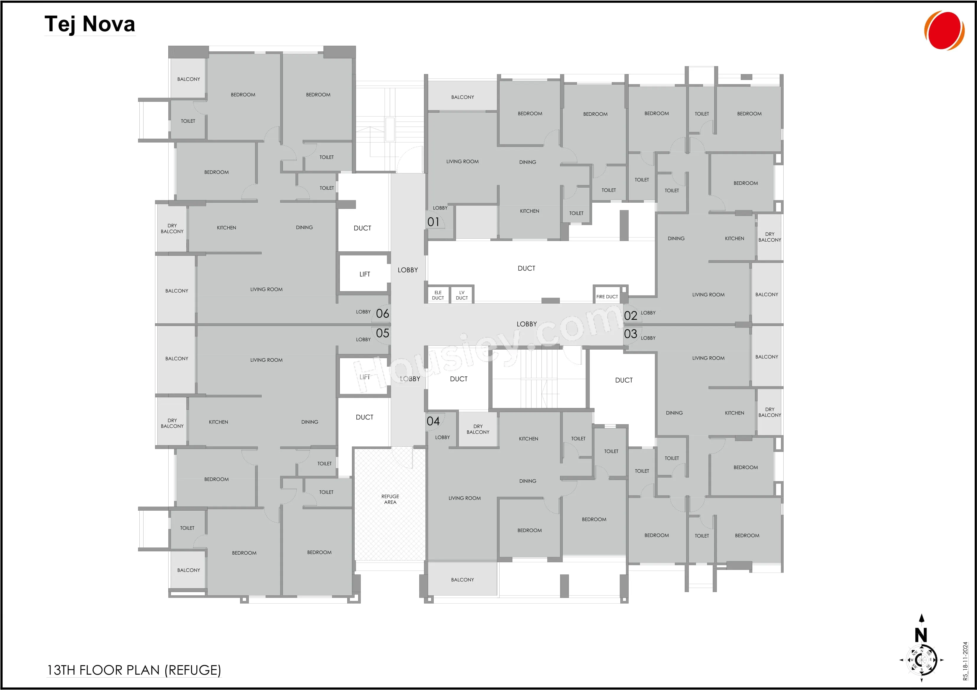
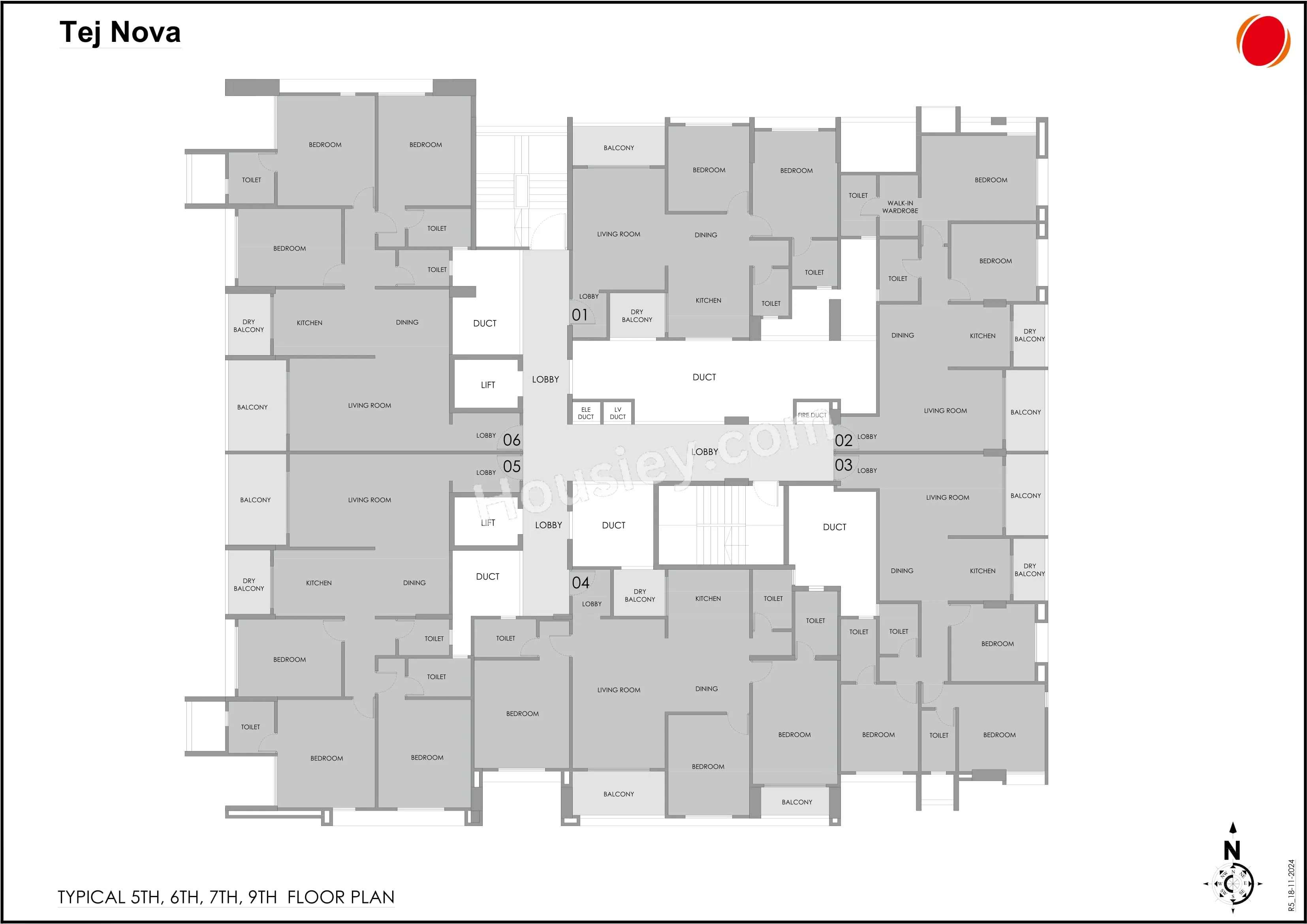
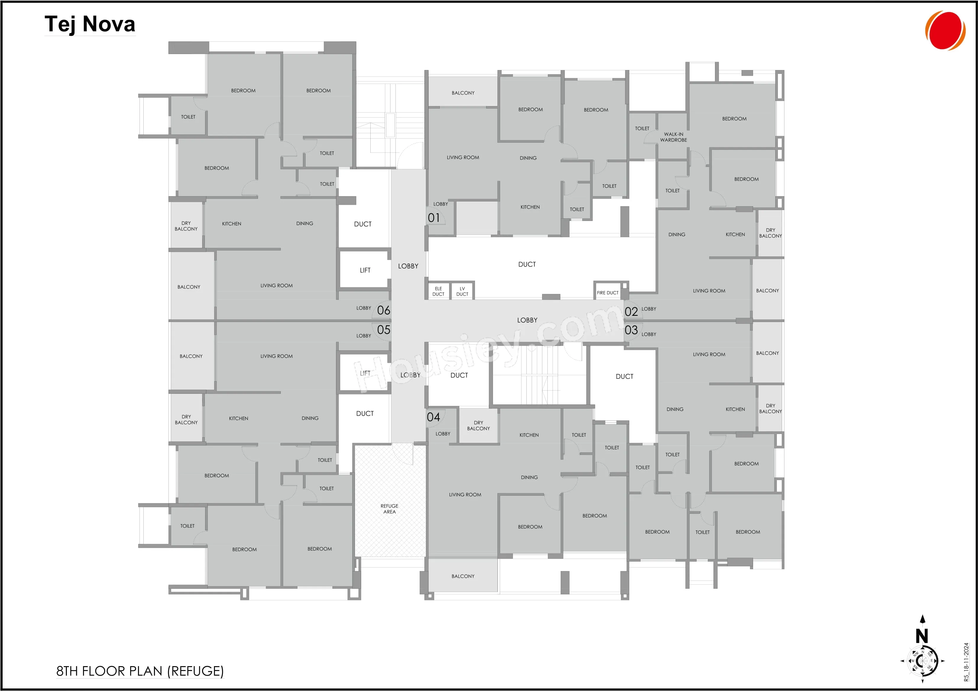
Carpet Area & Floor Plan
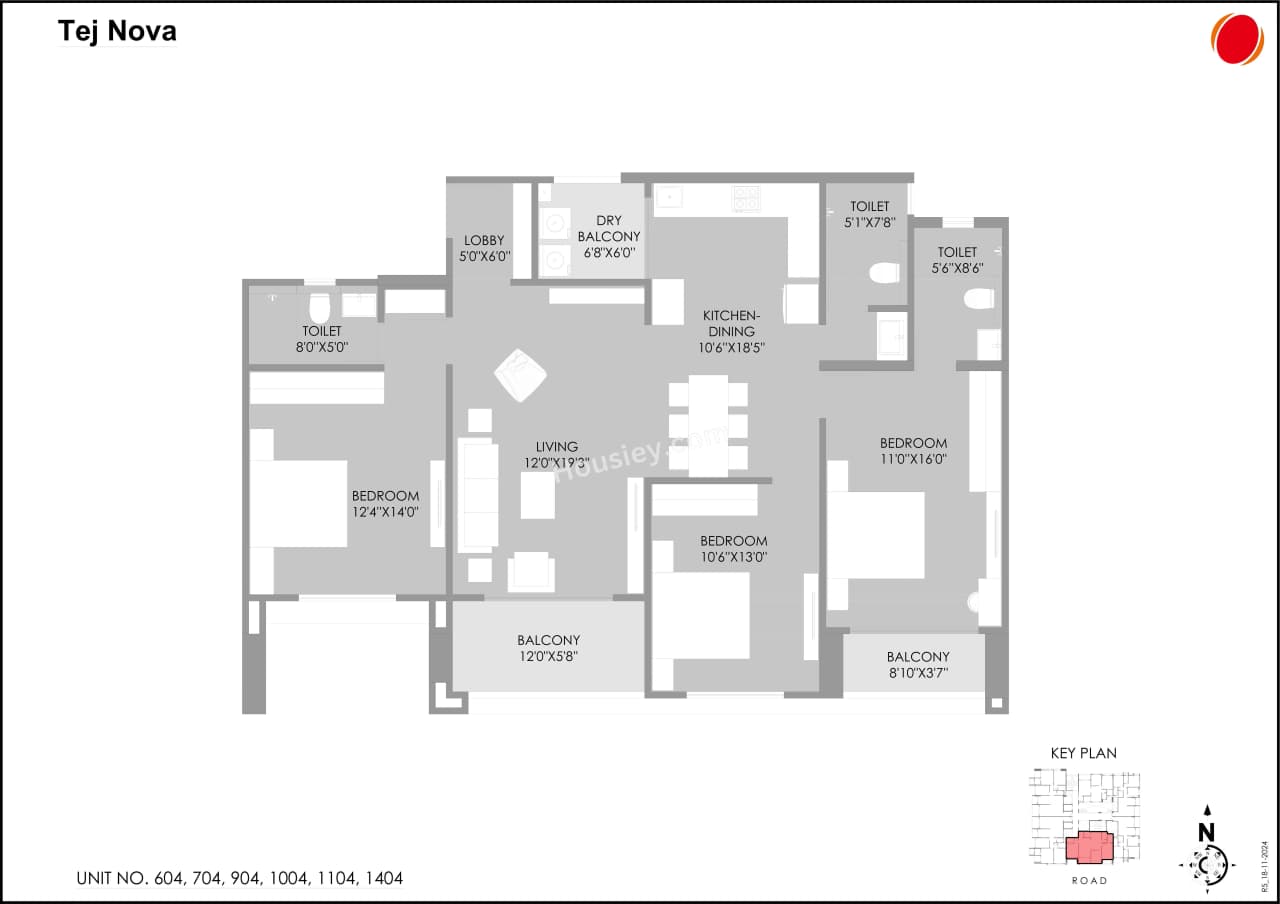
Bhawani Peth project has 3BHK residences with -
3BHK - (1318 to 1464)sqft
Tej Nova Bhawani Peth floor plans
All Tower floor plan will have 4 flats, 2 lifts & 2 staircases on each floor.
Maintenance -
Tej Nova Pune Project maintenance varies with the configuration and the carpet area which are as follows-
3BHK - Rs (5000 - 6000) per month
Tej Nova Bhawani Peth Prices & its details can be found in the price section & Tej Nova brochure can be downloaded from the link mentioned below. Project has been praised by the home buyers & Tejraj Group review is 4 out of 5 from over all the clients who have visited the site.
Near Shankar Sheth Rd, Shanti Nagar Society, Bhawani Peth, Pune.

Pros
Cons
Digital Lock
Vitrified Tiles
Granite Kitchen Platform
Stainless Steel Sink
Mosquito Mesh Windows
Acrylic Emulsion Paints
CCTV Camera
Kids Play Area
Senior Citizen Area
Outdoor Gym
Open Gym
Yoga Zone
Meditation Zone
Indoor games
Multi purpose hall




| Carpet Area | All Inc. Price (Inc. of Taxes & Charges) | Min Downpayment (Inc. Taxes) | Parking | Unit Plan |
|---|---|---|---|---|
1318 sqft | 3.14 Cr All In | 47.00 Lacs | 2 | ![]() |
1346 sqft | 3.21 Cr All In | 48.00 Lacs | 2 | ![]() |
1352 sqft | 3.22 Cr All In | 48.00 Lacs | 2 | ![]() |
1464 sqft | 3.47 Cr All In | 52.00 Lacs | 2 | ![]() |

Is there any litigation against this proposed project:
NoTej Nova Commencement Certificate
Tej Nova Legal Title Report
Tej Nova Layout Plan Approval
Note: You can download more detailed documents by following this link
Tejraj Group

1 CityLocations
Pune

Housiey Legal: Free Real Estate Legal Consultation
Get Expert Advice on RERA, Builder Refunds, Area Mismatch, Stuck Projects & More - at No Cost!