Last updated: Feb 6, 2026










Land Parcel
Towers
Floors
Config
Carpet Area
RERA NO.
Possession Status
Target Possession
RERA Possession
Litigation
Swaroop Andheri West Project Overview
Swaroop Grandeur Project will be constructed on 0.68 acre of land parcel, 2 Towers with G+4P+16 floors having 2 BHK, 3 BHK, 4 BHK premium residences.
Swaroop Grandeur location
Project is located Ratan Nagar Ln, Versova, Andheri West, Mumbai with -
Versova Metro Stn - 350m
Infiniti Mall - 2.1km
Andheri Railway Stn - 3.1km
Swaroop Grandeur Andheri Project Amenities
First is Internal amenities -
Vitrified Tiles, Modular Kitchen, Stainless Steel Sink & many more
Swaroop Group Andheri West External Amenities
Project has 25+ luxurious amenities with likes of -
Kids Play Area
Swimming Pool
Yoga & Meditation Area
Banquet Hall
Multipurpose Turf & Many More
Swaroop Group Grandeur Andheri West Parking -
Project has one type of car parking facility -
1) Podium
Swaroop Grandeur Possession -
Rera Possession - March 2029
Target Possession - December 2027
Carpet Area & Floor Plan
Swaroop Grandeur project has 2BHK, 3BHK, 4BHK premium residences with -
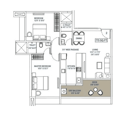
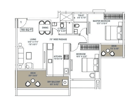
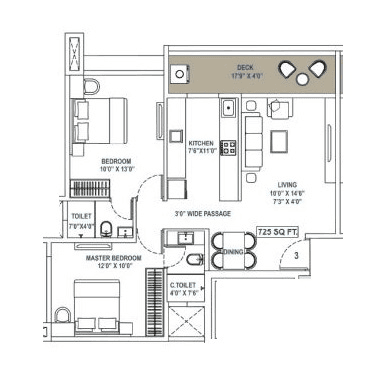
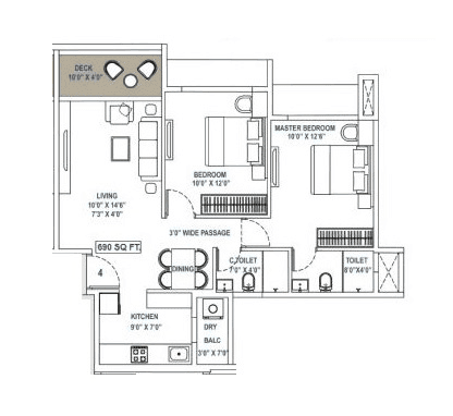
2BHK - (690 to 775) sqft
3BHK - 1425 sqft
4BHK - 1550 sqft
Swaroop Grandeur floor plan
Tower floor plan will have 6 flats, 2 lifts & 1 staircase on each floor
Maintenance -
Swaroop Grandeur Mumbai Project maintenance varies with the configuration and the carpet area which are as follows -
2BHK - Rs (10300 - 11600) per month
3BHK - Rs 21300 per month
4BHK - Rs 23200 per month
Grandeur Prices & its details can be found in the price section & Swaroop Grandeur Andheri West brochure can be downloaded from the link mentioned below. Project has been praised by the home buyers & Swaroop Group Andheri West review is 4 out of 5 from over all the clients who have visited the site.
Ratan Nagar Ln, Versova, Andheri West, Mumbai

Pros
Cons
Vitrified Tiles
Granite Kitchen Platform
Stainless Steel Sink
Swimming Pool
Kids Play Area
Jogging Track
Garden
Multi Purpose Court
Senior Citizen Area
Kids Pool
Infinity Pool
Library
Yoga Zone
Meditation Zone
Banquet Hall
Seating Area
Pool deck
Carrom
+7 More




| Carpet Area | All Inc. Price (Inc. of Taxes & Charges) | Min Downpayment (Inc. Taxes) | Parking | Unit Plan |
|---|---|---|---|---|
690 sqft | 3.24 Cr All In | 49.00 Lacs | 1 | ![]() |
725 sqft | 3.40 Cr All In | 51.00 Lacs | 1 | ![]() |
765 sqft | 3.59 Cr All In | 54.00 Lacs | 1 | ![]() |
775 sqft | 3.64 Cr All In | 55.00 Lacs | 1 | ![]() |

Is there any litigation against this proposed project:
NoSwaroop Grandeur Commencement Certificate
Swaroop Grandeur Legal Title Report
Swaroop Grandeur Layout Plan
Note: You can download more detailed documents by following this link
Swaroop Group

2 CitiesLocations
Mumbai City, Mumbai suburban

333 - 2006 sqft
Raheja Universal
Developer


557 - 1031 sqft
Transcon Developers
Developer

766 - 1170 sqft
I Dudhwala Group
Developer
766 - 1170 sqft
Hiranandani Group
Developer
4300 - 4300 sqft
Lodha Group
Developer
--1702555652971-img.webp&w=1280&q=75)











Housiey Legal: Free Real Estate Legal Consultation
Get Expert Advice on RERA, Builder Refunds, Area Mismatch, Stuck Projects & More - at No Cost!