Last updated: Mar 28, 2026










Land Parcel
Towers
Floors
Config
Carpet Area
RERA NO.
Possession Status
Target Possession
RERA Possession
Litigation
Sushanku Goregaon West Project Overview
Sushanku 36 Avenue Project will be constructed on 0.5 acre of land parcel, 1 tower with G+22 floors having 1 BHK & 2 BHK premium residences.
Sushanku 36 Avenue location
Project is Located Near New Link Road, Siddharth Nagar, Goregaon West, Mumbai with -
SV Road - 600m
Goregaon Railway Station - 1.5km
Western Express Highway - 2.9km
Sushanku 36 Avenue Goregaon West Project Amenities
First is Internal amenities -
Vitrified Tiles, Branded Fittings, Kitchen Platform SS sink & many more
Sushanku Realty Goregaon West External Amenities
Project has luxurious 30+ amenities with likes of -
Gymnasium
Roof Top Sit - Out
Yoga Zone
Kids Play Area
Wallking Track & many more
Sushanku Realty 36 Avenue Goregaon West Parking -
Project has one type of car parking facility -
1) Stack Parking
Sushanku 36 Avenue Possession -
Rera Possession - December 2025
Target Possession - September 2025
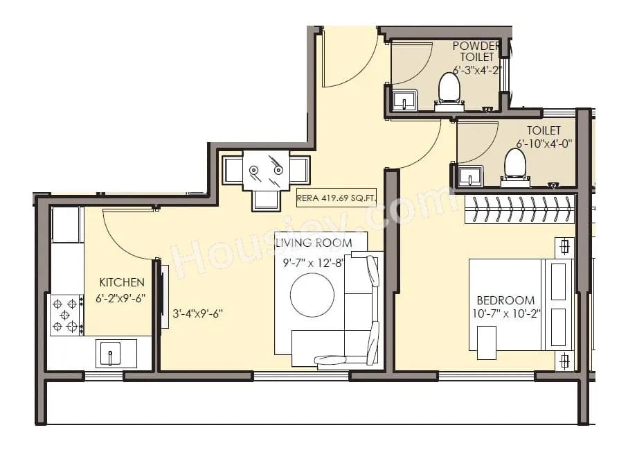
Carpet Area & Floor Plan
36 Avenue project has 1BHK & 2BHK, residences with -
1BHK - (419 to 440) sqft
2BHK - 632 sqft
Sushanku 36 Avenue floor plan
Tower floor plan will have 6 flats 2 lifts & 1 staircase on each floor
Maintenance -
Sushanku 36 Avenue Mumbai Project maintenance varies with the configuration and the carpet area which are as follows-
1BHK - Rs (2100 - 2200) per month
2BHK - Rs 3200 per month
36 Avenue Prices & its details can be found in the price section & Sushanku 36 Avenue Goregaon West brochure can be downloaded from the link mentioned below. Project has been praised by the home buyers & Sushanku Realty Goregaon West review is 4 out of 5 from over all the clients who have visited the site.
Nr New Link Rd, Siddharth Nagar, Goregaon West, Mumbai

Pros
Cons
Vitrified Tiles
Granite Kitchen Platform
Stainless Steel Sink
Branded Fittings
CCTV Camera
Fire Fighting
Swimming Pool
Kids Play Area
Senior Citizen Area
Yoga Zone
Seating Area
Gymnasium
Walking Track


| Carpet Area | All Inc. Price (Inc. of Taxes & Charges) | Min Downpayment (Inc. Taxes) | Parking | Unit Plan |
|---|---|---|---|---|
419 sqftSold Out | ![]() | - | - | ![]() |
427 sqftSold Out | ![]() | - | - | ![]() |
440 sqftSold Out | ![]() | - | - | ![]() |


Is there any litigation against this proposed project:
NoSushanku Realty

2 CitiesLocations
Mumbai City, Mumbai suburban


388 - 815 sqft
Integrated
Developer











644 - 973 sqft
Agarwal Group of Companies
Developer



462 - 1340 sqft
H Rishabraj Group
Developer
Housiey Legal: Free Real Estate Legal Consultation
Get Expert Advice on RERA, Builder Refunds, Area Mismatch, Stuck Projects & More - at No Cost!