





Land Parcel
Towers
Floors
Config
Carpet Area
RERA NO.
Possession Status
Target Possession
RERA Possession
Litigation
Skyway Rahatani Project Overview
Skyway Parvati Project will be constructed on 0.21 acre of land parcel, 2 towers with G+6 floors having 2BHK, 3BHK premium residences .
Skyway Parvati Location
Project is located Near Aundh - Ravet BRTS Rd, Shivraj Nagar, Rahatani, Pune with -
Kalewadi Phata - 1.1km
Kokane Chowk - 1.4km
D Mart- 2.4km
Skyway Parvati Rahatani Project Amenities
First is Internal amenities -
Vitrified tiles, CP Sanitary Fittings, Granite Kitchen Platform, SS Sink, powder coated aluminium windows, Provision For Piped Gas, Rain Water Harvesting, Video Door Phone & many more
Skyway Builder & Developers Rahatani External Amenities
Project has 25+ luxurious amenities with likes of -
Kids Play Area
Senior Citizen Sit Out
EV Charging Point
Yoga Corner
Gazebo
Barbeque Area & many more
Skyway Builder & Developers Celaeno Rahatani Parking -
Project has one type of car parking facility -
1) Ground
Skyway Parvati Possession -
Rera Possession - June 2026
Target Possession - December 2025
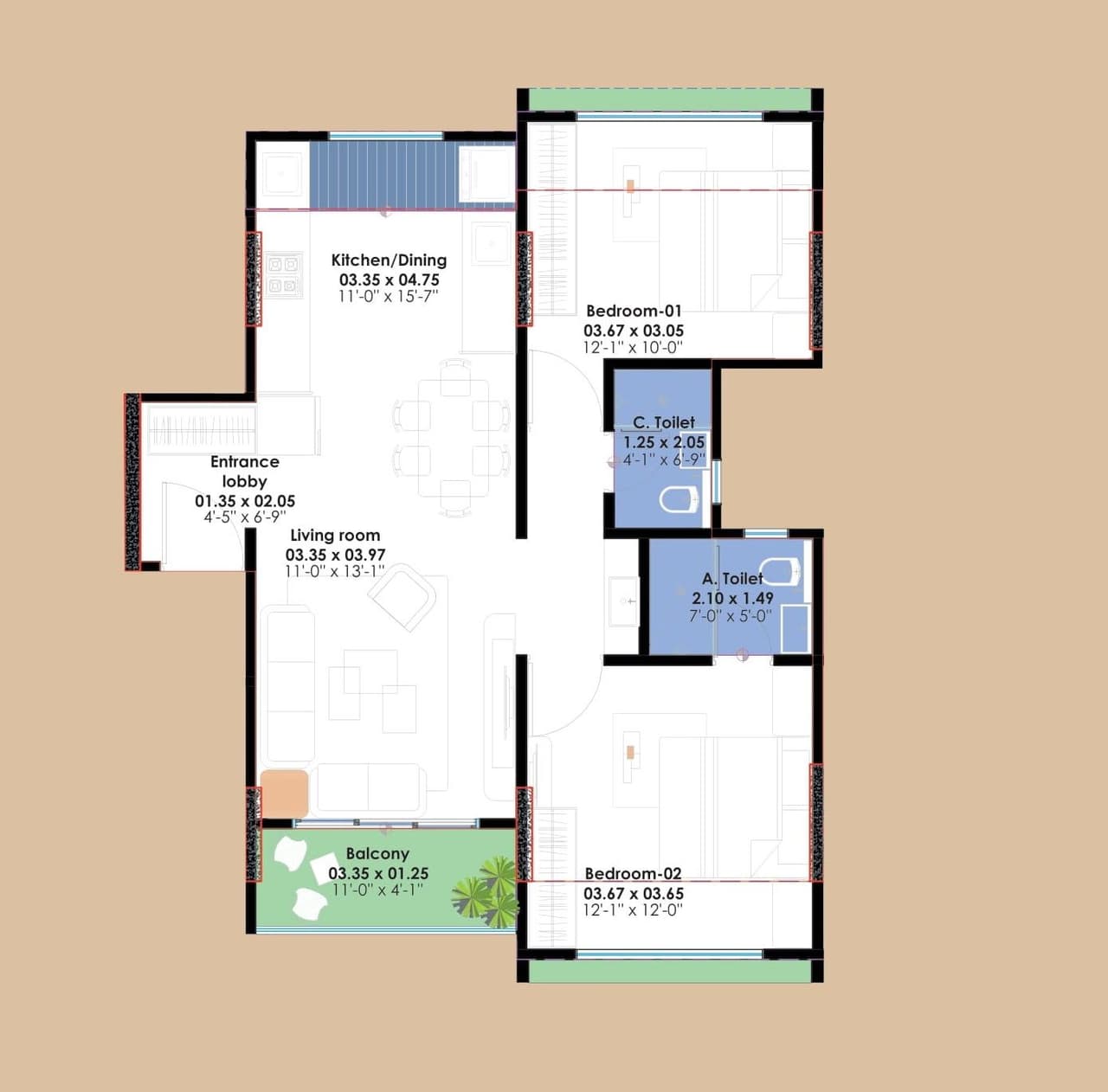
Carpet Area & Floor Plan
Skyway Parvati Rahatani project has 2BHK, 3BHK premium residences with -
2BHK - 812 sqft
3BHK - 1058 sqft
Skyway Parvati floor plan
Tower floor plan will have 4 flats 2 lifts & 2 staircases on each floor
Maintenance -
Skyway Parvati Pune Project maintenance varies with the configuration and the carpet area which are as follows-
2BHK - Rs 3200 per month
3BHK - Rs 4200 per month
Parvati Rahatani Prices & its details can be found in the price section & Skyway Parvati Rahatani brochure can be downloaded from the link mentioned below. Project has been praised by the home buyers & Skyway Builder & Developers Rahatani review is 4 out of 5 from over all the clients who have visited the site
Near Aundh - Ravet BRTS Rd, Shivraj Nagar, Rahatani, Pune

Pros
Cons
Video Door Phone
Vitrified Tiles
Granite Kitchen Platform
Stainless Steel Sink
Kids Play Area
Jogging Track
Garden
Senior Citizen Area
Barbeque Deck
Acupressure Pathway
Gazebo
Star Gazing
Yoga Deck


| Carpet Area | All Inc. Price (Inc. of Taxes & Charges) | Min Downpayment (Inc. Taxes) | Parking | Unit Plan |
|---|---|---|---|---|
812 sqft | 87.00 Lacs All In | 13.00 Lacs | 1 | ![]() |

Is there any litigation against this proposed project:
NoCommencement Certificate Skyway Parvati
Legal Title Report Skyway Parvati
Layout Plan Skyway Parvati
Note: You can download more detailed documents by following this link
Skyway Builder

1 CityLocations
Pune


863 - 1267 sqft
Goldfinger Kataria
Developer
--1713529158590-img.webp&w=1280&q=75)


747 - 1530 sqft
Wamanbhau Developers
Developer
Housiey Legal: Free Real Estate Legal Consultation
Get Expert Advice on RERA, Builder Refunds, Area Mismatch, Stuck Projects & More - at No Cost!