Last updated: Mar 21, 2026








Land Parcel
Towers
Floors
Config
Carpet Area
RERA NO.
Possession Status
Target Possession
RERA Possession
Litigation
Shraddha Borivali West Project Overview
Shraddha Paradise will be constructed on 3 acres of land parcel, 1 tower with G+3P+34 floors having 2BHK, 3BHK premium residences.
Shraddha Paradise location
Project is located Near S.V Road, Borivali West, Mumbai with -
DMart - 1.8km
Western Express Highway - 2.1km
Shimpoli Metro Station - 2.4km
Shraddha Paradise Borivali West Project Amenities
First is Internal amenities -
Vetrified Tiles, Branded Fittings, Kitchen Platform & many more
Shraddha Prime Projects Borivali West External Amenities
Project has 20+ luxurious with likes of -
Gymnasium
Open Party Area
Cricket Turf Net
Jogging Track
Jacuzzi & Many More
Shraddha Prime Projects Paradise Borivali West Parking -
Project has one type of car parking facility -
1) Podium
Shraddha Paradise Possession -
Rera Possession - December 2027
Target Possession - December 2026
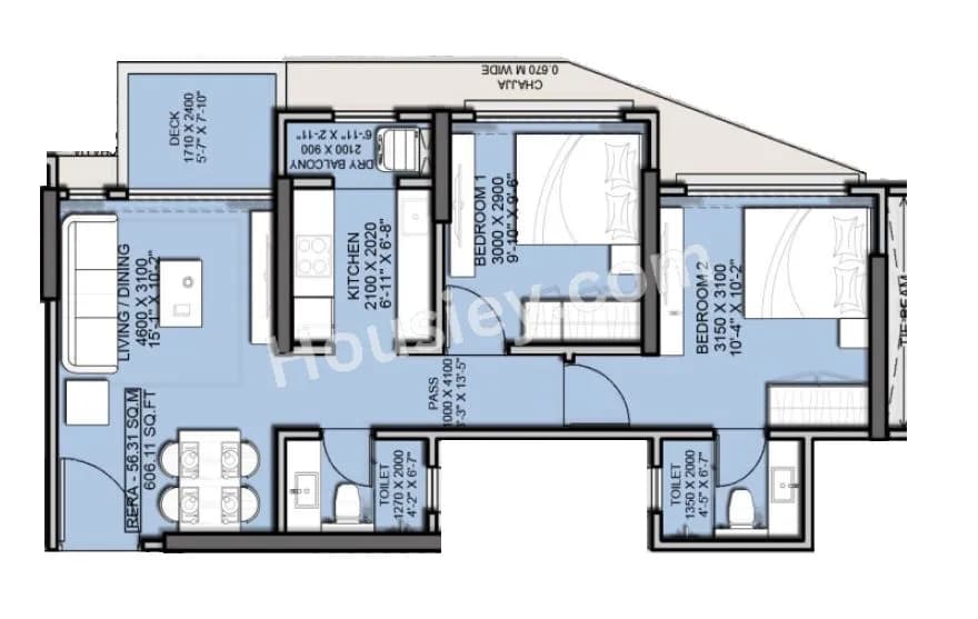
Carpet Area & Floor Plan
Paradise project has 1BHK & 2BHK premium residences with -
2BHK - (606 to 690) sqft
3BHK - 880 sqft
Shraddha Paradise floor plan
Tower floor plan will have 6 flats 3 lifts & 2 staircases on each floor
Maintenance -
Shraddha Paradise Mumbai Project maintenance varies with the configuration and the carpet area which are as follows-
2BHK - Rs (7200 - 8200) per month
3BHK - Rs 10500 per month
Paradise Borivali West project sample flat is ready to view at the site.
Paradise Borivali West Prices & its details can be found in the price section & Shraddha Paradise Borivali West brochure can be downloaded from the link mentioned below. Project has been praised by the home buyers & CCI Borivali West review is 4 out of 5 from over all the clients who have visited the site.
Near S.V Road, Sumer Nagar, Borivali West, Mumbai

Pros
Cons
Vitrified Tiles
Granite Kitchen Platform
Branded Fittings
Kids Play Area
Jogging Track
Net Cricket
Steam Room
Library
Yoga Zone
Seating Area
Party Terrace
Tree plaza
Jacuzzi
Indoor games
party lawn
Landscaped Garden
Gymnasium
Mini Theatre


| Carpet Area | All Inc. Price (Inc. of Taxes & Charges) | Min Downpayment (Inc. Taxes) | Parking | Unit Plan |
|---|---|---|---|---|
606 sqft | 2.05 Cr All In | 31.00 Lacs | 12 Lacs | ![]() |
674 sqft | 2.28 Cr All In | 34.00 Lacs | 12 Lacs | ![]() |
690 sqft | 2.34 Cr All In | 35.00 Lacs | 12 Lacs | ![]() |

Is there any litigation against this proposed project:
NoShraddha Paradise Commencement Certificate
Shraddha Paradise Legal Title Report
Shraddha Paradise Layout Plan
Note: You can download more detailed documents by following this link
Shraddha Prime Projects

2 CitiesLocations
Mumbai suburban, Mumbai City



--1723547672116-img.webp&w=3840&q=75)






417 - 931 sqft
Shivoham Group
Developer









Housiey Legal: Free Real Estate Legal Consultation
Get Expert Advice on RERA, Builder Refunds, Area Mismatch, Stuck Projects & More - at No Cost!