Last updated: Mar 27, 2026













Land Parcel
Towers
Floors
Config
Carpet Area
RERA NO.
Possession Status
Target Possession
RERA Possession
Litigation
Romell Borivali West Project Overview
Romell Ariana Project will be constructed on 1 acre of land parcel, 1 tower with G+19 floors having 2 BHK premium residences.
Romell Ariana Location
Project is located Near New Link Rd, Borivali West Mumbai with -
Mandapeshwar Metro Stn - 350m
DMart - 1.1km
Borivali Railway Station - 3.2km
Romell Ariana Borivali West Project Amenities
First is Internal amenities -
Vitrified Tiles, Granite Platform, SS sink, CP fitting & many more
Romell Group Borivali West External Amenities
Project has 25+ amenities with likes of -
Fitness Center
Yoga room
Party Lawn
Mini Multipurpose Court
Reflexology Path & many more
Romell Group Ariana Borivali West Parking -
Project has one type of car parking facility -
1) Parking Tower
Romell Ariana Possession -
Rera Possession - December 2028
Target Possession - January 2028
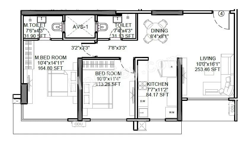
Carpet Area & Floor Plan
Ariana Mumbai project has 2BHK premium residences with -
2BHK - (682 to 700) sqft
Romell Ariana floor plan
Tower floor plan will have 5 flats 3 lifts & 1 staircase on each floor
Maintenance -
Romell Ariana Borivali West Project maintenance varies with the configuration and the carpet area which are as follows
2BHK - Rs (6800 - 7000) per month
Ariana Prices & its details can be found in the price section & Romell Ariana Borivali West brochure can be downloaded from the link mentioned below. Project has been praised by the home buyers & Romell Group Borivali West review is 4 out of 5 from over all the clients who have visited the site
Near I C Colony Road, I C Colony, Borivali West, Mumbai

Pros
Cons
Vitrified Tiles
Granite Kitchen Platform
Stainless Steel Sink
CCTV Camera
Swimming Pool
Kids Play Area
Jogging Track
Multi Purpose Court
Senior Citizen Area
Meditation Zone
Seating Area
Indoor games
party lawn
Yoga Deck
Gymnasium
Walking Track
Fitness Deck


| Carpet Area | All Inc. Price (Inc. of Taxes & Charges) | Min Downpayment (Inc. Taxes) | Parking | Unit Plan |
|---|---|---|---|---|
700 sqft | 2.24 Cr All In | 34.00 Lacs | 1 | ![]() |
682 sqft | 2.19 Cr All In | 33.00 Lacs | 1 | ![]() |
694 sqft | 2.22 Cr All In | 33.00 Lacs | 1 | ![]() |
697 sqft | 2.23 Cr All In | 33.00 Lacs | 1 | ![]() |

Is there any litigation against this proposed project:
NoRomell Ariana Commencement Certificate
Romell Ariana Legal Title Report
Romell Ariana Layout Plan
Note: You can download more detailed documents by following this link
Romell Group

1 CityLocations
Mumbai suburban



--1723547672116-img.webp&w=3840&q=75)






417 - 931 sqft
Shivoham Group
Developer
606 - 880 sqft
Shraddha Prime Projects
Developer








Housiey Legal: Free Real Estate Legal Consultation
Get Expert Advice on RERA, Builder Refunds, Area Mismatch, Stuck Projects & More - at No Cost!