





Land Parcel
Towers
Floors
Config
Carpet Area
RERA NO.
Possession Status
Target Possession
RERA Possession
Litigation
Rohan Bhugaon Project Overview
Rohan Saroha Phase 1 will be constructed on 5.79 acres of land parcel, 5 towers with G+3P+15/16 floors having 2BHK, 3BHK, 4BHK premium residences.
Rohan Saroha Phase 1 location
Project is located Near Mulshi Road, Mulshi, Bhugaon, Pune with -
Manas Lake - 2.9km
Chandani Chowk - 4.2km
Mumbai-Satara Hwy - 4.4km
Rohan Saroha Phase 1 Bhugaon Project Amenities
First is Internal amenities -
Vitrified tiles, Granite Kitchen, Earthquake resistance, Video door, Digital lock, DG backup, Solar Heater, SS railing, Fire-fighting, CP fitting, RCC,Frame Structure & Many more
Rohan Builders Bhugaon External Amenities
Project has 25+ luxurious amenities with likes of -
Swimming Pool
Gymnasium
Club House
Aqua Deck
Kids Play Area
Multipurpose Hall & many more
Rohan Builders Saroha Phase 1 Bhugaon Parking -
Project has one type of car parking facility -
1) Ground
Rohan Saroha Phase 1 Possession -
Rera Possession - September 2028
Target Possession - March 2028
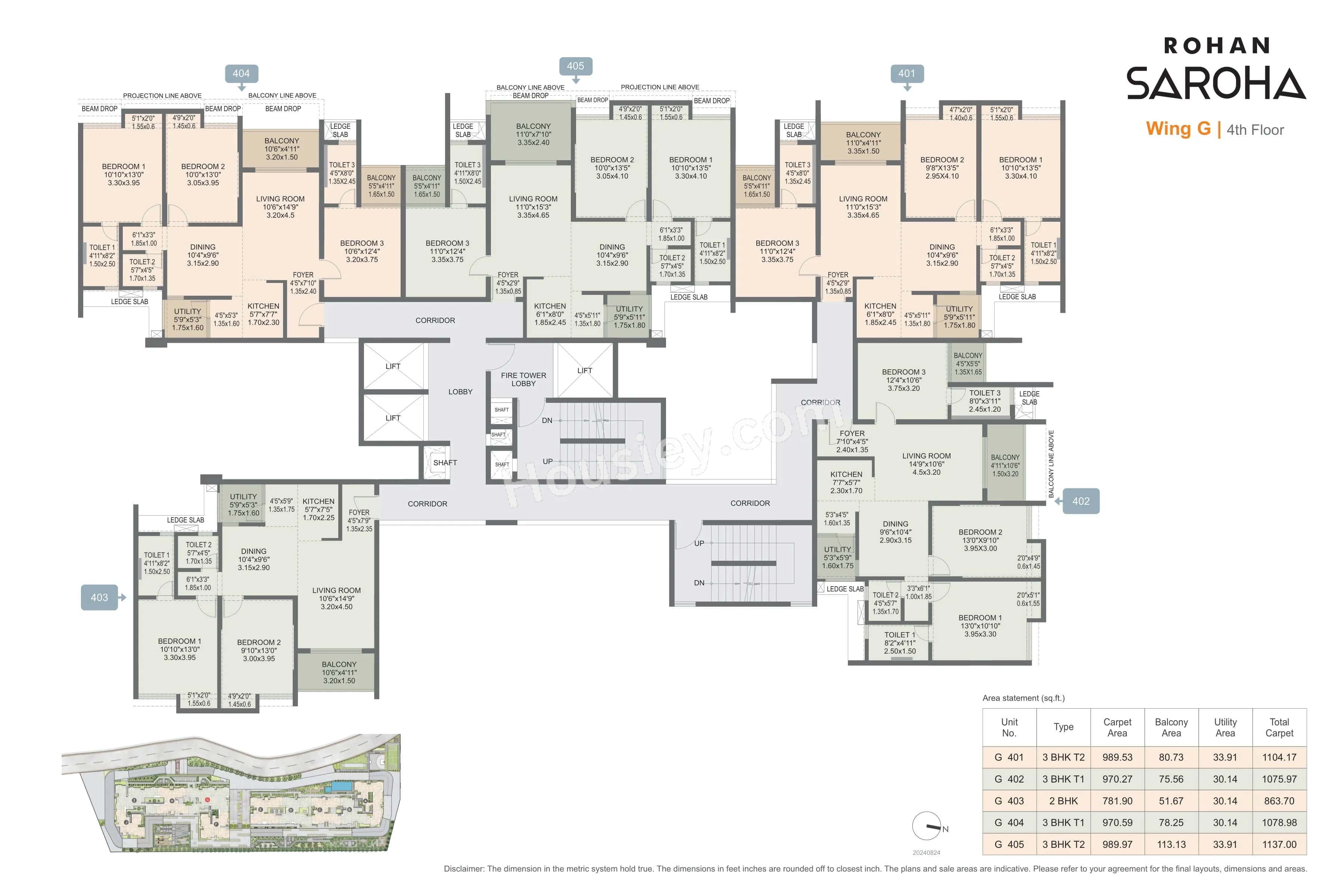
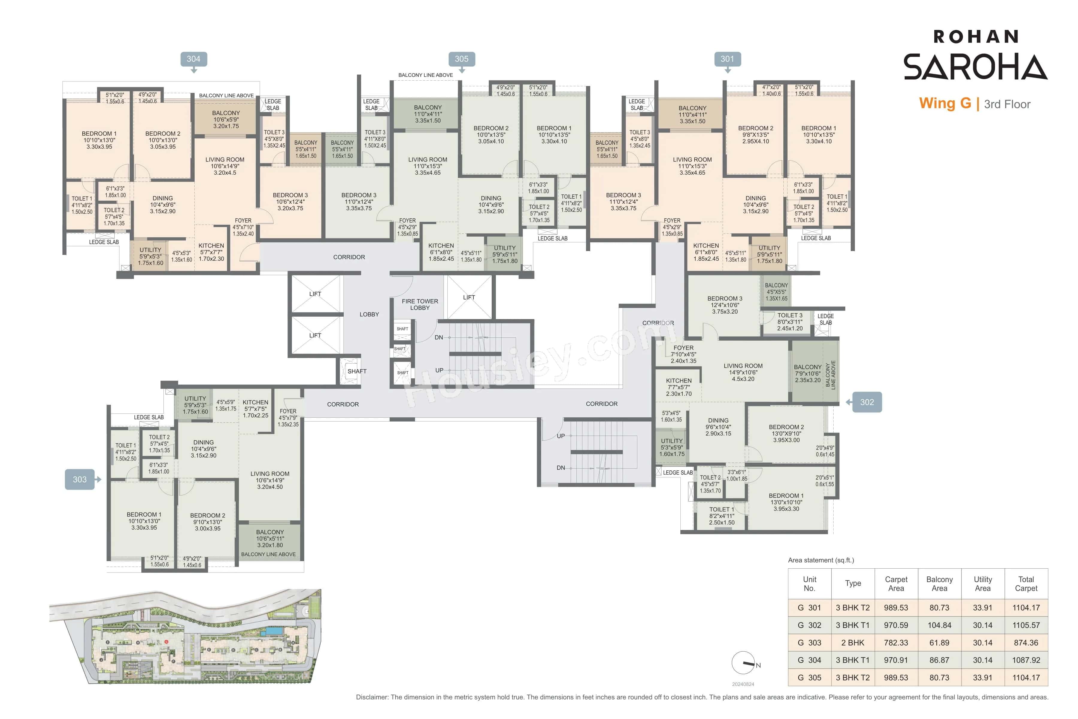
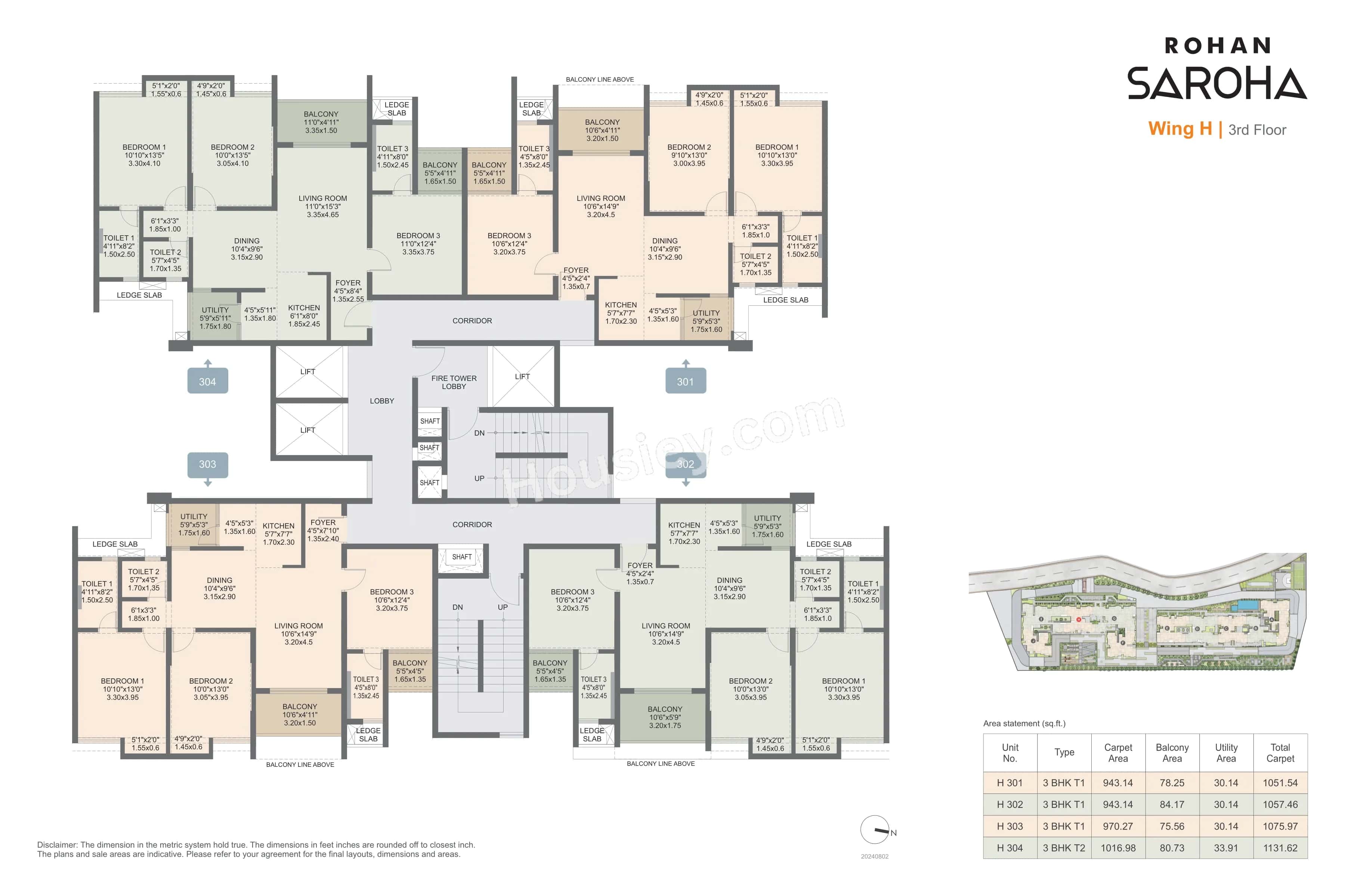
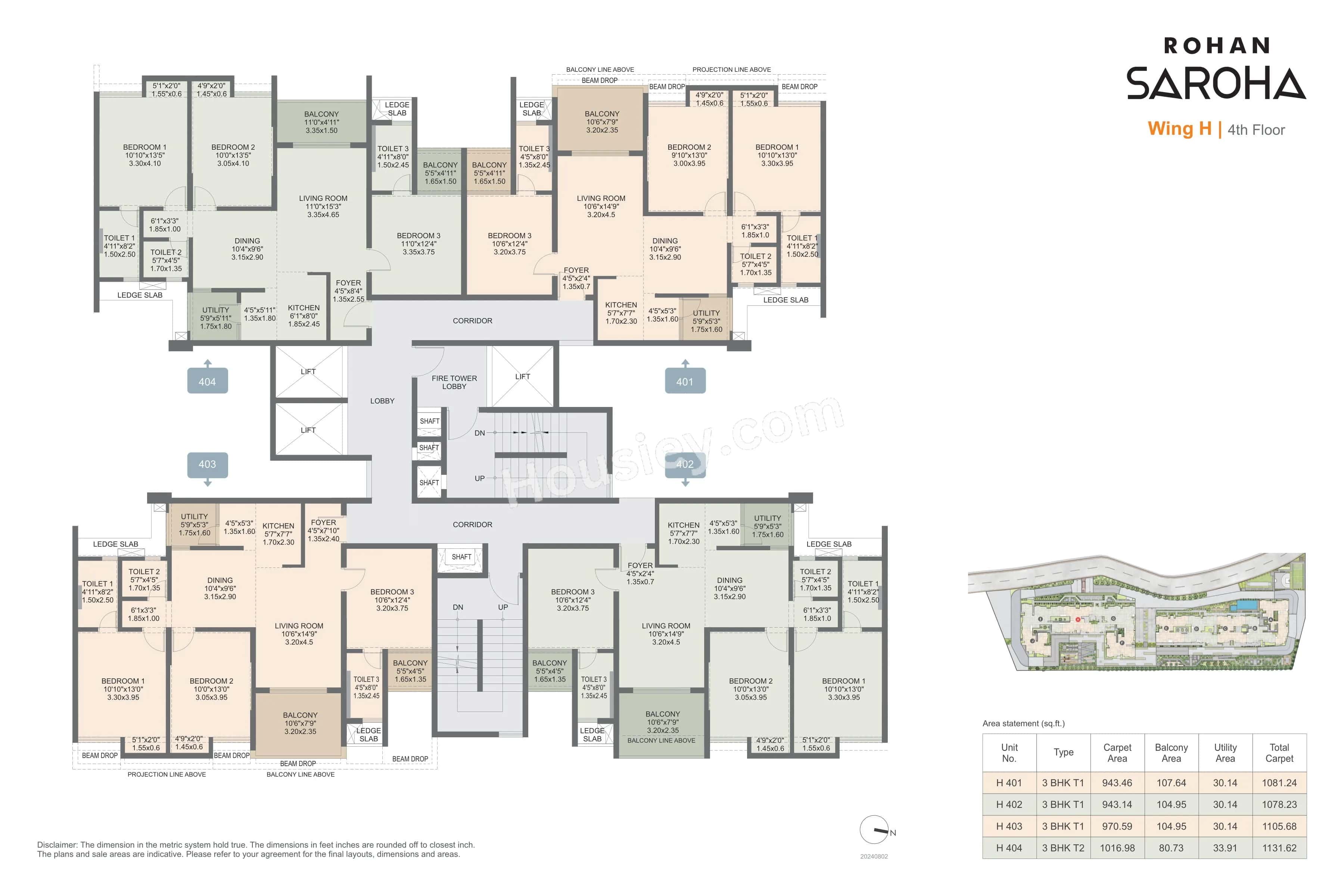
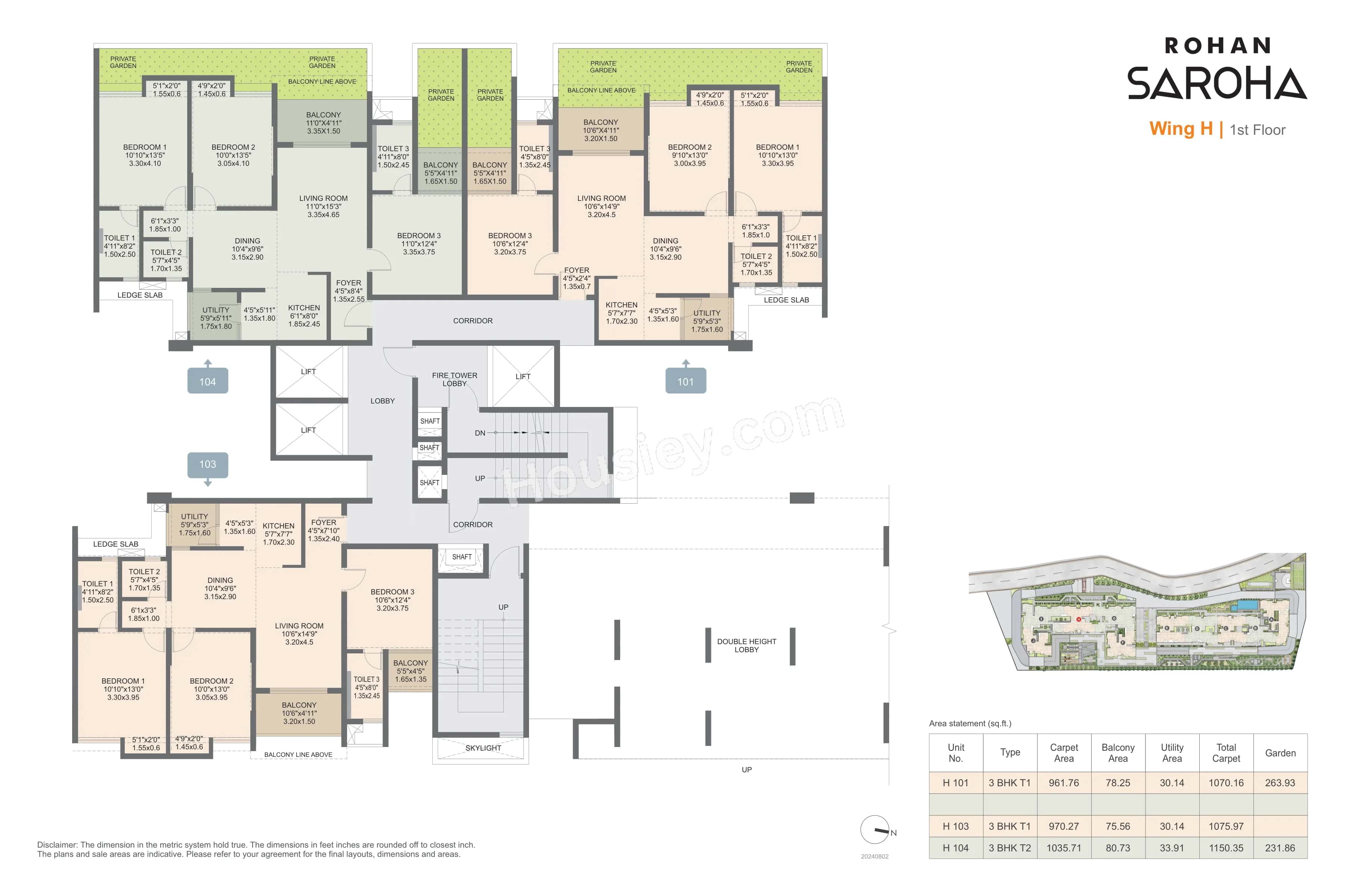
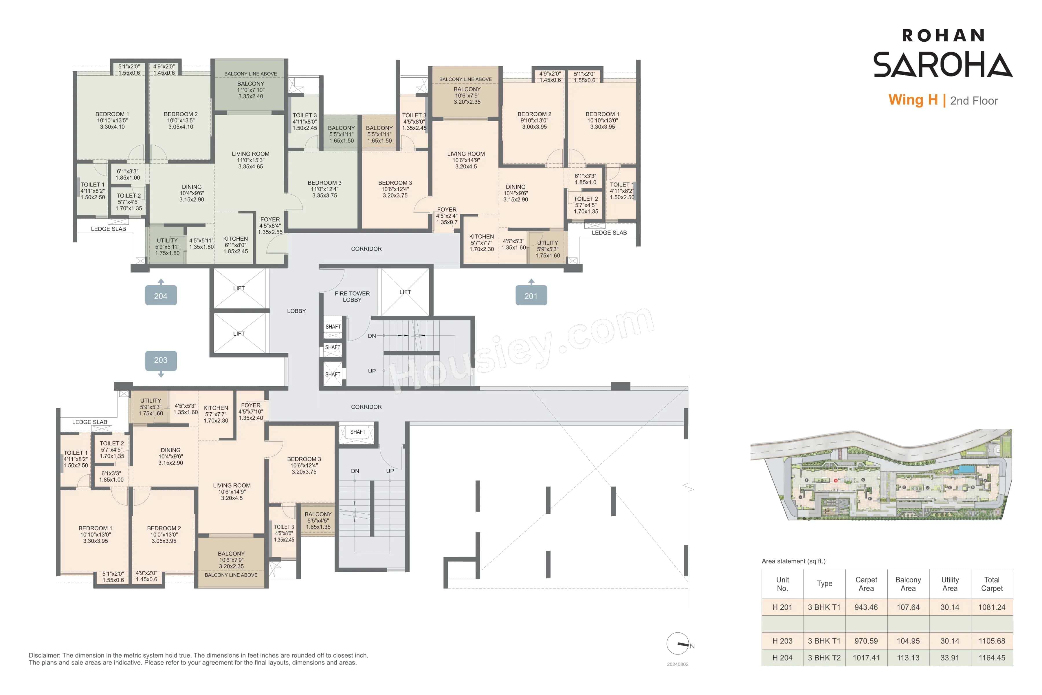
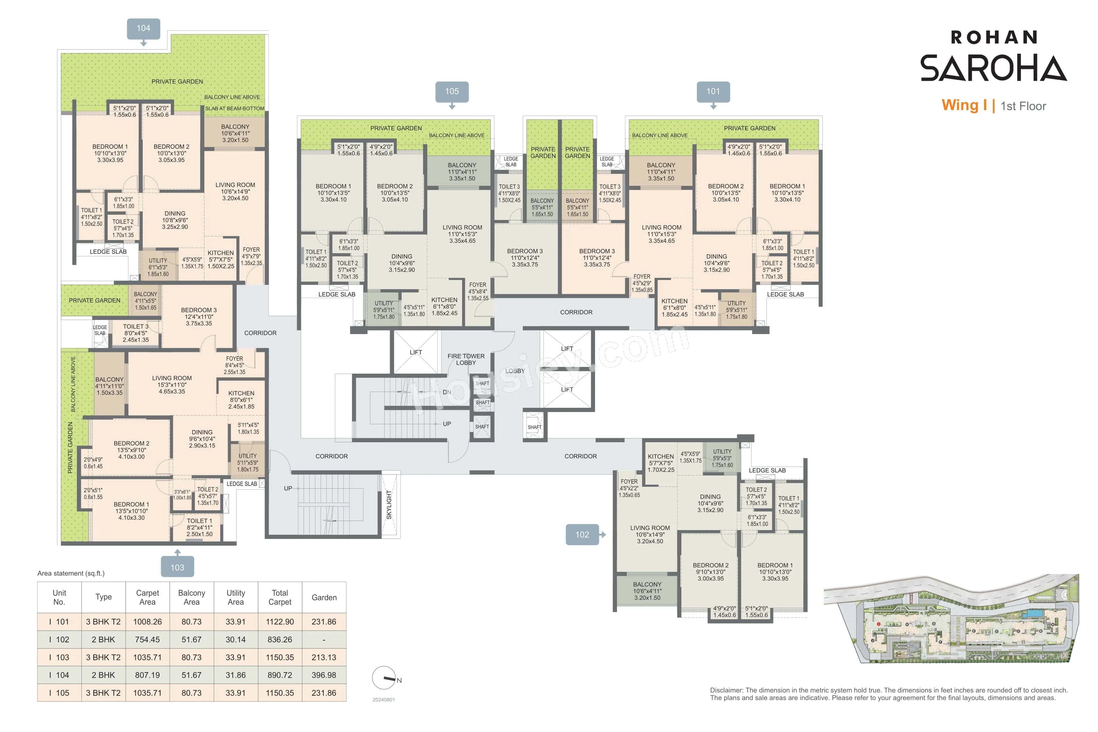
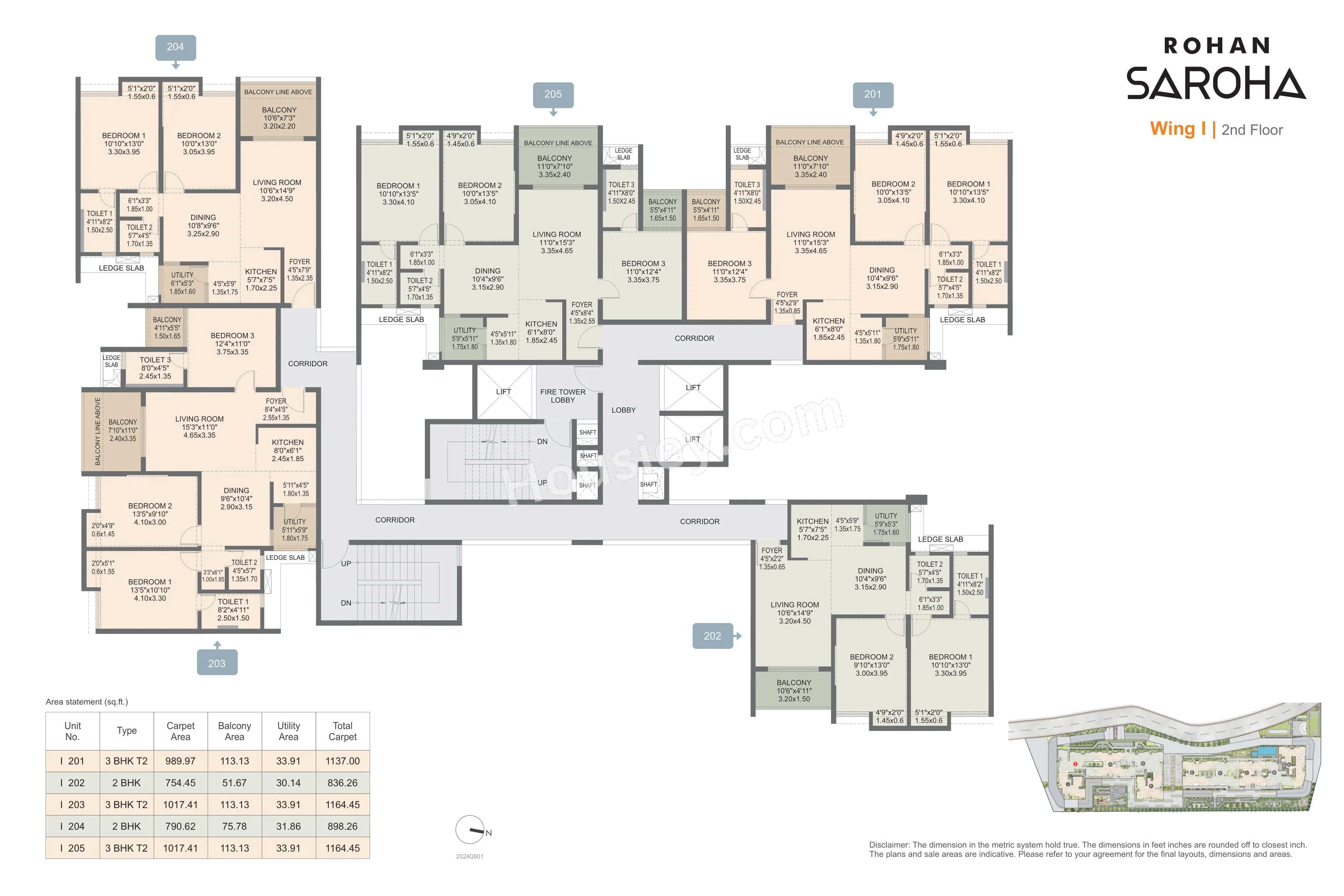
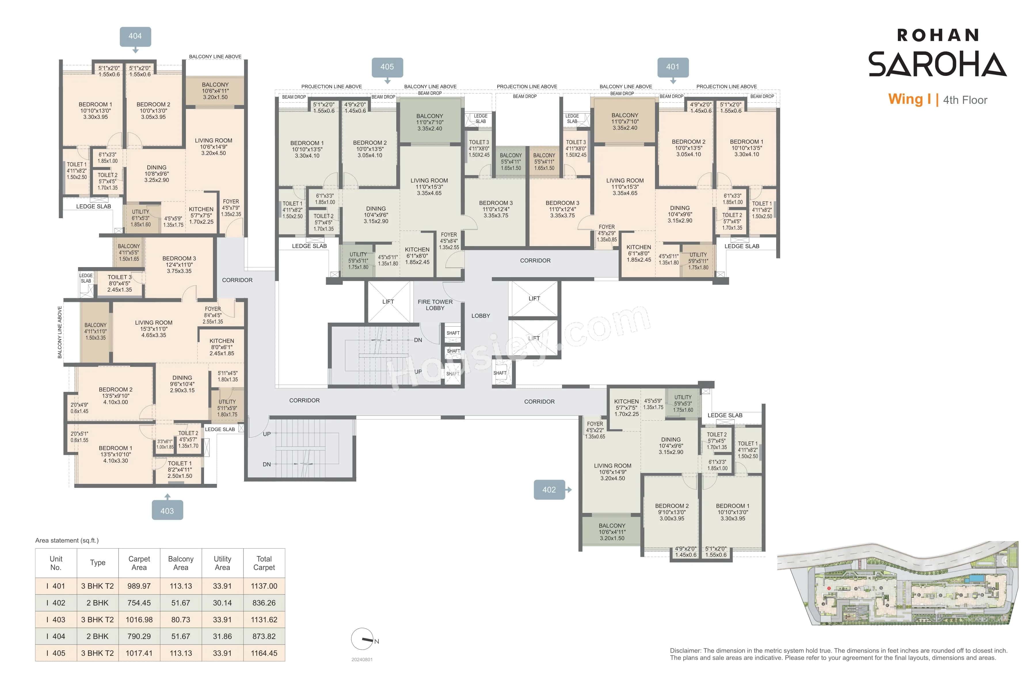
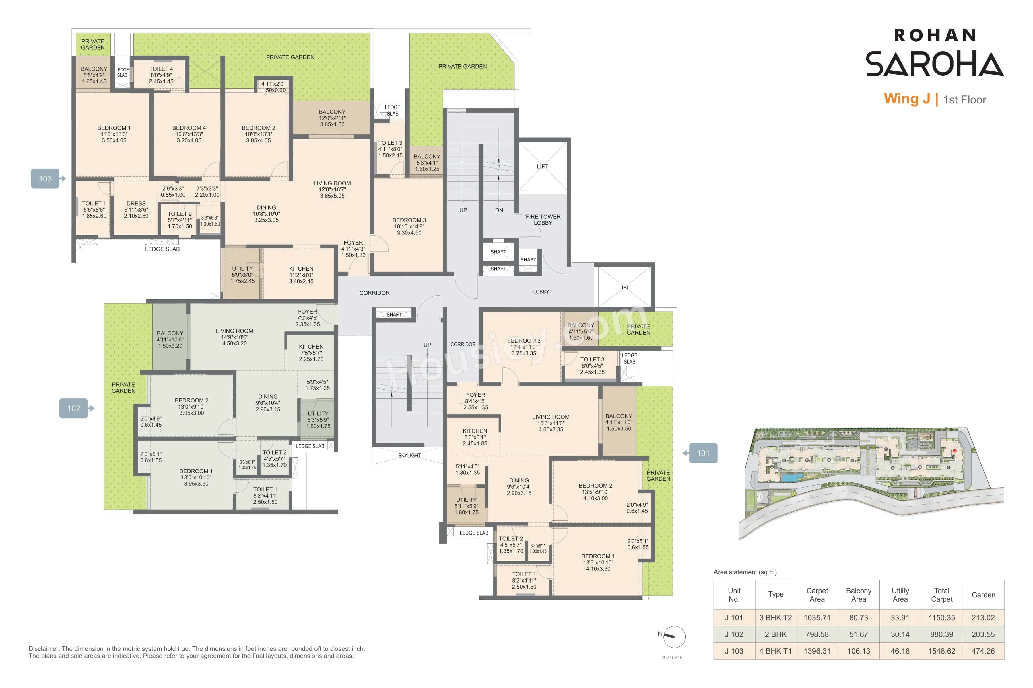
Carpet Area & Floor Plan
Rohan Saroha Phase 1 Bhugaon project has 2BHK, 3BHK, 4BHK premium residences with -
2BHK - (795 - 1288)sqft
3BHK - (1049 - 1382) sqft
4BHK - (1536 - 2023) sqft
Rohan Saroha Phase 1 floor plan
Tower floor plan will have 3 flats 4 lifts & 2 staircases on each floor
Maintenance -
Rohan Saroha Phase 1 Pune Project maintenance varies with the configuration and the carpet area which are as follows-
2BHK - Rs (3300 - 3500) per month
3BHK - Rs (4300 - 5400) per month
4BHK - Rs 6144 per month
Saroha Phase 1 Bhugaon Prices & its details can be found in the price section & Rohan Saroha Phase 1 Bhugaon brochure can be downloaded from the link mentioned below. Project has been praised by the home buyers & Rohan Saroha Phase 1 Bhugaon review is 4 out of 5 from over all the clients who have visited the site.
Near Mulshi Road, Mulshi, Bhugaon, Pune


Pros
Cons
Digital Lock
Vitrified Tiles
Granite Kitchen Platform
Stainless Steel Sink
CCTV Camera
Swimming Pool
Club House
Kids Play Area
Senior Citizen Area
Kids Pool
Tennis Court
Co Working Spaces
Cricket Pitch
Open Gym
Basketball Court
Amphitheater
Meditation Zone
Banquet Hall
Seating Area
Aroma Garden
+6 More





















| Carpet Area | All Inc. Price (Inc. of Taxes & Charges) | Min Downpayment (Inc. Taxes) | Parking | Unit Plan |
|---|---|---|---|---|
836 sqftSold Out | ![]() | - | - | ![]() |
864 sqftSold Out | ![]() | - | - | ![]() |
1288 sqft | 1.30 Cr All In | 19.00 Lacs | 1 | ![]() |
795 sqft | 83.00 Lacs All In | 12.00 Lacs | 1 | ![]() |


Is there any litigation against this proposed project:
Yes| Court Name | City | Case Type | Petition | Case Number | Year | Case Status |
|---|---|---|---|---|---|---|
| Civil Judge Senior Division Pune | Pune | Civil | Suit | Suit 707 | 2022 | Pending |
Commencement Certificate Rohan Saroha Phase 1
Legal Title Report Rohan Saroha Phase 1
Layout Plan Rohan Saroha Phase 1
Note: You can download more detailed documents by following this link
Rohan Builders

1 CityLocations
Pune

480 - 500 sqft
Paranjape Schemes
Developer
500 - 1000 sqft
Paranjape Schemes
Developer



1002 - 2784 sqft
Paranjape Schemes
Developer


1500 - 7000 sqft
Paranjape Schemes
Developer



774 - 1224 sqft
Nirmitee Unicons Infra
Developer
895 - 1382 sqft
Paranjape Schemes
Developer

765 - 1001 sqft
Kolte Patil Developers
Developer
Housiey Legal: Free Real Estate Legal Consultation
Get Expert Advice on RERA, Builder Refunds, Area Mismatch, Stuck Projects & More - at No Cost!