Last updated: Jan 14, 2026








Land Parcel
Towers
Floors
Config
Carpet Area
RERA NO.
Possession Status
Target Possession
RERA Possession
Litigation
H Rishabraj Borivali West Project Overview
Rishabraj Saffron Peace Project will be constructed on 0.23 Acres of land parcel, 1 tower with G+C+9 floors having 2 BHK, 3 BHK premium residences.
Rishabraj Saffron Peace Location
Project is located Near New Link Road, Borivali West, Mumbai with -
DMart - 1.6km
Borivali West Station - 2.3km
Shimpoli Metro Station - 3.6km
Rishabraj Saffron Peace Borivali West Project Amenities
First is Internal amenities -
Vitrified Tiles, Granite Platform, SS sink, Branded Fittings, CCTV & many more
H Rishabraj Group Borivali West External Amenities
Project has 10+ amenities with likes of -
Gymnasium
Walk Track
Kids Play Area
Senior Citizen Area
Yoga & Meditation Zone & many more
H Rishabraj Group Saffron Peace Borivali West Parking -
Project has one type of car parking facility -
1) Stack
Rishabraj Saffron Peace Possession -
Rera Possession - December 2027
Target Possession - December 2025
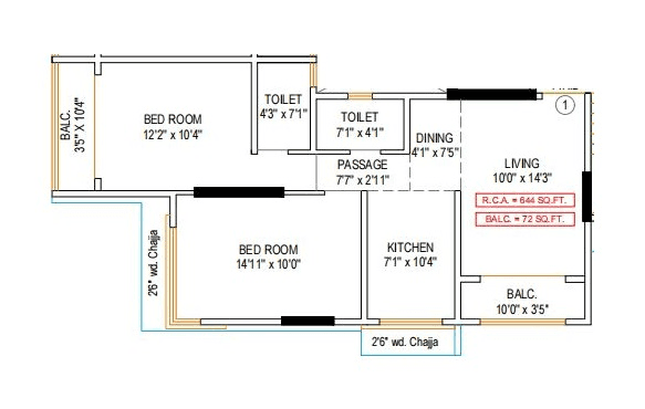
Carpet Area & Floor Plan
Rishabraj Saffron Peace Mumbai project has 2BHK, 3BHK premium residences with -
2BHK - (618- 745) sqft
3BHK - (824 - 1121) sqft
Rishabraj Saffron Peace floor plan
Rishabraj Saffron Peace floor plan will have 3 flats 2 lifts & 1 staircase on each floor
Maintenance -
Rishabraj Saffron Peace Mumbai Project maintenance varies with the configuration and the carpet area which are as follows-
2BHK - Rs (3700 - 4800) per month
3BHK - Rs (4900 - 6700) per month
Saffron Peace Borivali West sample flat is ready to view at the site.
Saffron Peace Prices & its details can be found in the price section & Rishabraj Saffron Peace Borivali West brochure can be downloaded from the link mentioned below. Project has been praised by the home buyers & H Rishabraj Group Borivali West review is 4 out of 5 from over all the clients who have visited the site
Nr New Link Rd, I C Colony, Borivali West, Mumbai

Pros
Cons
Vitrified Tiles
Granite Kitchen Platform
Stainless Steel Sink
Branded Fittings
CCTV Camera
Fire Fighting
Kids Play Area
Garden
Senior Citizen Area
Yoga Zone
Meditation Zone
Seating Area
Gymnasium
Terrace Garden
Walking Track


| Carpet Area | All Inc. Price (Inc. of Taxes & Charges) | Min Downpayment (Inc. Taxes) | Parking | Unit Plan |
|---|---|---|---|---|
618 sqftSold Out | ![]() | - | - | ![]() |
621 sqft | 1.94 Cr All In | 29.00 Lacs | 1 | ![]() |
703 sqft | 2.18 Cr All In | 33.00 Lacs | 1 | ![]() |
699 sqft | 2.17 Cr All In | 33.00 Lacs | 1 | ![]() |
716 sqft | 2.22 Cr All In | 33.00 Lacs | 1 | ![]() |
745 sqft | 2.30 Cr All In | 35.00 Lacs | 1 | ![]() |


Is there any litigation against this proposed project:
Yes| Court Name | City | Case Type | Petition | Case Number | Year | Case Status |
|---|---|---|---|---|---|---|
| High Court of Bombay | Civil | Writ Petition | 7808 | 2021 |
Rishabraj Saffron Peace Commencement Certificate
Rishabraj Saffron Peace Legal Title Report
Rishabraj Saffron Peace Layout Plan
Note: You can download more detailed documents by following this link



--1723547672116-img.webp&w=1280&q=75)






417 - 931 sqft
Shivoham Group
Developer
606 - 880 sqft
Shraddha Prime Projects
Developer









Housiey Legal: Free Real Estate Legal Consultation
Get Expert Advice on RERA, Builder Refunds, Area Mismatch, Stuck Projects & More - at No Cost!