Land Parcel
Towers
Floors
Config
Carpet Area
RERA NO.
Possession Status
Target Possession
RERA Possession
Litigation
Metricon Vashi Project Overview
Metricon The Gateway will be constructed on 2 acres of land parcel, 1 towers with G+P6+24 floors having 3BHK, 4BHK premium residences.
Metricon The Gateway location
Project is located Near Sane Guruji Marg, Sector 6, Vashi, Mumbai with -
Inorbit Mall Vashi - 2km
Vashi Railway Station - 2.5km
Dmart - 4.3km
Metricon The Gateway Vashi Project Amenities
First is Internal amenities -
Vitrified Tile, Granite Kitchen, stainless steel sink, Brand Fitting & many more
Metricon Realty Vashi External Amenities
Project has 20+ luxurious amenities with likes of -
Swimming Pool
Gymnasium
Kids Play Area & Many More
Metricon Realty Solaries Vashi Parking -
Project has one type of car parking facility i.a
1) Podium
Metricon The Gateway Possession -
Rera Possession - March 2029
Target Possession - December 2027
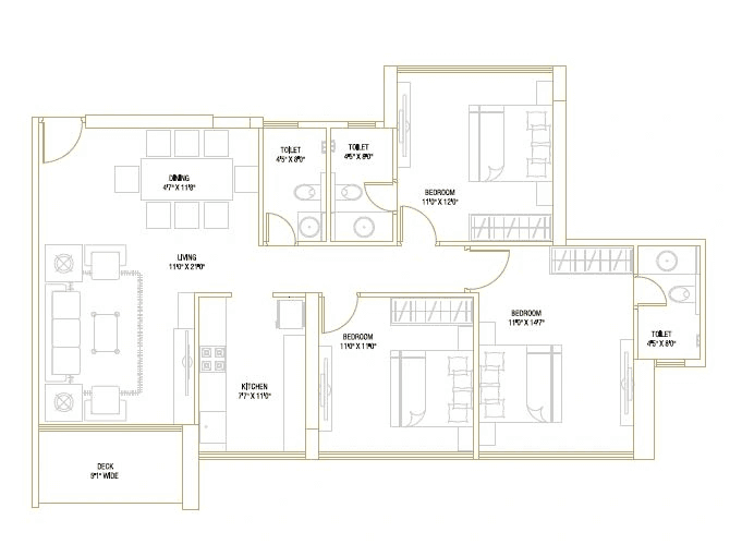
Carpet Area & Floor Plan
The Gateway project has 3BHK, 4BHK Duplex premium residences with -
3BHK - (888 to 1209) sqft
4BHK Duplex - 1323 sqft
Metricon The Gateway floor plan
Tower floor plan will have 3 flats 3 lifts & 2 staircase on each floor
The Gateway Vashi project sample flat is ready to view at the site.
The Gateway project sample flat is ready to view at the site The Gateway Prices & its details can be found in the price section & Metricon The Gateway brochure can be downloaded from the link mentioned below. Project has been praised by the home buyers & Metricon Realty Vashi review is 4 out of 5 from over all the clients who have visited the site.
Near Sane Guruji Marg, Vashi, Mumbai

Pros
Cons
Vitrified Tiles
Granite Kitchen Platform
Branded Fittings
Swimming Pool
Club House
Kids Play Area
Jogging Track
Garden
Multi Purpose Court
Senior Citizen Area
Kids Pool
Outdoor Gym
Flower Garden
Lap Pool
Multi Purpose Lawn
Library
Yoga Zone
Meditation Zone
+6 More
| Carpet Area | All Inc. Price (Inc. of Taxes & Charges) | Min Downpayment (Inc. Taxes) | Parking | Unit Plan |
|---|---|---|---|---|
888 sqft | 3.92 Cr All In | 59.00 Lacs | 10 lacs | ![]() |
1039 sqft | 4.53 Cr All In | 68.00 Lacs | 10 lacs | ![]() |
1209 sqft | 5.25 Cr All In | 79.00 Lacs | 10 lacs | ![]() |

Is there any litigation against this proposed project:
NoMetricon The Gateway Proforma Sale Agreement
Metricon The Gateway Proforma Allotment Letter
Metricon The Gateway Layout Plan
Note: You can download more detailed documents by following this link
Metricon Realty

2 CitiesLocations
Mumbai City, Mumbai suburban





840 - 840 sqft
Kolte Patil Developers
Developer

Housiey Legal: Free Real Estate Legal Consultation
Get Expert Advice on RERA, Builder Refunds, Area Mismatch, Stuck Projects & More - at No Cost!