

Land Parcel
Towers
Floors
Config
Carpet Area
RERA NO.
Possession Status
Target Possession
RERA Possession
Litigation
Mayra Kolwadi Project Overview
Mayra Mk Estrella Project will be constructed on 1 acre of land parcel, 2 Towers with G+8 floors having 1BHK & 2BHK premium residences .
Mayra Mk Estrella location
Project is located Near Theur Kesnand Rd, Kolwadi, Pune with -
Haveli rd- 350m
Theur - 3.3km
Kesnand - 4.6km
Mayra Mk Estrella Kolwadi Project Amenities
First is Internal amenities -
Earthquake Resistant Structure, Dado Tiles, Branded CP Fitting, SS Sink, Aluminium Sliding Window With Mosquito Mesh, Solar Lamp, Solar Water Heater, Power Backup In Common Area, etc
Mayra Properties Kolwadi External Amenities
Project has 10+ amenities with likes of -
Club house
Jogging track
Children play area
Outdoor yoga
senior citizen sitting and many more
Mayra Mk Estrella Kolwadi Parking -
Project has one types of car parking facility -
1) Ground
Mayra Mk Estrella Possession -
Rera Possession - February 2027
Target Possession - December 2026
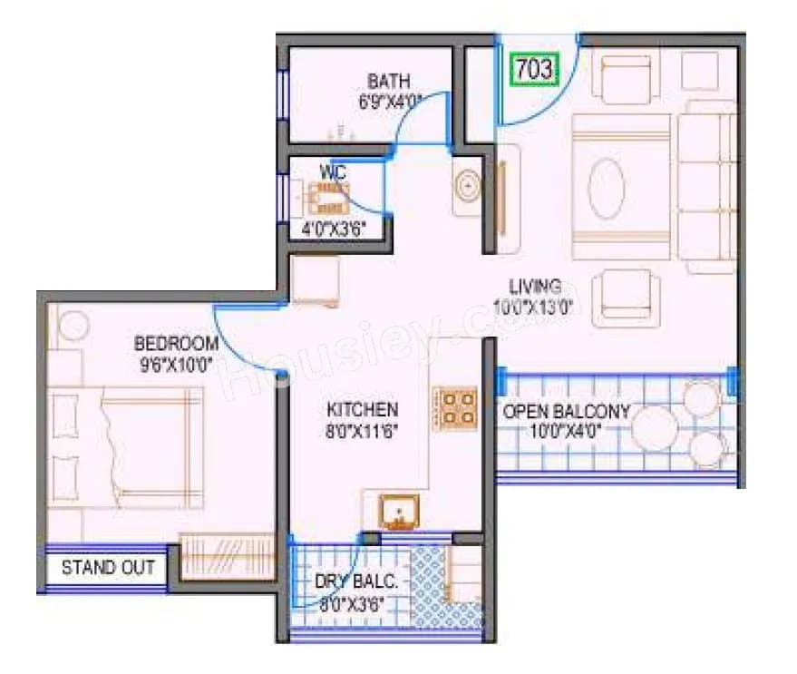
Carpet Area & Floor Plan
Mayra Mk Estrella project has 1BHK & 2BHK premium residences with -
1BHK - (468 - 480) sqft
2BHK - (677 - 755) sqft
Mayra Mk Estrella Floor plan
Floor plan will have 7 flats, 2 Lifts & 2 Staircase on each towers.
Maintenance -
Mayra Mk Estrella Pune Project maintenance varies with the configuration and the carpet area which are as follows-
1BHK - Rs (1400- 1500) Per Month
2BHK - Rs (2100 - 2300) Per Month
Mayra Mk Estrella Prices & its details can be found in the price section & Mayra Mk Estrella Kolwadi brochure can be downloaded from the link mentioned below. Project has been praised by the home buyers & Mayra Properties Kolwadi review is 4 out of 5 from over all the clients who have visited the site
Near Theur Kesnand Rd, Kolwadi, Pune
Pros
Cons
Vitrified Tiles
Granite Kitchen Platform
Stainless Steel Sink
Branded Fittings
D.G Backup
Water Purifier
3 Tier Security
+3 More
Club House
Kids Play Area
Jogging Track
Senior Citizen Area
Yoga Zone



| Carpet Area | All Inc. Price (Inc. of Taxes & Charges) | Min Downpayment (Inc. Taxes) | Parking | Unit Plan |
|---|---|---|---|---|
468 sqftSold Out | ![]() | - | - | ![]() |
488 sqftSold Out | ![]() | - | - | ![]() |
381 sqft | 21.39 Lacs All In | 3.00 Lacs | 1 | ![]() |
480 sqft | 26.87 Lacs All In | 4.00 Lacs | 1 | ![]() |


Is there any litigation against this proposed project:
NoMayra Mk Estrella Commencement Certificate
Mayra Mk Estrella Legal Title Report
Mayra Mk Estrella Building Plan
Note: You can download more detailed documents by following this link

Housiey Legal: Free Real Estate Legal Consultation
Get Expert Advice on RERA, Builder Refunds, Area Mismatch, Stuck Projects & More - at No Cost!