Last updated: May 13, 2025





Land Parcel
Towers
Floors
Config
Carpet Area
RERA NO.
Possession Status
Target Possession
RERA Possession
Litigation
Mangeshi Kalyan West Project Overview
Mangeshi Sohan will be constructed on 1 acre of land parcel, 1 tower with G+19 floors having 1BHK, 2BHK premium residences.
Mangeshi Sohan location
Project is located Near Umbarde Road, Khadakpada, Kalyan West, Mumbai with -
St. Xavier's International School - 550m
Croma - 1.4km
DMart - 2km
Mangeshi Sohan Kalyan West Project Amenities
First is Internal amenities -
Vitrified tiles, Granite Kitchen, SS Sink, CCTV & many more
Mangeshi Group Kalyan West Amenities
Project has 20+ luxurious amenities with likes of -
Kids Play Area
Gymnasium
Garden
Acupressure Pathway
Stargazing Deck & Many More
Mangeshi Group Sohan Kalyan West Parking -
Project has one type of car parking facility -
1) Tower Parking
Mangeshi Sohan Possession -
Rera Possession - March 2026
Target Possession - September 2024
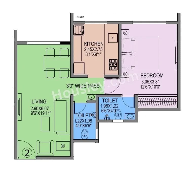
Carpet Area & Floor Plan
Sohan project has 1BHK, 2BHK premium residences with -
1BHK - (401 to 490)sqft
2BHK - (547 to 567)sqft
Mangeshi Sohan floor plan
Tower floor plan will have 12 flats 3 lifts & 2 staircases on each floor
Maintenance -
Mangeshi Sohan Mumbai Project maintenance varies with the configuration and the carpet area which are as follows-
1BHK - Rs (1200 - 1400) per month
2BHK - Rs (1600 - 1700) per month
Sohan project sample flat is ready to view at the site.
Sohan Prices & its details can be found in the price section & Mangeshi Sohan Kalyan West brochure can be downloaded from the link mentioned below. Project has been praised by the home buyers & Mangeshi Group Kalyan Westreview is 4 out of 5 from over all the clients who have visited the site.
Near Umbarde Road, Khadakpada, Kalyan West, Mumbai

Pros
Cons
Vitrified Tiles
Granite Kitchen Platform
Stainless Steel Sink
CCTV Camera
Kids Play Area
Senior Citizen Area
Seating Area
Acupressure Pathway
Star Gazing
Landscaped Garden
Gymnasium








| Carpet Area | All Inc. Price (Inc. of Taxes & Charges) | Min Downpayment (Inc. Taxes) | Parking | Unit Plan |
|---|---|---|---|---|
401 sqftSold Out | ![]() | - | - | ![]() |
410 sqftSold Out | ![]() | - | - | ![]() |
490 sqftSold Out | ![]() | - | - | ![]() |


Is there any litigation against this proposed project:
NoMangeshi Group

2 CitiesLocations
Mumbai City, Mumbai suburban


728 - 1048 sqft
Tharwani Realty
Developer
397 - 654 sqft
Mahindra Lifespace
Developer







361 - 568 sqft
Riddhi Siddhi Enterprises
Developer
807 - 1055 sqft
Tharwani Infrastructures
Developer

375 - 542 sqft
Arihant Superstructures
Developer




400 - 600 sqft
Sunteck Realty
Developer

Housiey Legal: Free Real Estate Legal Consultation
Get Expert Advice on RERA, Builder Refunds, Area Mismatch, Stuck Projects & More - at No Cost!