Last updated: Mar 13, 2026
















Land Parcel
Towers
Floors
Config
Carpet Area
RERA NO.
Possession Status
Target Possession
RERA Possession
Litigation
Maithili Kopar Khairane Project Overview
Maithili The Trellis Project will be constructed on 2.1 acres of land parcel, 2 towers with B+G+4P+21 floors having 2 BHK, 3 BHK premium residences .
Maithili The Trellis location
Project is located On Vashi Kopar Khairane Road Sector-10, Kopar Khairane, Navi Mumbai-
D-Mart - 350m
Kopar Khairane Stn - 2.0km
Thane - Belapur Road - 2.7km
Maithili The Trellis Kopar Khairane Project Amenities
First is Internal amenities -
Vitrified Flooring, Granite Platform, SS Sink & many more
Maithili Group Kopar Khairane External Amenities
Project has 35+ amenities with likes of -
Mulripurpose Hall
Fully Equipped Gym
Swimming pool
Multipurpose Play Court
Kids Play Area
Yoga Zone & Many More
Maithili Group The Trellis Kopar Khairane Parking -
Project has one type of car parking facility -
1) Basement
2) Ground
3) Podium
Maithili The Trellis Possession -
Rera Possession - March 2029
Target Possession - December 2026
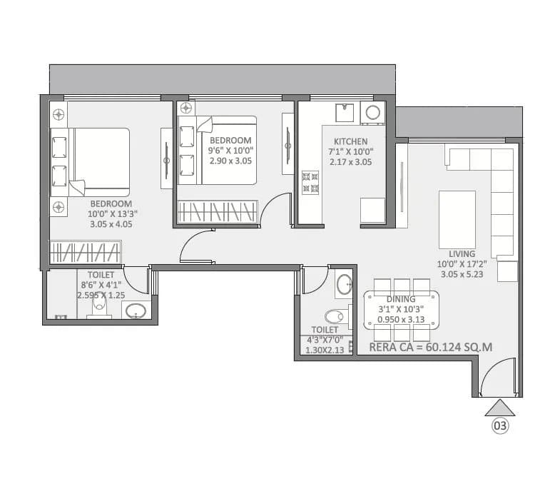
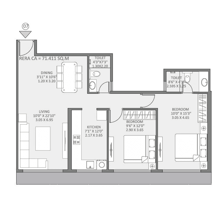
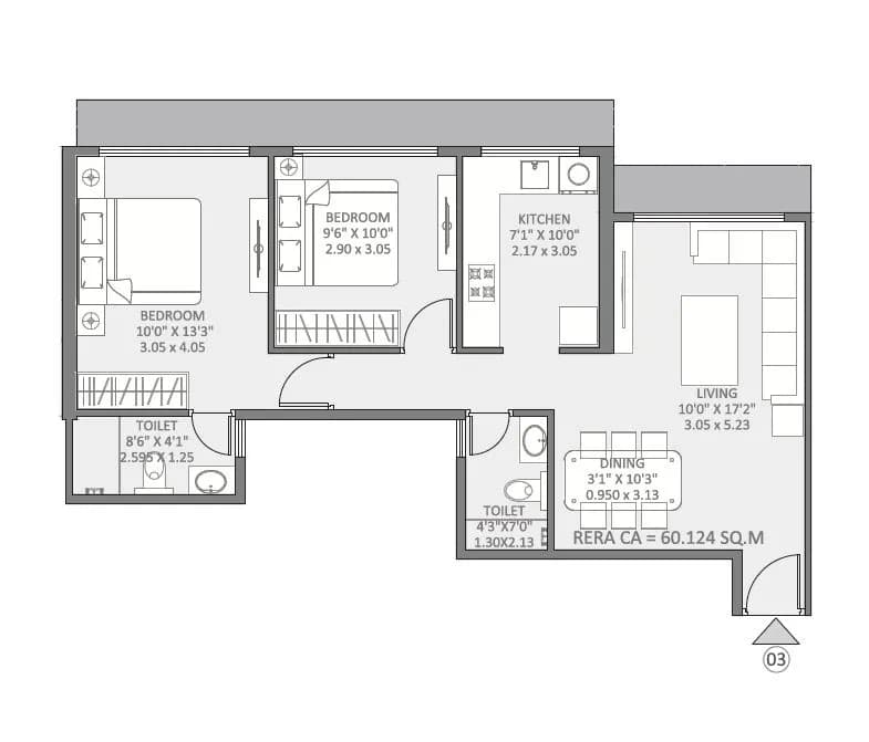
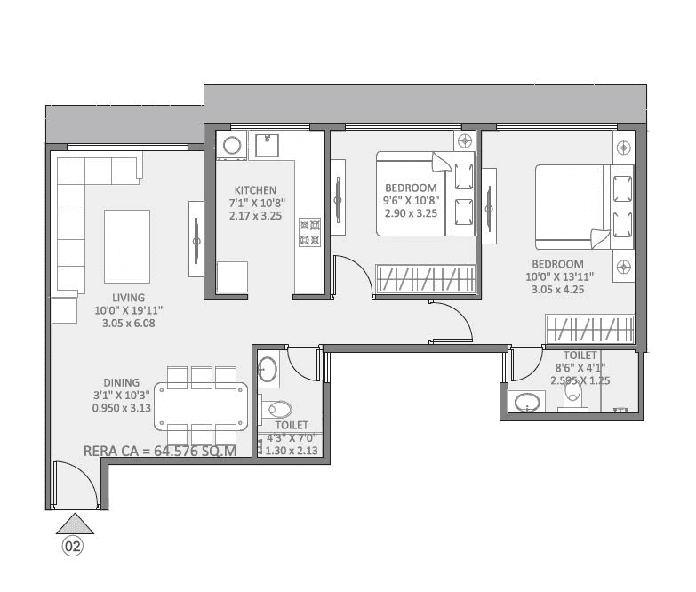
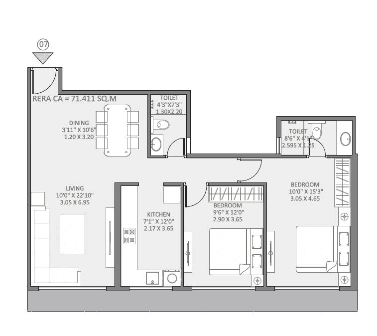
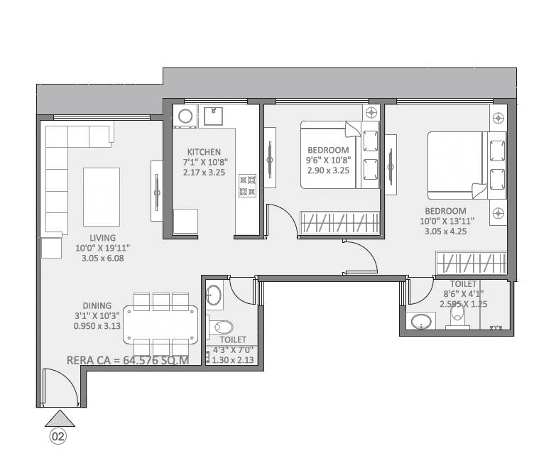
Carpet Area & Floor Plan
The Trellis project has 2BHK, 3BHK premium residences with -
2BHK - (647 - 695) sqft
3BHK - (1077 - 1150) sqft
Maithili The Trellis floor plan
Tower floor plan will have 10 flats 5 lifts & 2 staircases on each floor
Maintenance -
Maithili The Trellis Navi Mumbai Project maintenance varies with the configuration and the carpet area which are as follows-
2BHK - Rs (4500 - 4800) per month
3BHK - Rs (7500 - 8000) per month
The Trellis Kopar Khairane project sample flat is ready to view at the site.
The Trellis Prices & its details can be found in the price section & Maithili The Trellis Kopar Khairane brochure can be downloaded from the link mentioned below. Project has been praised by the home buyers & Maithili Group Kopar Khairane review is 4 out of 5 from over all the clients who have visited the site.
On Vashi Kopar Khairane Rd Sector-10, Kopar Khairane, Navi Mumbai

Pros
Cons
Vitrified Tiles
Granite Kitchen Platform
Stainless Steel Sink
Branded Fittings
CCTV Camera
Swimming Pool
Kids Play Area
Jogging Track
Garden
Multi Purpose Court
Senior Citizen Area
Kids Pool
Tennis Court
Box Cricket
Basketball Court
Yoga Zone
Creche Play Area
Indoor games
party lawn
Badminton Court
+2 More



| Carpet Area | All Inc. Price (Inc. of Taxes & Charges) | Min Downpayment (Inc. Taxes) | Parking | Unit Plan |
|---|---|---|---|---|
647 sqftSold Out | ![]() | - | - | ![]() |
695 sqft | 2.00 Cr All In | 30.00 Lacs | 1 | ![]() |
769 sqft | 2.25 Cr All In | 34.00 Lacs | 1 | ![]() |


Is there any litigation against this proposed project:
Yes| Court Name | City | Case Type | Petition | Case Number | Year | Case Status |
|---|---|---|---|---|---|---|
| Bombay High Court | Civil | Other | 4595 | 2024 |
Maithili The Trellis Proforma Sale Agreement
Maithili The Trellis Proforma Allotment Letter
Maithili The Trellis Layout Plan
Note: You can download more detailed documents by following this link
Maithili Group

2 CitiesLocations
Mumbai City, Mumbai suburban

762 - 1032 sqft
Shakti Pyramid Ventures
Developer
Housiey Legal: Free Real Estate Legal Consultation
Get Expert Advice on RERA, Builder Refunds, Area Mismatch, Stuck Projects & More - at No Cost!