Last updated: Jan 18, 2026










Land Parcel
Towers
Floors
Config
Carpet Area
RERA NO.
Possession Status
Target Possession
RERA Possession
Litigation
Mahavir Borivali West Project Overview
Mahavir Suryalok Project will be constructed on 0.75 Acre of land parcel, 1 tower with G+4P+18 floors having 1 BHK, 2 BHK, Jodi premium residences.
Mahavir Suryalok Location
Project is located Near New Link Rd, Yogi Nagar, Borivali West, Mumbai with -
Borivali West Metro Stn - 300m
Borivali Station - 1.6km
Sky City Mall - 3.9km
Mahavir Suryalok Borivali West Project Amenities
First is Internal amenities -
Vitrified Tiles, Granite Platform, SS sink, CP fitting & many more
Mahavir Land Developers Borivali West External Amenities
Project has 10+ amenities with likes of -
Gymnasium
Kids Play Area
Walking Track
Yoga Zone & many more
Mahavir Land Developers Suryalok Borivali West Parking -
Project has one type of car parking facility -
1) Podium
Mahavir Suryalok Possession -
Rera Possession - December 2029
Target Possession - January 2028
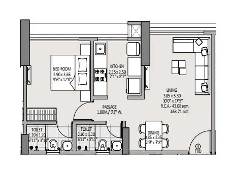
Carpet Area & Floor Plan
Suryalok Mumbai project has 1BHK, 2BHK, Jodi premium residences with -
1BHK - 463 sqft
2BHK - 612 sqft
Jodi - 1075 sqft
Mahavir Suryalok floor plan
Suryalok floor plan will have 4 flats 3 lifts & 1 staircase on each floor
Maintenance -
Mahavir Suryalok Mumbai Project maintenance varies with the configuration and the carpet area which are as follows-
1BHK - Rs 2800 per month
2BHK - Rs 3700 per month
Jodi - Rs 6400 per month
Suryalok Borivali West Prices & its details can be found in the price section & Mahavir Suryalok Borivali West brochure can be downloaded from the link mentioned below. Project has been praised by the home buyers & Mahavir Land Developers Borivali West review is 4 out of 5 from over all the clients who have visited the site.
Near New Link Rd, Yogi Nagar, Borivali West, Mumbai
Pros
Cons
Vitrified Tiles
Granite Kitchen Platform
Stainless Steel Sink
Kids Play Area
Garden
Senior Citizen Area
Yoga Zone
Seating Area
Gymnasium
Walking Track



| Carpet Area | All Inc. Price (Inc. of Taxes & Charges) | Min Downpayment (Inc. Taxes) | Parking | Unit Plan |
|---|---|---|---|---|
463 sqft | 1.45 Cr All In | 22.00 Lacs | 1 | ![]() |

Is there any litigation against this proposed project:
NoMahavir Suryalok Commencement Certificate
Mahavir Suryalok Layout Plan
Mahavir Suryalok Legal Title Report
Note: You can download more detailed documents by following this link
Mahavir Land Developers

2 CitiesLocations
Mumbai City, Mumbai suburban



--1723547672116-img.webp&w=1280&q=75)






417 - 931 sqft
Shivoham Group
Developer
606 - 880 sqft
Shraddha Prime Projects
Developer









Housiey Legal: Free Real Estate Legal Consultation
Get Expert Advice on RERA, Builder Refunds, Area Mismatch, Stuck Projects & More - at No Cost!