








Land Parcel
Towers
Floors
Config
Carpet Area
RERA NO.
Possession Status
Target Possession
RERA Possession
Litigation
L&T Seawoods Project Overview
L&T West Square will be constructed on 4.5 Acres of land parcel, 5 Towers with G+3B+18 floors having 2 BHK, 3 BHK premium residences.
L&T West Square location
Project is located Near Seawoods Mall, Seawood Navi Mumbai -
Seawoods Station - 100m
Nerul Lake - 1.1km
Mumbai Satara Hwy - 1.6km
L&T West Square West Project Amenities
First is Internal amenities -
Vitrified tiles, Granite Kitchen, Stainless steel sink & many more
L&T Realty West Square West Amenities
Project has 40+ luxurious amenities with likes of -
Multipurpose Hall
Gymnasium
Swimming Pool
Seating Area
Jogging track & Many More
L&T Realty West Square Seawoods Parking -
Project has one type of car parking facility -
1) Basement
L&T West Square Possession -
Rera Possession - December 2029
Target Possession - December 2028
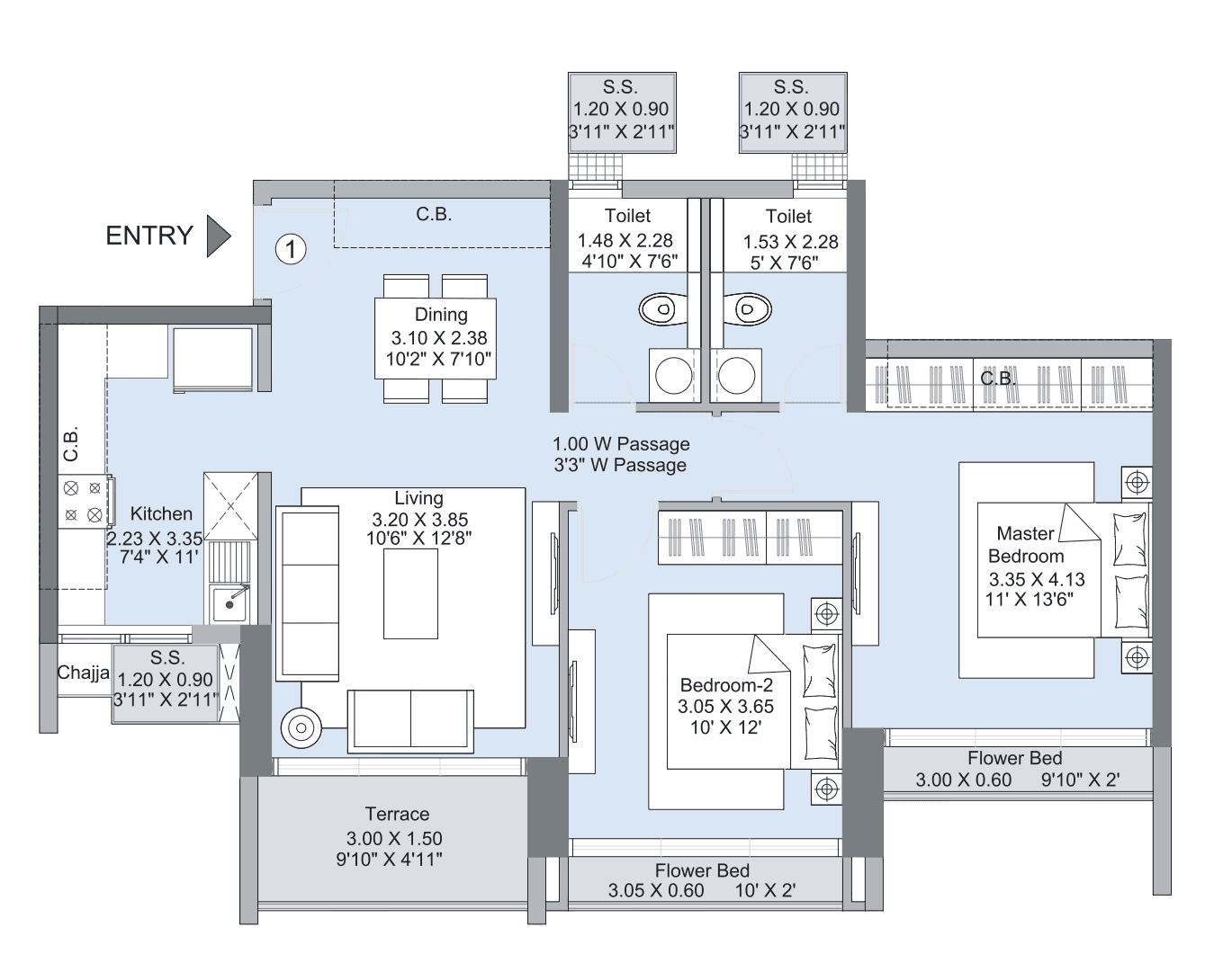
Carpet Area & Floor Plan
West Square project has 2BHK, 3BHK premium residences with -
2BHK - (700 - 830) sqft
3BHK - 1050 sqft
L&T West Square floor plan
Tower floor plans will have 6 flats & 3 lifts 2 staircases on each floor
Maintenance -
L&T West Square Mumbai Project maintenance varies with the configuration and the carpet area which are as follows-
2BHK - Rs (7000 - 8300) per month
3BHK - Rs 10500 per month
West Square Prices & its details can be found in the price section & L&T West Square Seawoods brochure can be downloaded from the link mentioned below. Project has been praised by the home buyers & L&T Realty Seawoods review is 4 out of 5 from over all the clients who have visited the site.
Near Seawoods Mall, Seawood Navi Mumbai

Pros
Cons
Video Door Phone
Vitrified Tiles
Granite Kitchen Platform
Stainless Steel Sink
Swimming Pool
Kids Play Area
Jogging Track
Squash Court
Library
Yoga Zone
Meditation Zone
Seating Area
Business Center
Jacuzzi
Indoor games
party lawn
Badminton Court
Landscaped Garden
Gymnasium
+2 More





| Carpet Area | All Inc. Price (Inc. of Taxes & Charges) | Min Downpayment (Inc. Taxes) | Parking | Unit Plan |
|---|---|---|---|---|
700 sqft | 2.50 Cr All In | 37.00 Lacs | 1 | ![]() |
830 sqft | 2.95 Cr All In | 44.00 Lacs | 1 | ![]() |

Is there any litigation against this proposed project:
Yes| Court Name | City | Case Type | Petition | Case Number | Year | Case Status |
|---|---|---|---|---|---|---|
| High Court | Mumbai | Civil | Other | 110 | 2021 | Ongoing |
L&T West Square Proforma Allotment Letter
L&T West Square Layout Plan
L&T West Square Legal Title Report
Note: You can download more detailed documents by following this link
L and T Realty

7 CitiesLocations
Hyderabad, Ahmedabad, Bangalore Rural, Bangalore Urban, Mumbai City, Mumbai suburban, Pune


Housiey Legal: Free Real Estate Legal Consultation
Get Expert Advice on RERA, Builder Refunds, Area Mismatch, Stuck Projects & More - at No Cost!