Last updated: Nov 13, 2025


Land Parcel
Towers
Floors
Config
Carpet Area
RERA NO.
Possession Status
Target Possession
RERA Possession
Litigation
Kumar Magarpatta Project Overview
Kumar Magarpatta will be constructed on 2.5 acres of land parcel, 2 towers with G+4P+28 floors having 3BHK & 4BHK premium residences.
Kumar Magarpatta location
Project is located Near Amanora Park Town, Kirtane Baug, Magarpatta, Pune. with -
Seasons Mall - 650m
Mundhwa Chowk- 1.1km
Magarpatta Circle Garden View - 1.3km
Kumar Magarpatta Project Amenities
First is Internal amenities -
Earthquake Resistant Frame, Video Door Phone, Vitrified Flooring, Anti Skid Tiles, Dado Tiles, SS Sink, Platform With Granite Top, Branded CP Fittings, Fire Fighting System, Solar System, Power Backup For Common Area, CCTV Survillence & many more
Kumar World Magarpatta External Amenities
Project has 40+ luxurious amenities with likes of -
Swimming Pool
Gymnasium
Club House
Amphi Theatre
Aqua Deck
Kids Play Area
Multipurpose Hall & many more
Kumar World Magarpatta Parking -
Project has one type of car parking facility -
1) Podium
Kumar Magarpatta Possession -
Rera Possession - December 2029
Target Possession - December 2029
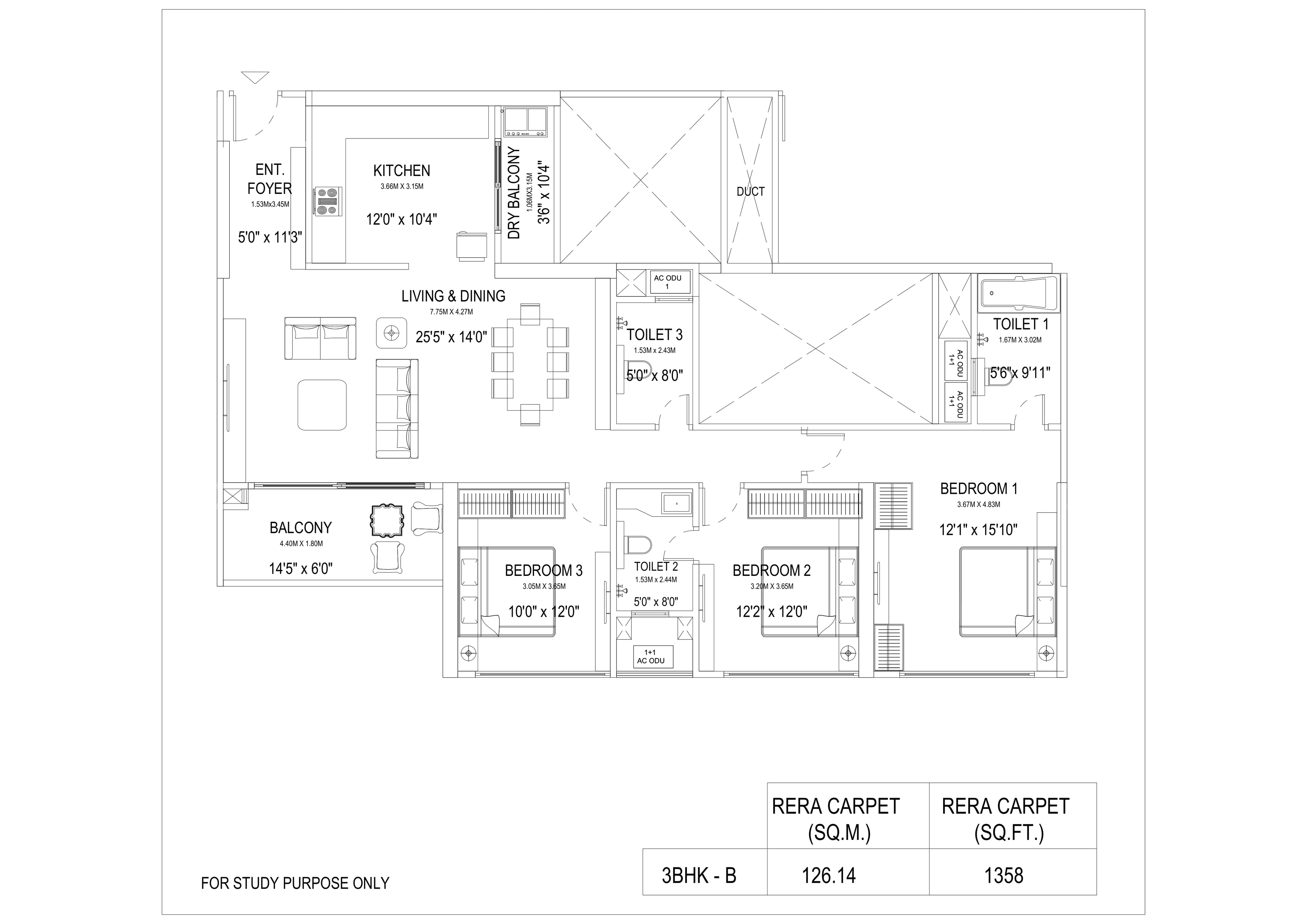
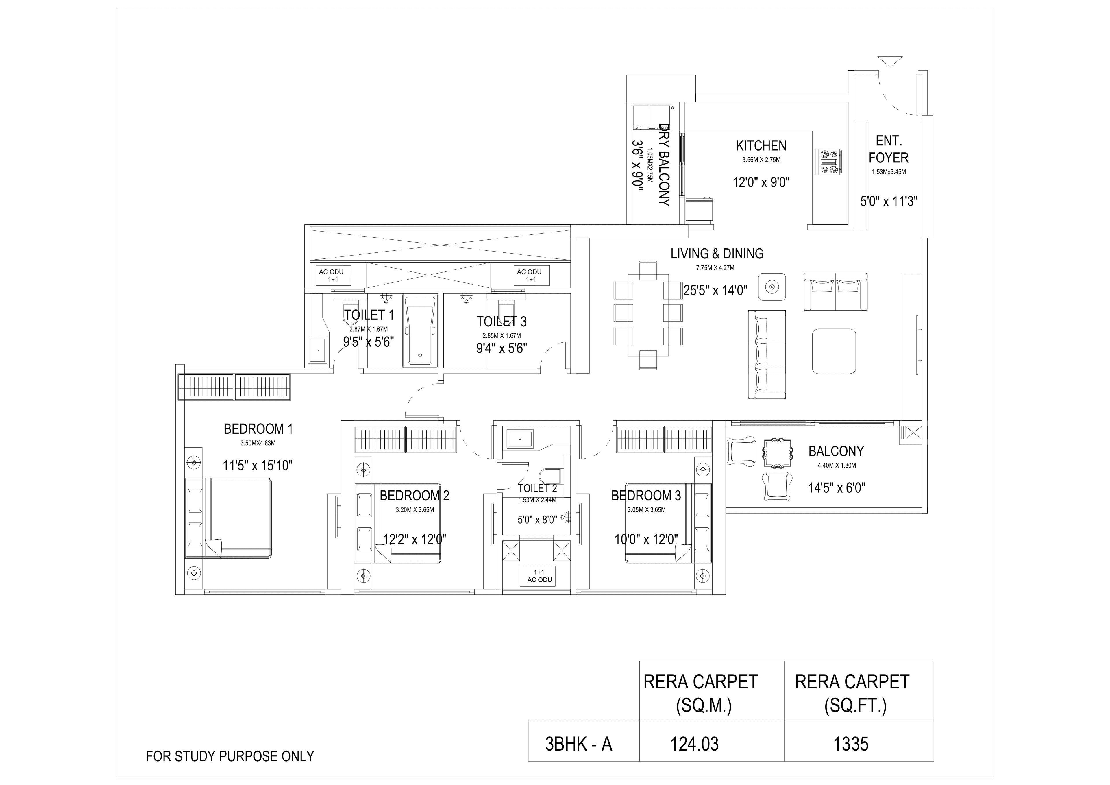
Carpet Area & Floor Plan
Kumar Magarpatta project has 3BHK & 4BHK premium residences with -
3BHK - (1335 to 1358) sqft
4BHK - 1722 sqft
Kumar Magarpatta floor plan
Tower floor plan will have 5 flats 4 lifts & 2 staircases on each floor
Maintenance -
Kumar Magarpatta Pune Project maintenance varies with the configuration and the carpet area which are as follows-
3BHK - Rs (5500 - 7000) per month
4BHK - Rs (9000 - 10000) per month
Kumar Magarpatta Prices & its details can be found in the price section & Kumar Magarpatta brochure can be downloaded from the link mentioned below. Project has been praised by the home buyers & Kumar World Magarpatta review is 4 out of 5 from over all the clients who have visited the site.
Near Amanora Park Town, Kirtane Baug, Magarpatta, Pune.
Pros
Cons
Video Door Phone
Vitrified Tiles
Granite Kitchen Platform
Stainless Steel Sink
Branded Fittings
D.G Backup
Solar Water Heater
+2 More
Swimming Pool
Club House
Kids Play Area
Amphitheater
Banquet Hall
Indoor games
Gymnasium
Multi purpose hall


| Carpet Area | All Inc. Price (Inc. of Taxes & Charges) | Min Downpayment (Inc. Taxes) | Parking | Unit Plan |
|---|---|---|---|---|
1335 sqft | 2.20 Cr All In | 33.00 Lacs | 2 | ![]() |
1358 sqft | 2.30 Cr All In | 34.50 Lacs | 2 | ![]() |

Is there any litigation against this proposed project:
NoKumar World

1 CityLocations
Pune

787 - 787 sqft
Pawar Buildcon
Developer



2900 - 2900 sqft
Marvel Realtors
Developer


Housiey Legal: Free Real Estate Legal Consultation
Get Expert Advice on RERA, Builder Refunds, Area Mismatch, Stuck Projects & More - at No Cost!