Last updated: Apr 10, 2026







Land Parcel
Towers
Floors
Config
Carpet Area
RERA NO.
Possession Status
Target Possession
RERA Possession
Litigation
Haware Borivali East Project Overview
Haware Intelligentia will be constructed on 0.32 acre of land parcel, 1 tower with G+23 floors having 1 BHK, 2 BHK premium residences.
Haware Intelligentia location
Project is located Nr WEH, Tata Power Col, Borivali East, Mumbai with -
Metro Mall - 800m
Borivali Station - 2.4km
DMart - 3.9km
Haware Intelligentia Borivali East Project Amenities
First is Internal amenities -
Vitrified Tiles, Branded Fittings, Kitchen Platform & many more
Haware Group Borivali East External Amenities
Project has 35+ luxurious with likes of -
Swimming Pool
Landscaped Garden
Gymnasium
Jogging Track
Kids Play Area & Many More
Haware Group Intelligentia Borivali East Parking -
Project has one type of car parking facility -
1) Tower Parking
Haware Intelligentia Possession -
Rera Possession - December 2026
Target Possession - June 2026
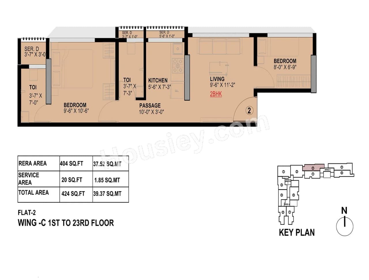
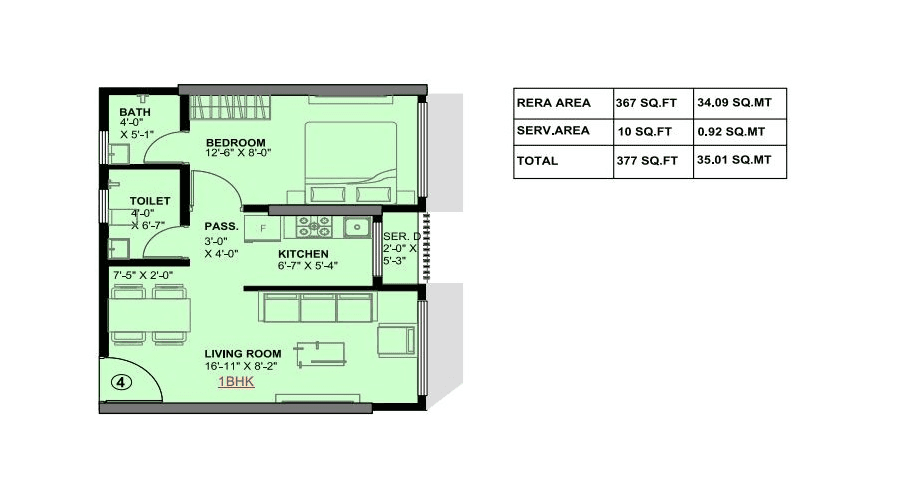
Carpet Area & Floor Plan
Intelligentia Borivali East project has 1BHK, 2BHK premium residences with -
1BHK - (377 to 481) sqft
2BHK - (481 to 530) sqft
Haware Intelligentia floor plan
Tower floor plan will have 4 flats 4 lifts & 2 staircase on each floor
Intelligentia Borivali East project sample flat is ready to view at the site.
Haware Intelligentia Mumbai Prices & its details can be found in the price section & Haware Intelligentia Borivali East brochure can be downloaded from the link mentioned below. Project has been praised by the home buyers & Haware Group Borivali East review is 4 out of 5 from over all the clients who have visited the site.
Nr WEH, Tata Power Col, Borivali East, Mumbai

Pros
Cons
Vitrified Tiles
Granite Kitchen Platform
Branded Fittings
Swimming Pool
Kids Play Area
Jogging Track
Senior Citizen Area
Library
Seating Area
Indoor games
Yoga Deck
Landscaped Garden
Gymnasium


| Carpet Area | All Inc. Price (Inc. of Taxes & Charges) | Min Downpayment (Inc. Taxes) | Parking | Unit Plan |
|---|---|---|---|---|
424 sqftLimited | 1.05 Cr All In | 16.00 Lacs | 10 Lacs | ![]() |
459 sqftSold Out | ![]() | - | - | ![]() |
481 sqftLimited | 1.16 Cr All In | 17.00 Lacs | 10 Lacs | ![]() |
377 sqftSold Out | ![]() | - | - | ![]() |

Is there any litigation against this proposed project:
NoHaware Intelligentia Commencement Certificate
Haware Intelligentia Legal Title Report
Haware Intelligentia Layout Plan
Note: You can download more detailed documents by following this link
Haware Properties

2 CitiesLocations
Mumbai City, Mumbai suburban

634 - 1278 sqft
CCI Projects Pvt Ltd
Developer





914 - 2630 sqft
Goodwill Developers
Developer
713 - 1114 sqft
CCI Projects Pvt Ltd
Developer
772 - 1263 sqft
CCI Projects Pvt Ltd
Developer



450 - 1048 sqft
Dhariwal Developers
Developer

428 - 700 sqft
Shraddha Prime Projects
Developer


428 - 1032 sqft
Samarpan Homes and Developers
Developer
Housiey Legal: Free Real Estate Legal Consultation
Get Expert Advice on RERA, Builder Refunds, Area Mismatch, Stuck Projects & More - at No Cost!