Last updated: May 8, 2025





Land Parcel
Towers
Floors
Config
Carpet Area
RERA NO.
Possession Status
Target Possession
RERA Possession
Litigation
Happy Home Vasai West Project Overview
Happy Home Jasmine will be constructed on 2 acres of land parcel, 1 tower with B+G+4P+14 floors having 2 BHK, 3 BHK premium residences.
Happy Home Jasmine location
Project is located Nr Bhabola Chulna Rd, Vasai West, Mumbai with -
VVCMC Kaulcity Hospital & Dialysis Unit - 450m
DMart - 2km
Vasai Road Railway Station - 3km
Happy Home Jasmine Vasai West Project Amenities
First is Internal amenities -
Vitrified tiles, Granite Kitchen, Earthquake resistane, SS Sink, CCTV & many more
Happy Home Group Vasai West External Amenities
Project has 15+ luxurious amenities with likes of -
Gymnasium
Jogging Track
Kids Play Area
Senior Citizen Corner
Multipurpose Court & Many More
Happy Home Group Jasmine Vasai West Parking -
Project has one type of car parking facility.
1) Podium
Happy Home Jasmine Possession -
Rera Possession - March 2026
Target Possession - March 2026
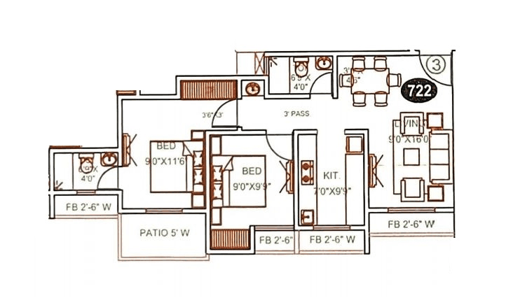
Carpet Area & Floor Plan
Happy Home Jasmine Vasai West project has 2BHK, 3BHK premium residences with -
2BHK - (715 to 735) sqft
3BHK - (859 to 922) sqft
Happy Home Jasmine floor plan
Tower floor plans will have 6 flats 2 lift & 2 staircases on each floor
Maintenance -
Happy Home Jasmine Mumbai Project maintenance varies with the configuration and the carpet area which are as follows-
2BHK - Rs (2400 - 2500) per month
3BHK - Rs (2800 - 3200) per month
Jasmine Vasai West sample flat is ready to view at side
Jasmine Vasai West price & its details can be found in the price section & Happy Home Jasmine Vasai West brochure can be downloaded from the link mentioned below. Project has been praised by the home buyers & Happy Home Group Vasai West review is 4 out of 5 from over all the clients who have visited the site.
Nr Bhabola Chulna Rd, Vasai West, Mumbai

Pros
Cons
Vitrified Tiles
Granite Kitchen Platform
Stainless Steel Sink
Branded Fittings
Kids Play Area
Jogging Track
Multi Purpose Court
Senior Citizen Area
Outdoor Chess
Yoga Zone
Meditation Zone
Banquet Hall
Acupressure Pathway
Star Gazing
party lawn
Gymnasium







| Carpet Area | All Inc. Price (Inc. of Taxes & Charges) | Min Downpayment (Inc. Taxes) | Parking | Unit Plan |
|---|---|---|---|---|
715 sqft | 88.50 Lacs All In | 13.00 Lacs | 5.5 lacs | ![]() |
722 sqft | 89.73 Lacs All In | 13.00 Lacs | 5.5 lacs | ![]() |
735 sqft | 91.00 Lacs All In | 14.00 Lacs | 5.5 lacs | ![]() |

Is there any litigation against this proposed project:
NoHappy Home Group

2 CitiesLocations
Mumbai City, Mumbai suburban






535 - 753 sqft
Dattani Estate Developers
Developer

522 - 970 sqft
Dattani Estate Developers
Developer





--1728627394567-img.webp&w=1280&q=75)
716 - 910 sqft
Trinity Developers
Developer
433 - 625 sqft
Shantee Group
Developer
418 - 517 sqft
KKG Group
Developer

634 - 2075 sqft
PAM Infrastructures
Developer
Housiey Legal: Free Real Estate Legal Consultation
Get Expert Advice on RERA, Builder Refunds, Area Mismatch, Stuck Projects & More - at No Cost!