Last updated: Mar 24, 2026









Land Parcel
Towers
Floors
Config
Carpet Area
RERA NO.
Possession Status
Target Possession
RERA Possession
Litigation
Goyal Whitefield Project Overview
orchid platinum will be constructed on 3 Acres of land parcel, 2 Towers with 1B+G+13 floors having 2BHK, 3BHK, 4BHK premium residences.
Goyal orchid platinum location
Project is located On Whitefield Main road, Hobli, Whitefield, Bangalore with -
Manipal Hospital - 1.3km
Nexus Whitefield - 1.9km
Kadugodi Metro Station - 2.4km
Goyal orchid platinum Whitefield Project Amenities
First is Internal amenities -
Vitrified tiles, Ceramic Tiles, Modular Kitchen & many more
Goyal Group Whitefield External Amenities
Project has 50+ Ultra luxurious amenities with likes of -
Club House
Gymnasium
Swimming Pool
Cricket Pitch
Basket ball Court & Many More
Goyal Group Whitefield Parking -
Project has one type of car parking facility
1)Basement
Goyal orchid platinum Possession -
Rera Possession - December 2028
Target Possession - March 2027
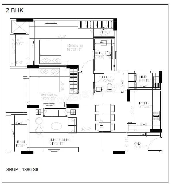
Built-up Area & Floor Plan
Goyal orchid platinum project has 2BHK, 3BHK, & 4BHK premium residences with -
2BHK - (1380 to 1423)sqft
3BHK - (1485 to 1860)sqft
4BHK - 2210 sqft
Goyal orchid platinum Floor plan -
Tower Floor Plan will have 8 flats 3 Lifts & 2 Staircases on each Floor
Maintenance -
Goyal orchid platinum Project maintenance varies with the configuration and the carpet area which are as follows-
2BHK - Rs (6900 - 7115) per month
3BHK - Rs (7425 - 9300) per month
4BHK - Rs (11050) per month
Goyal orchid platinum sample flat is ready to view at the site.
Goyal orchid platinum Prices & its details can be found in the price section & Goyal orchid platinum brochure can be downloaded from the link mentioned below. Project has been praised by the home buyers & Goyal Group Whitefield review is 4 out of 5 from over all the clients who have visited the site.
On Whitefield Main Road, Hobli, Whitefield, Bangalore

Pros
Cons
Vitrified Tiles
Stainless Steel Sink
Modular Kitchen
Swimming Pool
Club House
Kids Play Area
Multi Purpose Court
Senior Citizen Area
Cricket Pitch
Basketball Court
Pet Park
Indoor games
party lawn
Badminton Court
Gymnasium
Multi purpose hall


| Build-up Area | Carpet Area | All Inc. Price (Inc. of Taxes & Charges) | Min Downpayment (Inc. Taxes) | Parking | Unit Plan |
|---|---|---|---|---|---|
1380 sqft Sold Out | 938 sqftSold Out | ![]() | - | - | ![]() |
1423 sqft Limited | 959 sqftLimited | 1.96 Cr All In | 20.00 Lacs | 1 | ![]() |


Is there any litigation against this proposed project:
NoGoyal Orchid Platinum Commencement Certificate
Goyal Orchid Platinum Legal Title Report
Goyal Orchid Platinum Layout Plan
Note: You can download more detailed documents by following this link
Goyal and Co

3 CitiesLocations
Bangalore Rural, Bangalore Urban, Ahmedabad

1006 - 1634 sqft
Amrutha Rama Constructions
Developer




1153 - 1805 sqft
Sapthagiri Shelters
Developer




1225 - 2580 sqft
Sumadhura Group
Developer

1051 - 2578 sqft
Platinum Narya Infra
Developer

540 - 1532 sqft
Sowparnika Projects
Developer
2804 - 8023 sqft
Total Environment Homes
Developer



Housiey Legal: Free Real Estate Legal Consultation
Get Expert Advice on RERA, Builder Refunds, Area Mismatch, Stuck Projects & More - at No Cost!