

















Land Parcel
Towers
Floors
Config
Carpet Area
RERA NO.
Possession Status
Target Possession
RERA Possession
Litigation
Gami Seawoods Project Overview
Gami Palm Amore will be constructed on 6 acres of land parcel, 14 towers with 4P+G+15 Floors having, 2 BHK, 3 BHK, 4 BHK, 5 BHK premium residences.
Gami Palm Amore location
Project is located Near Palm Beach Road, Sector 46, Seawoods, Navi Mumbai with -
Gami Palm Amore Seawoods Project Amenities
First is Internal amenities -
Vitrified Tile, Granite Kitchen, Stainless steel sink, Mosquito net, M.S railing Etc
Gami Group Seawoods External Amenities
Project has 40+ luxurious amenities with likes of -
Swimming Pool
Gymnasium
Club House
Childrens Play Area
Senior Citizen Area & Many More
Gami Group Palm Amore Seawoods Parking -
Project has one type of car parking facility i.a
1) Podium
Gami Palm Amore Possession -
Rera Possession - March 2020
Target Possession - March 2031
Carpet Area & Floor Plan
Palm Amore project has 2BHK, 3BHK, 4BHK, 5BHK premium residences with -
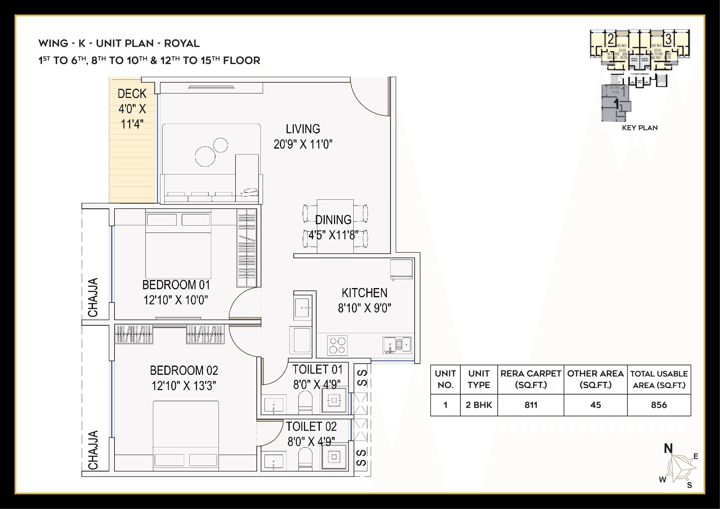
2BHK - 856 sqft
3BHK - (1174 to 1380) sqft
4BHK - (1690 to 2529) sqft
5BHK - 2981 sqft
Gami Palm Amore floor plan
Tower floor plans will have 6 flats & 2 lifts 1 staircases on each floor
Palm Amore Seawoods project sample flat is ready to view at the site.
Palm Amore price & its details can be found in the price section & Gami Palm Amore Seawoods brochure can be downloaded from the link mentioned below. Project has been praised by the home buyers & Gami Group Seawoods review is 4 out of 5 from over all the clients who have visited the site.
Near Palm Beach Road, Seawoods, Navi Mumbai

Pros
Cons
Vitrified Tiles
Granite Kitchen Platform
Stainless Steel Sink
Swimming Pool
Club House
Kids Play Area
Senior Citizen Area
Yoga Zone
Banquet Hall
Seating Area
Indoor games
Gymnasium
Multi purpose hall


















| Carpet Area | All Inc. Price (Inc. of Taxes & Charges) | Min Downpayment (Inc. Taxes) | Parking | Unit Plan |
|---|---|---|---|---|
856 sqft | 3.10 Cr All In | 46.00 Lacs | 1 | ![]() |

Is there any litigation against this proposed project:
NoGami Palm Amore Proforma Sale Agreement
Gami Palm Amore Proforma Allotment Letter
Gami Palm Amore Layout Plan
Note: You can download more detailed documents by following this link

1227 - 1227 sqft
Platinum Group
Developer

Housiey Legal: Free Real Estate Legal Consultation
Get Expert Advice on RERA, Builder Refunds, Area Mismatch, Stuck Projects & More - at No Cost!