Last updated: Mar 17, 2026














Land Parcel
Towers
Floors
Config
Carpet Area
RERA NO.
Possession Status
Target Possession
RERA Possession
Litigation
DGS Goregaon East Project Overview
DGS Sheetal Infinity Project will be constructed on 0.7 acre of land parcel, 1 tower with G+4P+24 floors having 2 BHK, 3 BHK premium residences .
DGS Sheetal Infinity location
Project is located Nr General Arun Kumar Vaidya Marg, Goregaon East, Mumbai with -
Oberoi Mall - 1.7km
Western Express Highway - 1.9km
Goregaon Railway Station - 4km
DGS Sheetal Infinity Goregaon Project Amenities
First is Internal amenities -
Vitrified Tiles, Granite Platform, Branded Fitting, SS Sink & many more
DGS Group Goregaon East External Amenities
Project has 15+ amenities with likes of -
Swimming Pool
Gymnasium
Kids Play Area
Seating Pergola & Many More
DGS Group Sheetal Infinity Goregaon East Parking -
Project has one types of car parking facility -
1) Podium
DGS Sheetal Infinity Possession -
Rera Possession - December 2026
Target Possession - December 2026
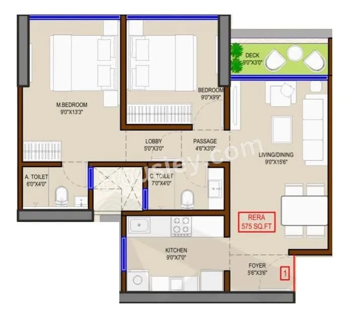
Carpet Area & Floor Plan
Sheetal Infinity project has 2BHK, 3BHK premium residences with -
2BHK - (575 to 780) sqft
3BHK - (836 to 860) sqft
DGS Sheetal Infinity floor plan
Tower floor plan will have 8 flats 5 lifts & 2 staircases on each floor
Maintenance -
DGS Sheetal Infinity Mumbai Project maintenance varies with the configuration and the carpet area which are as follows-
2BHK - Rs (8300 - 9400) per month
3BHK - Rs (10000 -10300) per month
Sheetal Infinity Goregaon East project sample flat is ready to view at the site.
Sheetal Infinity Prices & its details can be found in the price section & DGS Sheetal Infinity Goregaon East brochure can be downloaded from the link mentioned below. Project has been praised by the home buyers & DGS Group Goregaon East review is 4 out of 5 from over all the clients who have visited the site.
Nr General Arun Kumar Vaidya Marg, Goregaon East, Mumbai

Pros
Cons
Vitrified Tiles
Granite Kitchen Platform
Stainless Steel Sink
Branded Fittings
Swimming Pool
Kids Play Area
Yoga Zone
Meditation Zone
Banquet Hall
Seating Area
Gymnasium


| Carpet Area | All Inc. Price (Inc. of Taxes & Charges) | Min Downpayment (Inc. Taxes) | Parking | Unit Plan |
|---|---|---|---|---|
575 sqftSold Out | ![]() | - | - | ![]() |
655 sqftSold Out | ![]() | - | - | ![]() |
675 sqftSold Out | ![]() | - | - | ![]() |
715 sqftSold Out | ![]() | - | - | ![]() |
745 sqftLimited | 2.46 Cr All In | 37.00 Lacs | 10 Lacs | ![]() |
780 sqftLimited | 2.53 Cr All In | 38.00 Lacs | 10 Lacs | ![]() |


Is there any litigation against this proposed project:
NoDGS Sheetal Infinity Commencement Certificate
DGS Sheetal Infinity Legal Title Report
DGS Sheetal Infinity Layout Plan
Note: You can download more detailed documents by following this link
DGS Group

2 CitiesLocations
Mumbai suburban, Mumbai City











1709 - 3032 sqft
Oberoi Realty
Developer
840 - 1200 sqft
Je and Vee Infrastructure
Developer
582 - 582 sqft
Arkade Group
Developer

623 - 2103 sqft
Agarwal Group of Companies
Developer



Housiey Legal: Free Real Estate Legal Consultation
Get Expert Advice on RERA, Builder Refunds, Area Mismatch, Stuck Projects & More - at No Cost!