Last updated: Jan 28, 2026




Land Parcel
Towers
Floors
Config
Carpet Area
RERA NO.
Possession Status
Target Possession
RERA Possession
Litigation
DGS Andheri West Project Overview
DGS Gurudarshan Project will be constructed on 1.6 acres of land parcel, 3 towers with G+4P+30 floors having 2BHK, 3BHK, Jodi premium residences.
DGS Gurudarshan location
Project is located On Lokhandwala Complex Road, Lokhandwala, Andheri West, Mumbai with -
Infiniti Mall - 950m
Lower Oshiwara Metro Station - 1.5km
Versova Beach - 2.8km
DGS Gurudarshan Andheri West Project Amenities
First is Internal amenities -
Vitrified Tiles, Granite Platform, Stainless Steel Sink, CCTV & many more
DGS Group Andheri West External Amenities
Project has 25+ amenities with likes of -
Swimming Pool
Fitness Center
Kid's play area
Multipurpose Court
Yoga Deck & Many More
DGS Group Gurudarshan Andheri West Parking -
Project has One type of car parking facilitiy -
1) Podium
DGS Gurudarshan Possession -
Rera Possession - December 2030
Target Possession - December 2028
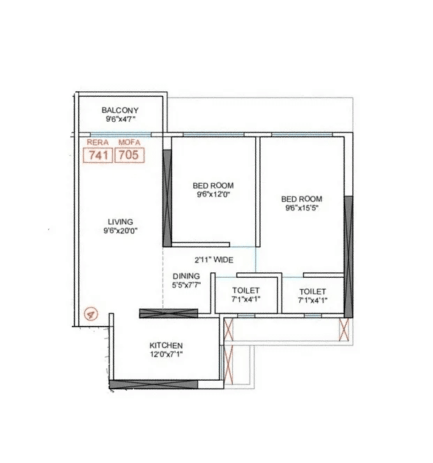
Carpet Area & Floor Plan
DGS Gurudarshan Andheri West project has 2BHK, 3BHK, Jodi premium residences with -
2BHK - 741 sqft
3BHK - 1205 sqft
Jodi - (1482 to 2410) sqft
DGS Gurudarshan floor plan
Tower floor plan will have 6 flats 5 lifts & 2 staircases on each floor
Maintenance -
DGS Gurudarshan Mumbai Project maintenance varies with the configuration and the carpet area which are as follows -
2BHK - Rs 7400 per month
3BHK - Rs 12000 per month
Jodi - Rs (14800 - 24100) per month
Gurudarshan Prices & its details can be found in the price section & DGS Gurudarshan Andheri West brochure can be downloaded from the link mentioned below. Project has been praised by the home buyers & DGS Group Andheri West review is 4 out of 5 from over all the clients who have visited the site.
On Lokhandwala Complex Rd, Lokhandwala, Andheri West, Mumbai

Pros
Cons
Vitrified Tiles
Granite Kitchen Platform
Stainless Steel Sink
CCTV Camera
Swimming Pool
Kids Play Area
Jogging Track
Multi Purpose Court
Senior Citizen Area
Seating Area
Reading Book
Indoor games
Yoga Deck
Gymnasium
Walking Track
Fitness Deck



| Carpet Area | All Inc. Price (Inc. of Taxes & Charges) | Min Downpayment (Inc. Taxes) | Parking | Unit Plan |
|---|---|---|---|---|
741 sqft | 3.40 Cr All In | 51.00 Lacs | 1 | ![]() |

Is there any litigation against this proposed project:
NoDGS Gurudarshan Commencement Certificate
DGS Gurudarshan Legal Title Report
DGS Gurudarshan Layout Plan
Note: You can download more detailed documents by following this link
DGS Group

2 CitiesLocations
Mumbai suburban, Mumbai City

333 - 2006 sqft
Raheja Universal
Developer


557 - 1031 sqft
Transcon Developers
Developer

766 - 1170 sqft
I Dudhwala Group
Developer
766 - 1170 sqft
Hiranandani Group
Developer
4300 - 4300 sqft
Lodha Group
Developer
--1702555652971-img.webp&w=1280&q=75)











Housiey Legal: Free Real Estate Legal Consultation
Get Expert Advice on RERA, Builder Refunds, Area Mismatch, Stuck Projects & More - at No Cost!