Last updated: Nov 19, 2025









Land Parcel
Towers
Floors
Config
Carpet Area
RERA NO.
Possession Status
Target Possession
RERA Possession
Litigation
Deep Group Nallasopara East Project Overview
Deep Vaibhav will be constructed on 0.50 Acre of land parcel, 1 Tower with G+1C+2P+18 floors having 1 BHK, 2 BHK premium residences.
Deep Vaibhav location
Project is located On Achole Road, Ambawadi, Nallasopara East, Mumbai with -
Capital Mall - 950m
Nallasopara Station - 1.3km
Ambadi Road - 2.0km
Deep Vaibhav Nallasopara East Project Amenities
First is Internal amenities -
Vitrified tiles, Granite Kitchen, Kitchen platform, SS Sink, Mosquito Net, & many more
Deep Group Nallasopara East External Amenities
Project has 15+ luxurious amenities with likes of -
Open Gym
Jogging Track
Kids Play Area
Senior Citizen Area
Yoga Zone & Many More
Deep Group Vaibhav Nallasopara East Parking -
Project has one type of car parking facility-
1) Podium Parking
Deep Vaibhav Possession -
Rera Possession - December 2028
Target Possession - December 2028
Carpet Area & Floor Plan
Deep Vaibhav project has 1BHK, 2BHK premium residences with -
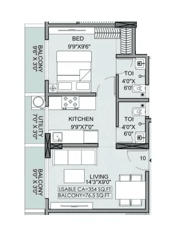
1BHK - (431 to 476) sqft
2BHK - (546 to 637) sqft
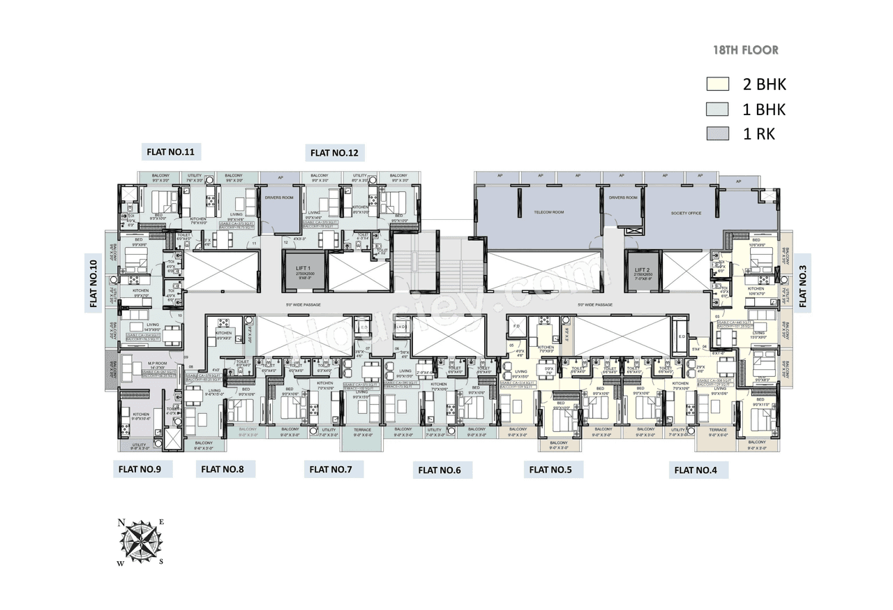
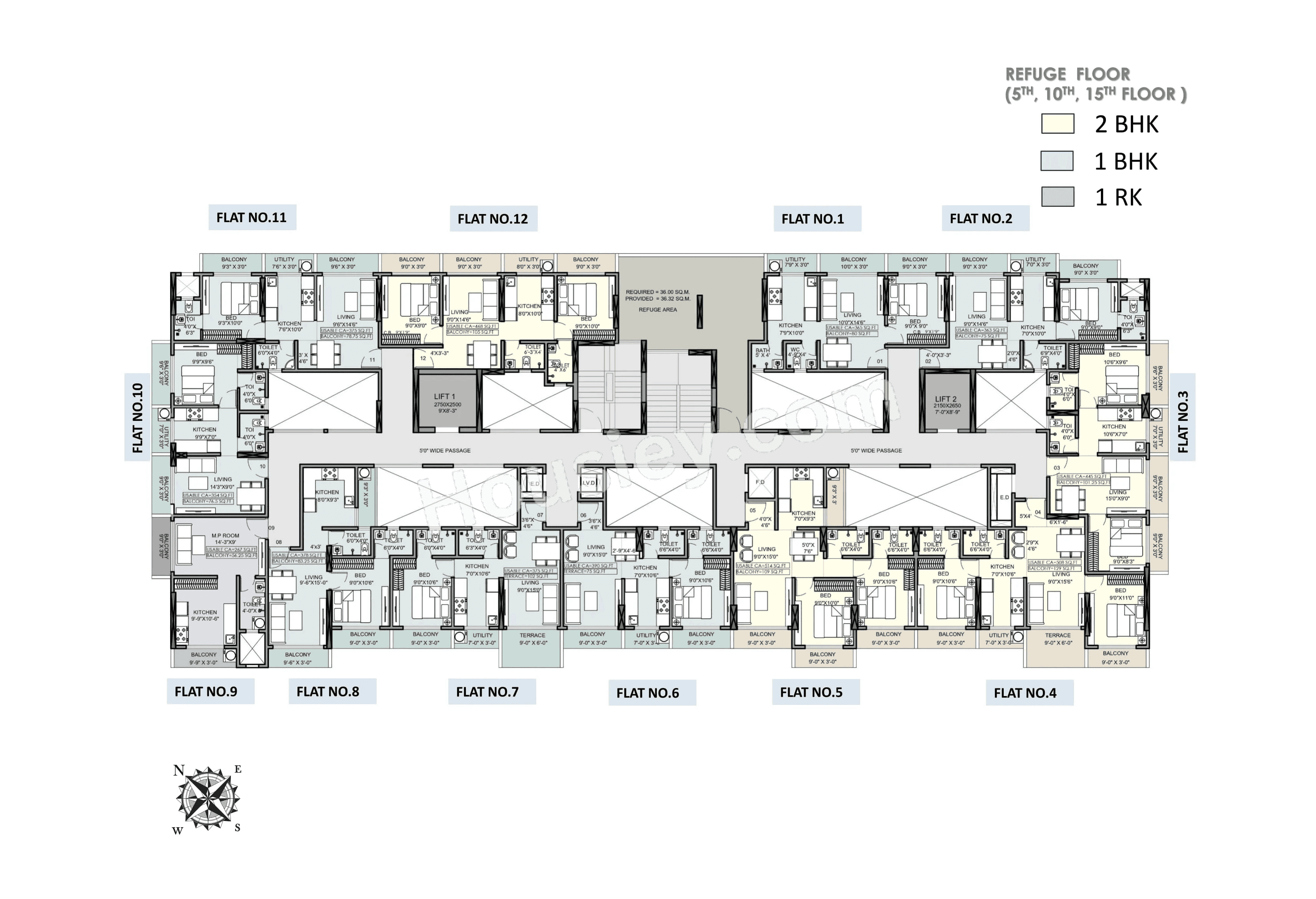
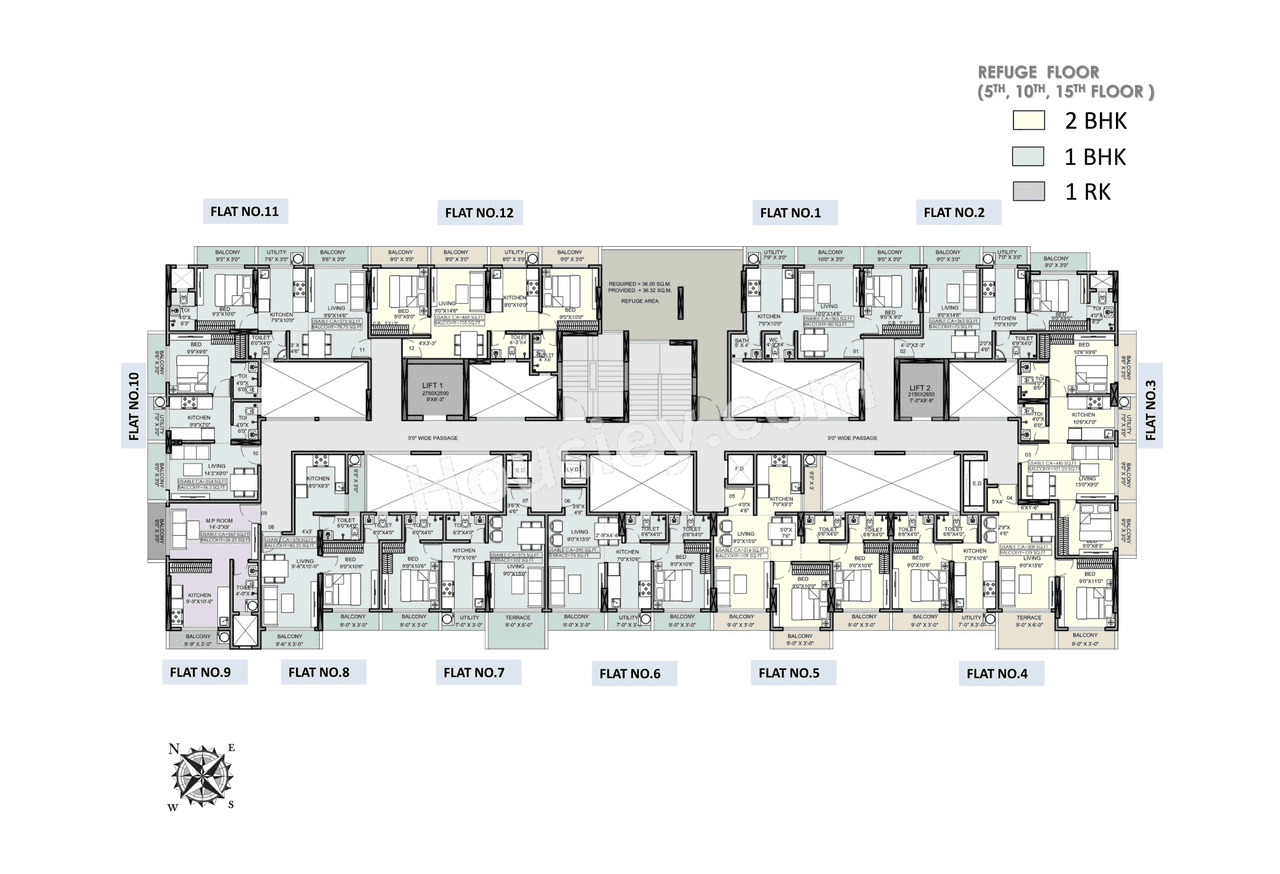
Deep Vaibhav floor plan
Tower floor plans will have 12 flats & 2 lift 1 staircases on each floor
Maintenance -
Deep Vaibhav Nallasopara East Project maintenance varies with the configuration and the carpet area which are as follows-
1BHK - Rs (1700 - 1900) per month
2BHK - Rs (2200 - 2500) per month
Deep Vaibhav price & its details can be found in the price section & Deep Vaibhav Nallasopara East brochure can be downloaded from the link mentioned below. Project has been praised by the home buyers & Deep Group Nallasopara East review is 4 out of 5 from over all the clients who have visited the site.
On Achole Road, Ambawadi, Nallasopara East, Mumbai
Pros
Cons
Vitrified Tiles
Granite Kitchen Platform
Stainless Steel Sink
Mosquito Mesh Windows
CCTV Camera
Modular Kitchen
Kids Play Area
Jogging Track
Senior Citizen Area
Outdoor Gym
Amphitheater
Yoga Zone
Toddlers Play Area
Seating Area
Indoor games
Star Gazing
Walking Track










| Carpet Area | All Inc. Price (Inc. of Taxes & Charges) | Min Downpayment (Inc. Taxes) | Parking | Unit Plan |
|---|---|---|---|---|
431 sqft | 55.86 Lacs All In | 8.00 Lacs | 6 Lacs | ![]() |
445 sqft | 57.60 Lacs All In | 9.00 Lacs | 6 Lacs | ![]() |
453 sqft | 59.10 Lacs All In | 9.00 Lacs | 6 Lacs | ![]() |
465 sqft | 60.60 Lacs All In | 9.00 Lacs | 6 Lacs | ![]() |
476 sqft | 61.98 Lacs All In | 9.00 Lacs | 6 Lacs | ![]() |

Is there any litigation against this proposed project:
No


387 - 616 sqft
AV Crystal Group
Developer

Housiey Legal: Free Real Estate Legal Consultation
Get Expert Advice on RERA, Builder Refunds, Area Mismatch, Stuck Projects & More - at No Cost!