Last updated: Apr 19, 2026



Land Parcel
Towers
Floors
Config
Carpet Area
RERA NO.
Possession Status
Target Possession
RERA Possession
Litigation
Srishti Nahur West Project Overview
Srishti Craft de Srishti will be constructed on 1 acre of land parcel, 1 tower with G+8P+31 floors having 1 BHK, 2 BHK, 3 BHK premium residences
Srishti Craft de Srishti location
Project is located On GMLR Rd, Industrial Area, Nahur West, Mumbai with -
Nahur Railway Station - 500m
Fortis Hospital - 850m
D-Mart - 1.1km
Srishti Craft de Srishti Nahur West Internal Amenities
First is Internal amenities -
Vitrified tiles, Granite Kitchen platform & many more
Srishti Group Nahur West External Amenities
Project has 20+ luxurious amenities with likes of -
Swimming Pool
Kids play area
Fitness Centre
Yoga & Meditation Deck
Senior Citizen Area & Many More
Srishti Group Craft de Srishti Nahur West Parking -
Project has one type of car parking facility:
1. Podium
Srishti Craft de Srishti Possession -
Rera Possession - December 2029
Target Possession - December 2029
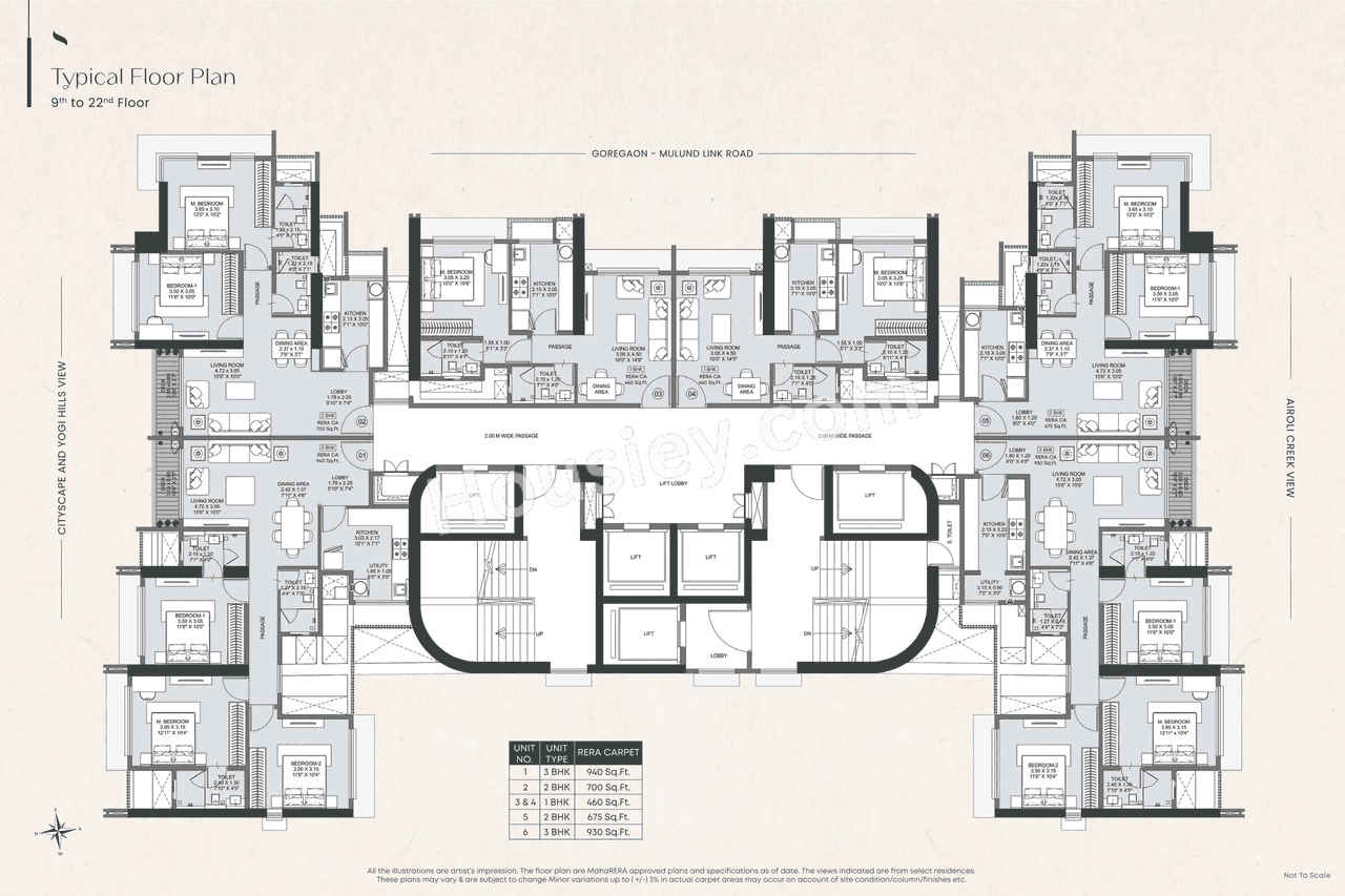
Carpet Area & Floor Plan
Srishti Craft de Srishti Nahur project has 1BHK, 2BHK, 3BHK premium residences with -
1BHK - 460 sqft
2BHK - (675 - 700) sqft
3BHK - (930 - 940) sqft
Craft de Srishti floor plan
Tower floor plan will have 6 flats 5 lift & 2 staircase on each floor
Craft de Srishti Nahur West sample flat is ready to view at the site
Craft de Srishti Mumbai price & its details can be found in the price section & Craft de Srishti brochure can be downloaded from the link mentioned below. Project has been praised by the home buyers & Craft de Srishti review is 4 out of 5 from over all the clients who have visited the site.
On GMLR Rd, Industrial Area, Nahur West, Mumbai
Pros
Cons
Vitrified Tiles
Granite Kitchen Platform
Branded Fittings
Swimming Pool
Kids Play Area
Multi Purpose Court
Kids Pool
Multi Purpose Lawn
Yoga Zone
Meditation Zone
Jacuzzi
Indoor games
party lawn
Gymnasium
Multi purpose hall




| Carpet Area | All Inc. Price (Inc. of Taxes & Charges) | Min Downpayment (Inc. Taxes) | Parking | Unit Plan |
|---|---|---|---|---|
460 sqft | 1.32 Cr All In | 20.00 Lacs | 1 | ![]() |

Is there any litigation against this proposed project:
NoCraft de Srishti Proforma Sale Agreement
Craft de Srishti Proforma Allotment Letter
Craft de Srishti Layout Plan
Note: You can download more detailed documents by following this link
Srishti Group

2 CitiesLocations
Mumbai City, Mumbai suburban


Housiey Legal: Free Real Estate Legal Consultation
Get Expert Advice on RERA, Builder Refunds, Area Mismatch, Stuck Projects & More - at No Cost!