Last updated: Mar 18, 2026


























Land Parcel
Towers
Floors
Config
Carpet Area
RERA NO.
Possession Status
Target Possession
RERA Possession
Litigation
Century Indiranagar Project Overview
Century Regalia will be constructed on 8.5 Acres of land parcel, 2 Towers with 2B+G+9/11 floors having 3 BHK, 4 BHK, 3 BHK Townhouse, 4 BHK Townhouse, 4 BHK Imperial, 5 BHK Imperial, 4 BHK Celestial Penthouse premium residences.
Century Regalia location
Project is located On Golf Course Road, Indiranagar, Bangalore with -
Manipal Hospital - 800m
Centro Mall - 3km
Eco Space - 4km
Century Regalia Indiranagar Project Amenities
First is Internal amenities -
Vitrified tiles, Granite Kitchen Platform, SS Sink, Branded fitting & many more
Century Real Estate Indiranagar External Amenities
Project has 30+ luxurious amenities with likes of -
Multipurpose court
Gymnasium
Swimming pool
Indoor games
Party lawn & Many More
Century Real Estate Indiranagar Parking -
Project has One type of car parking facility
1) Basement
Century Regalia Possession -
Rera Possession - April 2029
Target Possession - September 2028
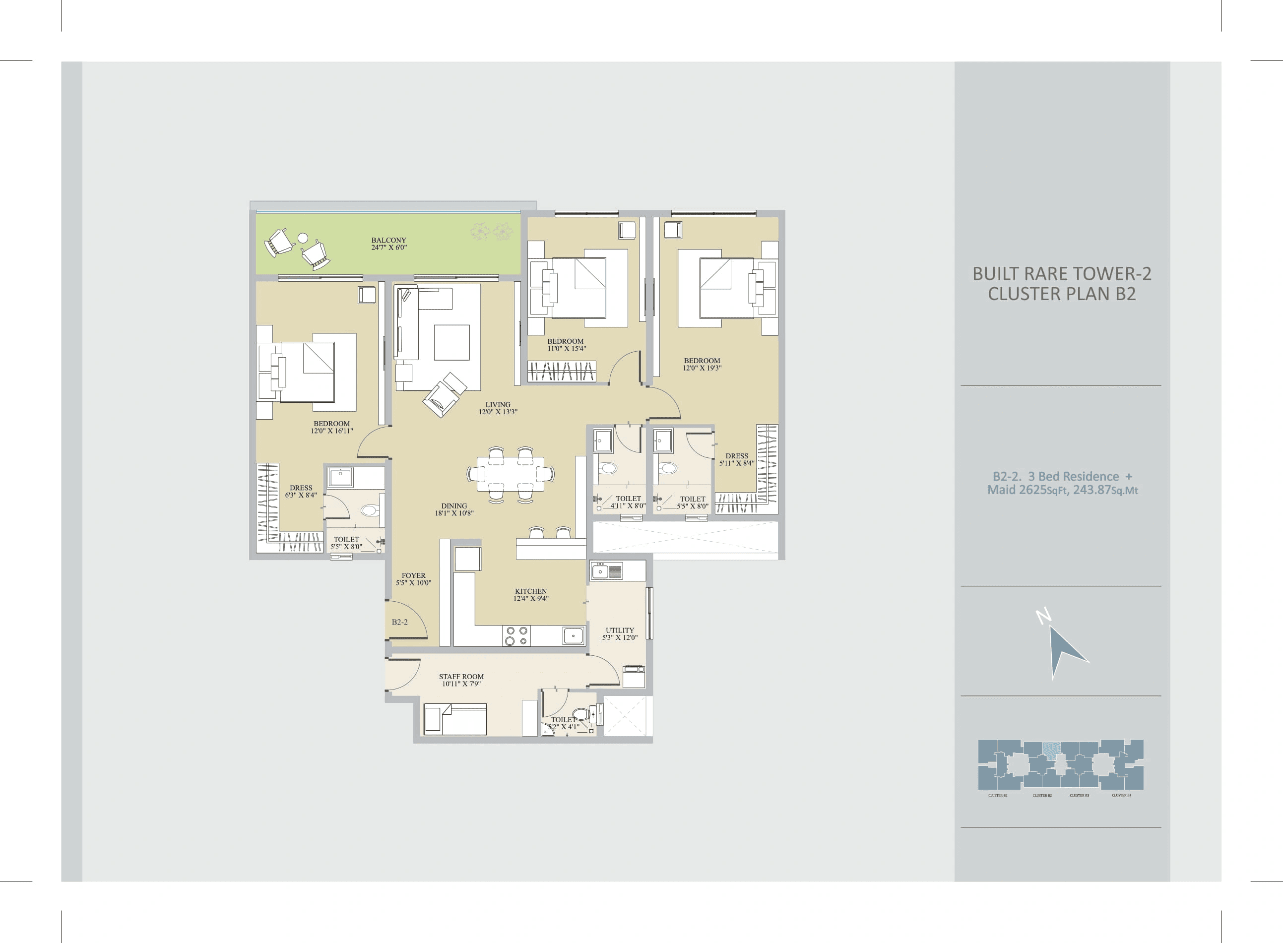
Built-up Area & Floor Plan
Century Regalia project has 3 BHK, 4 BHK, 3 BHK Townhouse, 4 BHK Townhouse, 4 BHK Imperial, 5 BHK Imperial, 4 BHK Celestial Penthouse premium residences with -
3 BHK - (2375 to 2625) sqft
4 BHK - (3270 to 4135) sqft
3 BHK Townhouse - 3830 sqft
4 BHK Townhouse - 3870 sqft
4 BHK Imperial - 4780 sqft
5 BHK Imperial - 4780 sqft
4 BHK Celestial Penthouse - 5380 sqft
Century Regalia Floor plan -
Tower Floor Plan will have 6 flats 3 Lifts & 2 Staircases on each Floor
Maintenance -
Century Regalia Bangalore Project maintenance varies with the configuration and the carpet area which are as follows-
3 BHK - Rs (11900 - 13100) per month
4 BHK - Rs (16400 - 20700) per month
3 BHK Townhouse - Rs 19200 per month
4 BHK Townhouse - Rs 19400 per month
4 BHK Imperial - Rs 23900 per month
5 BHK Imperial - Rs 23900 per month
4 BHK Celestial Penthouse - Rs 26900 per month
Century Regalia Prices & its details can be found in the price section & Century Regalia Indiranagar brochure can be downloaded from the link mentioned below. Project has been praised by the home buyers & Century Real Estate Indiranagar review is 4 out of 5 from over all the clients who have visited the site.
Next to KGA Golf Avenue, Kodihalli, Indiranagar, Bengaluru

Pros
Cons
Vitrified Tiles
Granite Kitchen Platform
Stainless Steel Sink
Branded Fittings
CCTV Camera
Swimming Pool
Kids Play Area
Kids Pool
Squash Court
Outdoor Gym
Co Working Spaces
Private Spa
Basketball Court
Amphitheater
Banquet Hall
Business Center
Pool deck
Aroma Garden
Indoor games
party lawn
+3 More



| Build-up Area | Carpet Area | All Inc. Price (Inc. of Taxes & Charges) | Min Downpayment (Inc. Taxes) | Parking | Unit Plan |
|---|---|---|---|---|---|
2375 sqft Limited | 1662 sqftLimited | 5.98 Cr All In | 60.00 Lacs | 2 | ![]() |
2625 sqft Limited | 1837 sqftLimited | 6.80 Cr All In | 68.00 Lacs | 2 | ![]() |
3830 sqft Limited | 2681 sqftLimited | 10.00 Cr All In | 1.00 Cr | 2 | ![]() |

Is there any litigation against this proposed project:
Yes| Court Name | City | Case Type | Petition | Case Number | Year | Case Status |
|---|---|---|---|---|---|---|
| City Civil Court Bangalore | Partition suit | O.S. 4235 | 2002 | Pending |
Century Regalia Commencement Certificate
Century Regalia Legal Title Report
Century Regalia Layout Plan
Note: You can download more detailed documents by following this link
Century Real Estate

1 CityLocations
Bangalore Rural


2375 - 4780 sqft
Century Real Estate
Developer
Housiey Legal: Free Real Estate Legal Consultation
Get Expert Advice on RERA, Builder Refunds, Area Mismatch, Stuck Projects & More - at No Cost!