Last updated: Mar 30, 2026






Land Parcel
Towers
Floors
Config
Carpet Area
RERA NO.
Possession Status
Target Possession
RERA Possession
Litigation
Bramhacorp Kalyani Nagar Project Overview
Brahma August Tower will be constructed on 2.5 acres of land parcel, 2 towers with 4B+G+29 floors having 2 BHK premium residences.
Brahma August Tower location
Project is located Near Wadgaon Sheri Road, Kalyani Nagar, Pune with -
D-Mart - 3.3km
Hadapsar Railway Station - 4.4km
Pune International Airport - 4.9km
Brahma August Tower Kalyani Nagar Project Amenities
First is Internal amenities -
Vetrified Tiles, Branded Fittings, Kitchen Platform, SS Sink, Powder Coated Aluminum Sliding Window, Anti-Skid flooring tiles, Exhaust fan, Piped gas connection & many more
Bramhacorp Kalyani Nagar External Amenities
Project has 20+ amenities with likes of -
Multipurpose Hall
Swimming Pool
Indoor games
Pool table & Many More
Bramhacorp August Tower World Kalyani Nagar Parking -
Project has one type of car parking facility -
1) Basement
Brahma August Tower Possession -
Rera Possession - December 2028
Target Possession - December 2027
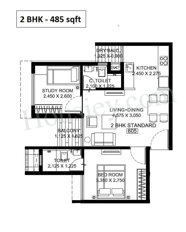
Carpet Area & Floor Plan
August Tower project has 2BHK premium residences with -
2BHK - (485 to 620) sqft
Brahma August Tower floor plan
Tower floor plan will have 10 flats 3 lifts & 2 staircases on each floor
Maintenance -
Brahma August Tower Pune Project maintenance varies with the configuration and the carpet area which are as follows-
2BHK - (1500 - 2000) Per Month
Brahma August Tower Prices & its details can be found in the price section & Brahma August Tower Kalyani Nagar brochure can be downloaded from the link mentioned below. Project has been praised by the home buyers & Bramhacorp Kalyani Nagar review is 4 out of 5 from over all the clients who have visited the site.
Near Wadgaon Sheri Road, Kalyani Nagar, Pune

Pros
Cons
Vitrified Tiles
Granite Kitchen Platform
Stainless Steel Sink
Branded Fittings
Exhaust Fan
Gas pipe Line
Swimming Pool
Lap Pool
Pool deck
Indoor games
Multi purpose hall


| Carpet Area | All Inc. Price (Inc. of Taxes & Charges) | Min Downpayment (Inc. Taxes) | Parking | Unit Plan |
|---|---|---|---|---|
485 sqft | 74.00 Lacs All In | 12.00 Lacs | 1 | ![]() |
579 sqftSold Out | ![]() | - | - | ![]() |
589 sqft | 93.99 Lacs All In | 14.00 Lacs | 1 | ![]() |
603 sqftSold Out | ![]() | - | - | ![]() |
620 sqftSold Out | ![]() | - | - | ![]() |

Is there any litigation against this proposed project:
NoBrahma August Tower Commencement Certificate
Brahma August Tower Legal Title Report
Brahma August Tower Building Plan
Note: You can download more detailed documents by following this link
Bramha Corp

1 CityLocations
Pune

6094 - 6094 sqft
Panchshil Realty
Developer

880 - 1386 sqft
Shubham Building Future
Developer
Housiey Legal: Free Real Estate Legal Consultation
Get Expert Advice on RERA, Builder Refunds, Area Mismatch, Stuck Projects & More - at No Cost!