Last updated: Jan 17, 2026
















Land Parcel
Towers
Floors
Config
Carpet Area
RERA NO.
Possession Status
Target Possession
RERA Possession
Litigation
Neo Smile Borivali West Project Overview
Belmonte Corner Project will be constructed on 0.5 Acre of land parcel, 1 tower with G+4P+14 floors having 3 BHK premium residences.
Belmonte Corner Location
Project is located On Chikuwadi Rd, Chikuwadi, Borivali West, Mumbai with -
Shimpoli Metro Station - 700m
DMart - 1km
Borivali Railway Station - 2.6km
Belmonte Corner Borivali West Project Amenities
First is Internal amenities -
Vitrified Tiles, Granite Platform, SS sink, CCTV & many more
Neo Smile Developers Borivali West External Amenities
Project has 15+ amenities with likes of -
Gymnasium
Kids Play Area
Seating Area
Multipurpose Hall
Yoga & Meditation Zone & many more
Neo Smile Developers Belmonte Corner Borivali West Parking -
Project has one type of car parking facility -
1) Podium
Belmonte Corner Possession -
Rera Possession - March 2028
Target Possession - December 2027
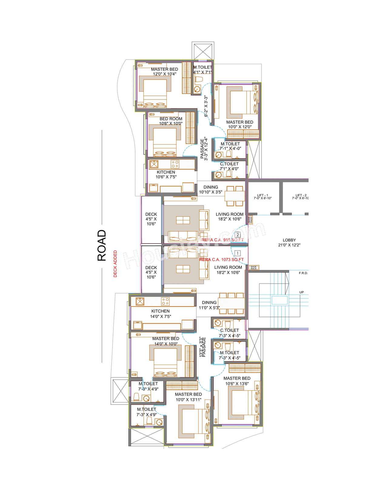
Carpet Area & Floor Plan
Belmonte Corner Borivali West project has 3BHK premium residences with -
3BHK - (915 to 1188) sqft
Belmonte Corner floor plan
Belmonte Corner floor plan will have 6 flats 2 lifts & 1 staircase on each floor
Maintenance -
Belmonte Corner Mumbai Project maintenance varies with the configuration and the carpet area which are as follows-
3BHK - Rs (13700- 17800) per month
Belmonte Corner Borivali West Prices & its details can be found in the price section & Belmonte Corner Borivali West brochure can be downloaded from the link mentioned below. Project has been praised by the home buyers & Neo Smile Developers Borivali West review is 4 out of 5 from over all the clients who have visited the site.
On Chikuwadi Rd, Chikuwadi, Borivali West, Mumbai

Pros
Cons
Vitrified Tiles
Granite Kitchen Platform
Stainless Steel Sink
Kids Play Area
Garden
Senior Citizen Area
Yoga Zone
Meditation Zone
Banquet Hall
Seating Area
Gazebo
Indoor games
Gymnasium
Walking Track
Multi purpose hall



| Carpet Area | All Inc. Price (Inc. of Taxes & Charges) | Min Downpayment (Inc. Taxes) | Parking | Unit Plan |
|---|---|---|---|---|
915 sqft | 3.35 Cr All In | 47.00 Lacs | 15 Lacs | ![]() |
1073 sqft | 3.69 Cr All In | 55.00 Lacs | 15 Lacs | ![]() |
1088 sqft | 3.75 Cr All In | 56.00 Lacs | 15 Lacs | ![]() |
1188 sqft | 4.10 Cr All In | 62.00 Lacs | 15 Lacs | ![]() |

Is there any litigation against this proposed project:
NoBelmonte Corner Commencement Certificate
Belmonte Corner Legal Title Report
Belmonte Corner Layout Plan
Note: You can download more detailed documents by following this link
Neo Smile Developers

2 CitiesLocations
Mumbai City, Mumbai suburban



--1723547672116-img.webp&w=1280&q=75)






417 - 931 sqft
Shivoham Group
Developer
606 - 880 sqft
Shraddha Prime Projects
Developer









Housiey Legal: Free Real Estate Legal Consultation
Get Expert Advice on RERA, Builder Refunds, Area Mismatch, Stuck Projects & More - at No Cost!