Last updated: Mar 29, 2026




Land Parcel
Towers
Floors
Config
Carpet Area
RERA NO.
Possession Status
Target Possession
RERA Possession
Litigation
BBCL Madipakkam Project Overview
BBCL Eshana Madipakkam will be constructed on 0.40 Acre of land parcel, 2 Towers with S+5 floors having 3 BHK premium residences.
BBCL Eshana location
Project is located On 7th Main Road, Madipakkam, Chennai with -
200 ft Radial Rd - 650m
Jerusalem College - 1.4km
BSR Mall - 4.3km
BBCL Eshana Madipakkam Project Amenities
First is Internal amenities -
Vitrified tiles, Granite Kitchen Platform, SS Sink, CCTV & many more
BBCL Madipakkam External Amenities
Project has 10+ luxurious amenities with likes of -
Gymnasium
Terrace Garden
Ev Charging Point & Many More
BBCL Eshana Madipakkam Parking -
Project has One type of car parking facility
1) Stilt
BBCL Eshana Possession -
Rera Possession - December 2026
Target Possession - September 2026
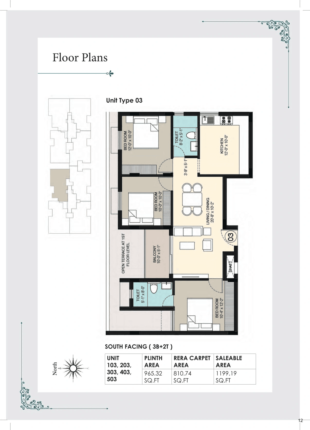
Built-up Area & Floor Plan
Eshana project has 3 BHK premium residences with -
3BHK - (1199 to 1362) sqft
BBCL Eshana Floor plan -
Tower Floor Plan will have 4 flats 1 Lifts & 1 Staircase on each Floor
BBCL project sample flat is ready to view at the site.
BBCL Eshana Chennai Prices & its details can be found in the price section & BBCL Eshana Madipakkam brochure can be downloaded from the link mentioned below. Project has been praised by the home buyers & BBCL Madipakkam review is 4 out of 5 from over all the clients who have visited the site.
On 7th Main Road, Madipakkam, Chennai
Pros
Cons
Vitrified Tiles
Stainless Steel Sink
Branded Fittings
CCTV Camera
Gymnasium
Terrace Garden



| Build-up Area | Carpet Area | All Inc. Price (Inc. of Taxes & Charges) | Min Downpayment (Inc. Taxes) | Parking | Unit Plan |
|---|---|---|---|---|---|
1199 sqft | 810 sqft | 1.10 Cr All In | 11.00 Lacs | 1 | ![]() |
1210 sqft | 820 sqft | 1.15 Cr All In | 12.00 Lacs | 1 | ![]() |
1349 sqft | 936 sqft | 1.25 Cr All In | 13.00 Lacs | 1 | ![]() |
1362 sqft | 945 sqft | 1.25 Cr All In | 13.00 Lacs | 1 | ![]() |

Is there any litigation against this proposed project:
NoBBCL Eshana Planning Permission Approval
BBCL Eshana Encumbrance Certificate
BBCL Eshana Construction Agreement
Note: You can download more detailed documents by following this link
BBCL

1 CityLocations
Chennai

Housiey Legal: Free Real Estate Legal Consultation
Get Expert Advice on RERA, Builder Refunds, Area Mismatch, Stuck Projects & More - at No Cost!