Last updated: May 7, 2026







Land Parcel
Towers
Floors
Config
Carpet Area
RERA NO.
Possession Status
Target Possession
RERA Possession
Litigation
Avyukta Borivali West Project Overview
Abhilasha Project will be constructed on 0.74 Acre of land parcel, 1 tower with G+1C+4P+13 floors having 2 BHK premium residences.
Abhilasha Location
Project is located Near New Link Rd, Yogi Nagar, Borivali West, Mumbai with -
Borivali West Metro Stn - 400m
Grove Mall - 1.8km
Borivali Railway Station - 2.1km
Abhilasha Borivali West Project Amenities
First is Internal amenities -
Vitrified Tiles, Granite Platform, SS sink, CCTV & many more
Avyukta Realty Borivali West External Amenities
Project has 30+ amenities with likes of -
Kids Play Area
Cricket Net
Gymnasium
Yoga Zone & many more
Avyukta Realty Abhilasha Borivali West Parking -
Project has one type of car parking facility -
1) Podium
Abhilasha Possession -
Rera Possession - December 2029
Target Possession - June 2028
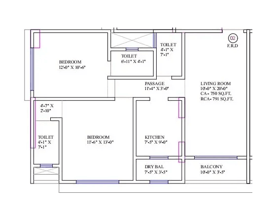
Carpet Area & Floor Plan
Abhilasha Borivali West project has 2BHK premium residences with -
2BHK - (564 to 791) sqft
Abhilasha floor plan
Abhilasha floor plan will have 3 flats 2 lifts & 1 staircase on each floor
Avyukta Abhilasha Mumbai Prices & its details can be found in the price section & Abhilasha Borivali West brochure can be downloaded from the link mentioned below. Project has been praised by the home buyers & Avyukta Realty Borivali West review is 4 out of 5 from over all the clients who have visited the site
Near New Link Rd, Yogi Nagar, Borivali West, Mumbai

Pros
Cons
Video Door Phone
Vitrified Tiles
Granite Kitchen Platform
Stainless Steel Sink
CCTV Camera
Kids Play Area
Jogging Track
Garden
Multi Purpose Court
Net Cricket
Multi Purpose Lawn
Yoga Zone
Seating Area
Indoor games
party lawn
Gymnasium













| Carpet Area | All Inc. Price (Inc. of Taxes & Charges) | Min Downpayment (Inc. Taxes) | Parking | Unit Plan |
|---|---|---|---|---|
564 sqft | 1.76 Cr All In | 26.00 Lacs | 1 | ![]() |
736 sqft | 2.28 Cr All In | 34.00 Lacs | 1 | ![]() |
791 sqft | 2.46 Cr All In | 37.00 Lacs | 1 | ![]() |

Is there any litigation against this proposed project:
NoAvyukta Realty

2 CitiesLocations
Mumbai City, Mumbai suburban



--1723547672116-img.webp&w=1280&q=75)



Enjoy 0 Percent stamp duty and 0 pre EMI on selected inventory pay just 8 percent now and nothing till possession
700 - 2523 sqft
Paradigm Realty
Developer


417 - 931 sqft
Shivoham Group
Developer
606 - 880 sqft
Shraddha Prime Projects
Developer









Housiey Legal: Free Real Estate Legal Consultation
Get Expert Advice on RERA, Builder Refunds, Area Mismatch, Stuck Projects & More - at No Cost!