Last updated: Sep 3, 2025





Land Parcel
Towers
Floors
Config
Carpet Area
RERA NO.
Possession Status
Target Possession
RERA Possession
Litigation
Aim Jogeshwari East Project Overview
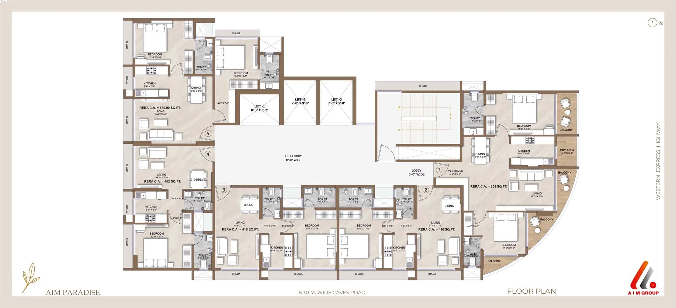
Aim Paradise Project will be constructed on 0.54 acres of land parcel, 1 tower with G+1C+20 floors having 1 BHK, 2 BHK premium residences.
Aim Paradise location
Project is On WEH, Gandhi Nagar, Jogeshwari East, Mumbai with -
Jogeshwari Railway Stn - 500m
Mogra Metro Station - 900m
The Hub Mall - 2.5km
Aim Paradise Jogeshwari East Project Amenities
First is Internal amenities -
Vitrified Tile, Granite Kitchen, Branded fitting, SS sink & many more
Aim Group Jogeshwari East External Amenities
Project has 15+ amenities with likes of -
Children's Play Area
Seating Area & Many More
Aim Group Paradise Jogeshwari East Parking -
Project has one types of car parking facility -
1) Parking Tower
Aim Paradise Possession -
Rera Possession - December 2026
Target Possession - August 2024
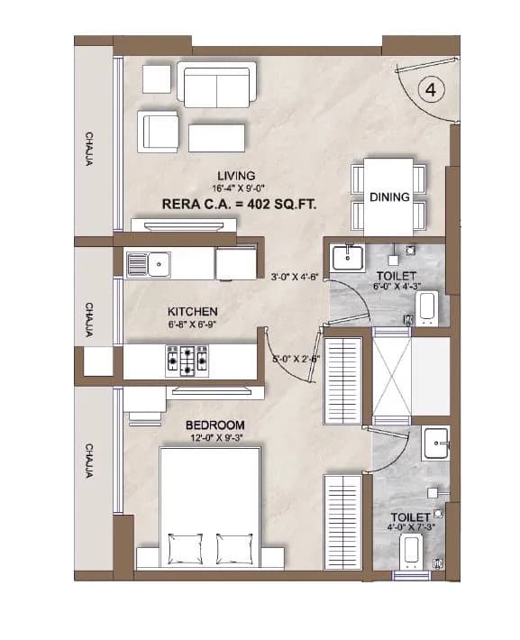
Carpet Area & Floor Plan
Paradise project has 1BHK, 2BHK premium residences with -
1BHK - (402 - 416) sqft
2BHK - (580 - 805) sqft
Maintenance -
Aim Paradise Jogeshwari East Project maintenance varies with the configuration and the carpet area which are as follows-
1BHK - (4000 - 4200) per month
2BHK - (5800 - 8000) per month
Paradise Jogeshwari East project sample flat is ready to view at the site.
Paradise Prices & its details can be found in the price section & Aim Paradise Jogeshwari East brochure can be downloaded from the link mentioned below. Project has been praised by the home buyers & Aim Group Jogeshwari East review is 4 out of 5 from over all the clients who have visited the site.
On WEH, Gandhi Nagar, Jogeshwari East, Mumbai

Pros
Cons
Vitrified Tiles
Granite Kitchen Platform
Stainless Steel Sink
Branded Fittings
Fire Fighting
Kids Play Area
Jogging Track
Seating Area


| Carpet Area | All Inc. Price (Inc. of Taxes & Charges) | Min Downpayment (Inc. Taxes) | Parking | Unit Plan |
|---|---|---|---|---|
402 sqftSold Out | ![]() | - | - | ![]() |
416 sqftSold Out | ![]() | - | - | ![]() |


Is there any litigation against this proposed project:
NoAim Group

2 CitiesLocations
Mumbai suburban, Mumbai City


772 - 1671 sqft
Neelkamal Realty
Developer







1500 - 2500 sqft
Godrej Properties
Developer



Housiey Legal: Free Real Estate Legal Consultation
Get Expert Advice on RERA, Builder Refunds, Area Mismatch, Stuck Projects & More - at No Cost!