Last updated: Mar 5, 2026















Land Parcel
Towers
Floors
Config
Carpet Area
RERA NO.
Possession Status
Target Possession
RERA Possession
Litigation
Adarsh Panathur Project Overview
Adarsh Parkland will be constructed on 21 Acres of land parcel, 7 Towers with B+G+14 Floors having 2.5BHK & 3BHK premium residences.
Adarsh Parkland location
Project is located On Panathur Main Road, Balagere road, Panathur, Bangalore with -
New Horizon Collage of Engg - 2.8km
HAL Old Airport Road - 4.0km
D Mart - 5.2km
Adarsh Parkland Panathur Project Amenities
First is Internal amenities -
Vitrified tiles, Branded Fittings, granite Kitchen Platform, S.S Sink, CCTV & many more
Adarsh Group Panathur External Amenities
Project has 40+ Ultra luxurious amenities with likes of -
Gymnasium
Banquet Hall
Indoor Games
Basketball Court
Swimming Pool & Many More
Adarsh Group Parkland Panathur Parking -
Project has one type of car parking facility
1)Basement
Adarsh Parkland Possession -
Rera Possession - March 2030
Target Possession - March 2030
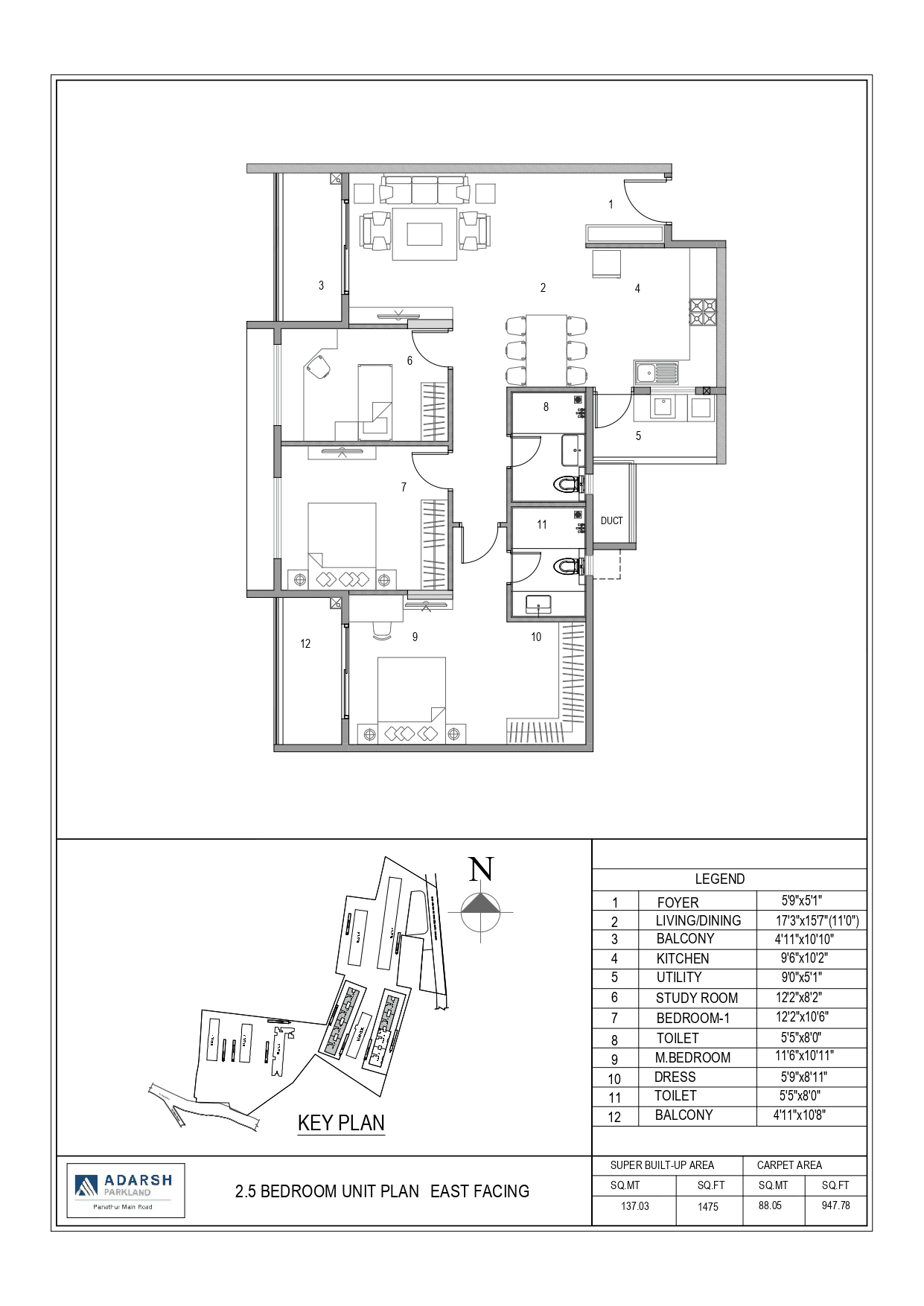
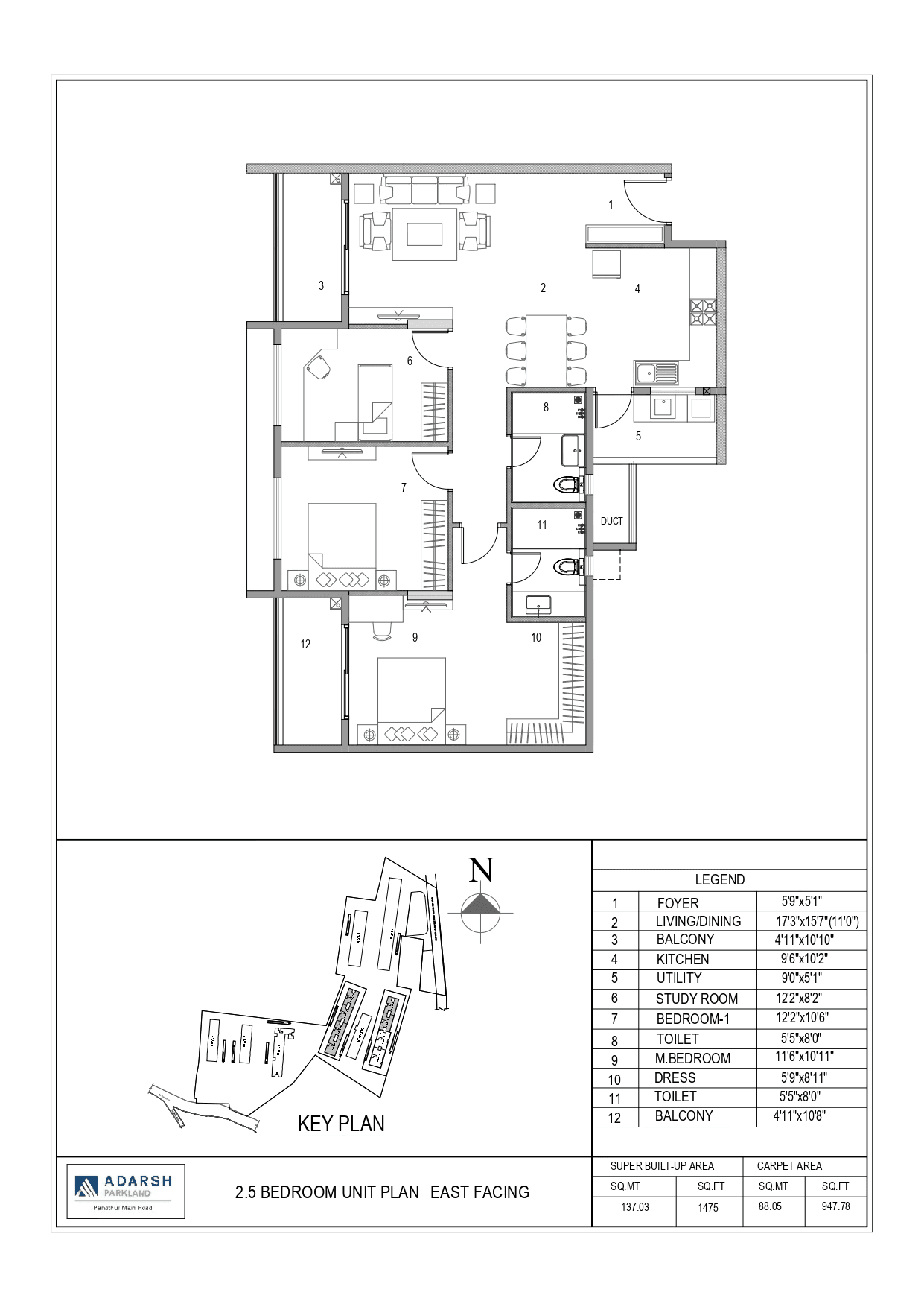
Built-up Area & Floor Plan
Parkland project has 2.5BHK & 3BHK premium residences with -
2.5BHK - (1475 to 1485) sqft
3BHK - (1855 to 1860) sqft
Adarsh Parkland Floor plan -
Tower Floor Plan will have 6 flats 2 Lifts & 2 Staircases on each Floor
Maintenance -
Adarsh Parkland Bangalore Project maintenance varies with the configuration and the built-up area which are as follows-
2.5BHK - Rs (5900 - 5900) per month
3BHK - Rs (7400 - 7400) per month
Adarsh Parkland Prices & its details can be found in the price section & Adarsh Parkland brochure can be downloaded from the link mentioned below. Project has been praised by the home buyers & Adarsh Group Panathur review is 4 out of 5 from over all the clients who have visited the site.
On Panathur Main Road, Balagere road, Panathur, Bangalore
Pros
Cons
Vitrified Tiles
Granite Kitchen Platform
Stainless Steel Sink
Branded Fittings
CCTV Camera
Club House
Kids Play Area
Golf Course
Senior Citizen Area
Kids Pool
Squash Court
Outdoor Gym
Net Cricket
Football Court
Tennis Court
Skating Rink
Lap Pool
Multi Purpose Lawn
Basketball Court
Amphitheater
+17 More


| Build-up Area | Carpet Area | All Inc. Price (Inc. of Taxes & Charges) | Min Downpayment (Inc. Taxes) | Parking | Unit Plan |
|---|---|---|---|---|---|
1475 sqft | 958 sqft | 1.77 Cr All In | 18.00 Lacs | 1 | ![]() |
1485 sqft | 965 sqft | 1.87 Cr All In | 19.00 Lacs | 1 | ![]() |

Is there any litigation against this proposed project:
NoAdarsh Parkland Commencement Certificate
Adarsh Parkland Legal Title Report
Adarsh Parkland Layout Plan
Note: You can download more detailed documents by following this link
Adarsh Group

2 CitiesLocations
Bangalore Rural, Bangalore Urban


1455 - 2005 sqft
Trendsquares Constructions
Developer

1180 - 2120 sqft
Sree Builders And Developers
Developer

Housiey Legal: Free Real Estate Legal Consultation
Get Expert Advice on RERA, Builder Refunds, Area Mismatch, Stuck Projects & More - at No Cost!