2.67 Cr - 3.04 Cr All Inc.
Aashirwad Miraya Overview & Description
- 0.44Land Parcel
- 1Towers
- G+3P+18Floors
- 3BHK, 4BHKConfig
- 1632-1864 Sq.ftCarpet Area
- P52100078668RERA No.
- December 2026Target Possession
- December 2027RERA Possession
About Aashirwad Miraya
Aashirwad Nigdi Project Overview
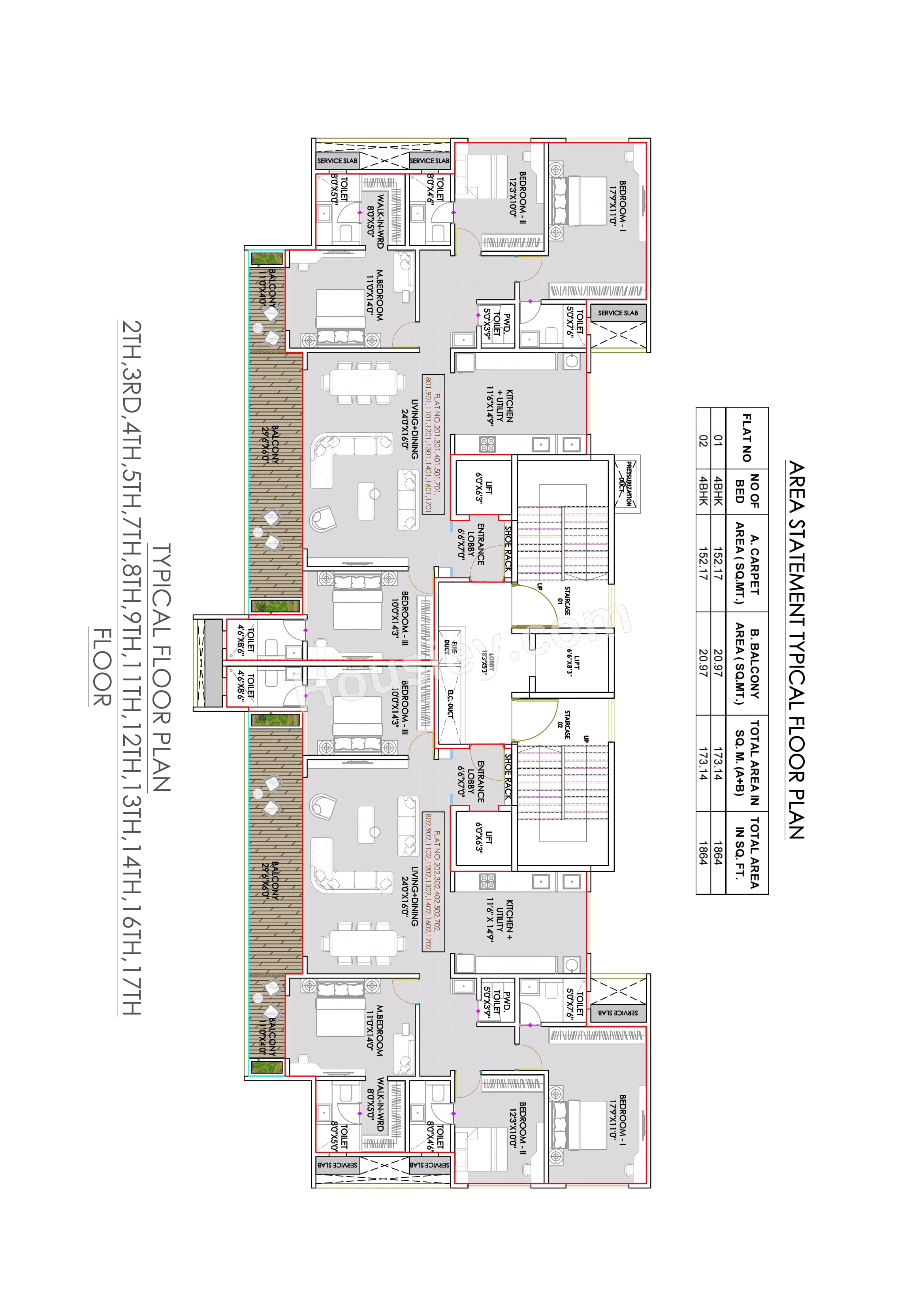
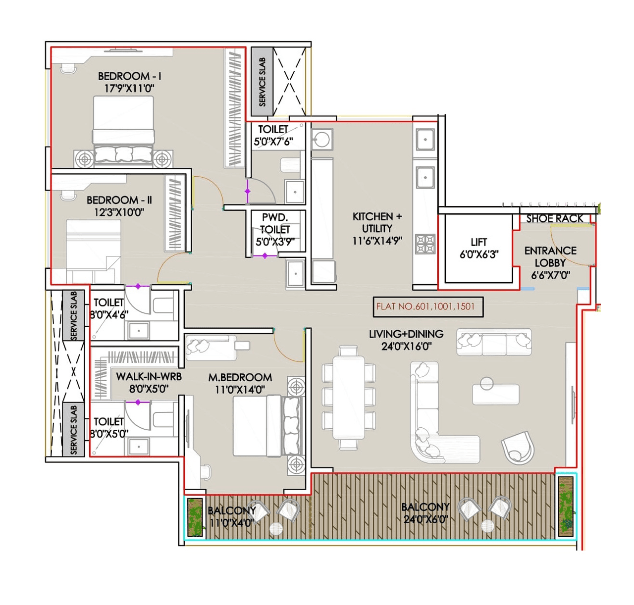
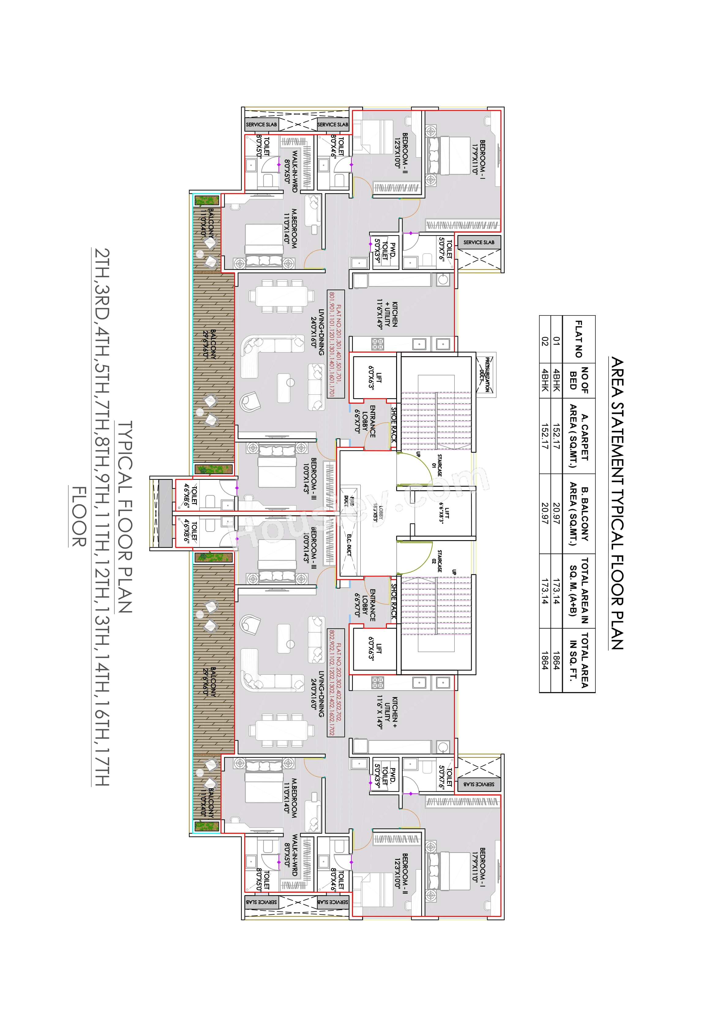
Aashirwad Miraya will be constructed on 0.44 acres of land parcel, 1 towers with G+3P+18 floors having 3BHK, 4BHK premium residences.
Aashirwad Miraya location
Project is located Near Nigdi Chikhali Rd...
LocationView on Map
Near Nigdi Chikhali Rd, Pradhikaran, Nigdi, Pune
- - Bhakti Shakti Bus Stop - 600m
- - Akurdi Railway Station - 2.9km
- - D-Mart - 3.9km
Pros & Cons
Video
Amenities
Internal Amenities
Video Door Phone
Vitrified Tiles
Granite Kitchen Platform
CC.TV Camera
External Amenities
Club House
Senior Citizen Area
Indoor games
Gymnasium
Multi purpose hall
Master & Floor Plan
Aashirwad Miraya Pricing & Unit Plans
Aashirwad Miraya QR Codes
Aashirwad Miraya Details are available at https://maharera.mahaonline.gov.in under registered projects.Payment Scheme
Project approved by


























